Продается Под любой вид деятельности, Гагаринское плато, г.Одесса

Одесса, Приморском, Гагаринское плато
ID 166236
Комнат
1
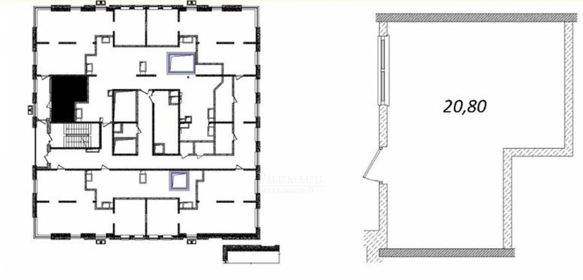
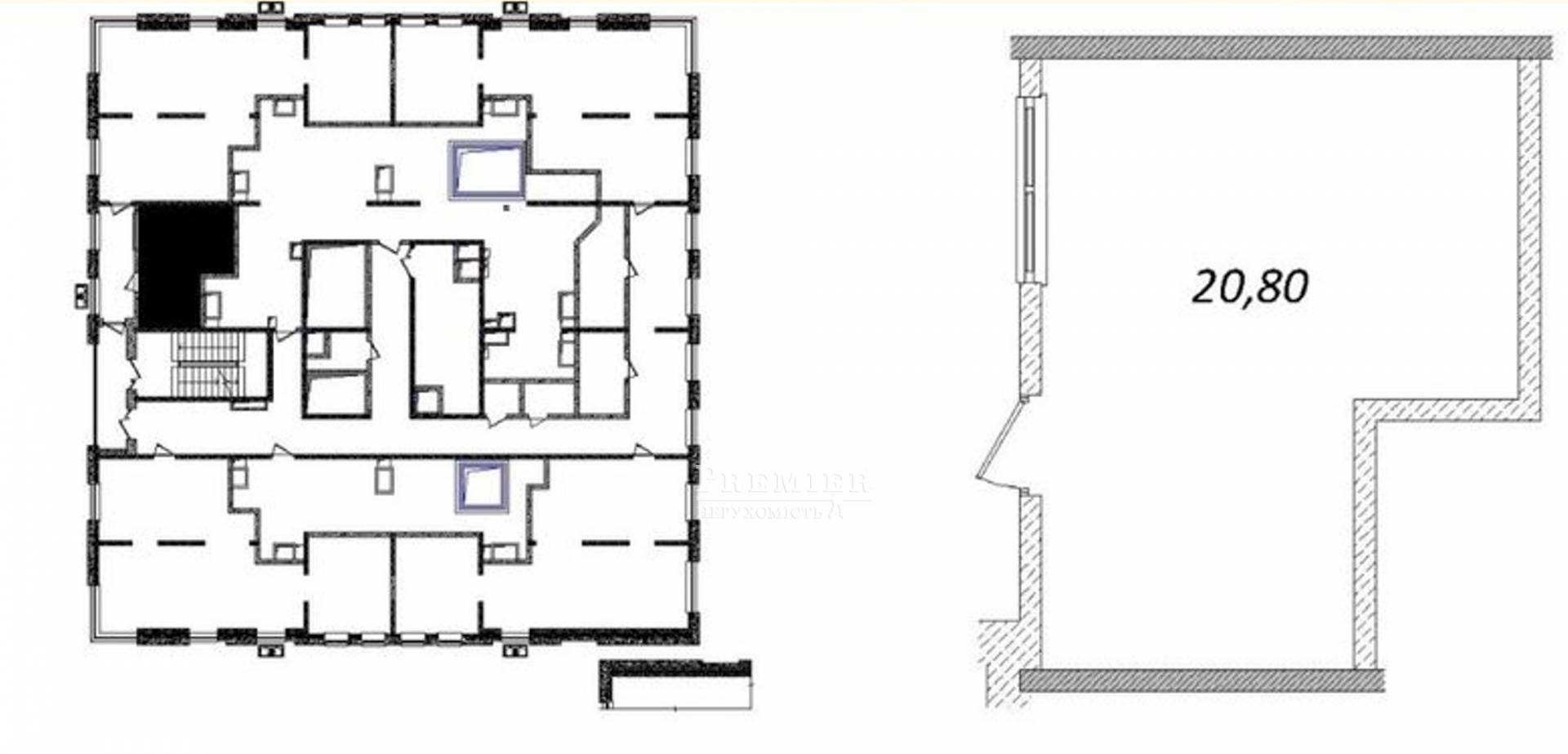
Общая
21 м2
Этаж
26
Этажность
26
В продаже смарт-квартира в ЖК Sea view в Аркадии. Общая площадь - 21 кв. м. В доме сейчас ведутся финальные работы . Квартира на 26 этаже. Переуступка оплачивается. Идеальна под сдачу. Спуск к морю возле Арарата . Пешая доступность к аркадийской аллее и Кадорр молу.
26 000 USD
22 315 EUR
1 133 600  UAH
USD
EUR
UAH

Филиалул. Преображенская, 49/51
Ответственный специалист
высшей категории
Оксана Курганская
Дополнительные услуги

Доходность объекта от аренды*

от4500грн/месяц

*Средняя цена при сдаче объекта в аренду в Приморском районе

Изменение цен на под любой вид деятельности в Приморском районе