Продается Студия, Хантадзе пер., Черноморск
Одесская обл. / Черноморск / пер. Хантадзе
ID 172955
Общая
43.7 м2
Этаж
8
Этажность
8
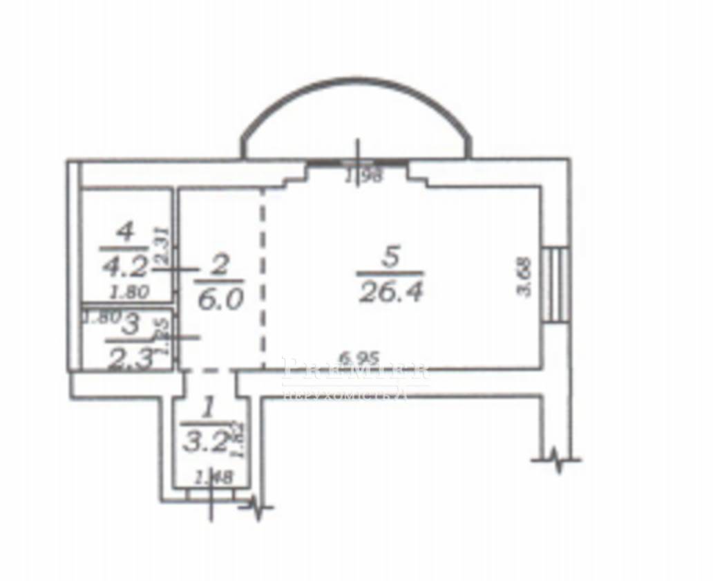
Продается студия общая площадь 43,7 м.кв. Свободная планировка, санузел смежный 4,2 м.кв. Комната 26,4 м.кв., кухня 9,2 м.кв., кладовка 2,3 м.кв. Есть балкон, французский стиль. Состояние от строителей. Уже проведено электричество. Отопление центральное. Электроплиты. Высота потолков 3,60 м. Чистый подъезд, лифт. Дом сдан. Во дворе сделана парковка. Рядом море. Студия пригодна как для жизни круглый год и как отличное коммерческое предложение под аренду! Возможна рассрочка.
43 700 USD
37 631 EUR
1 828 845 UAH
Филиалг. Черноморск ул. Данченко, 8
Ответственный специалист
высшей категории Надежда Дударова
высшей категории Надежда Дударова
Показать
Дополнительные услуги