Продается 3-комнатная квартира, Маразлиевская ул., г.Одесса
Одесса, Центральном, ул. Маразлиевская
ID 178363
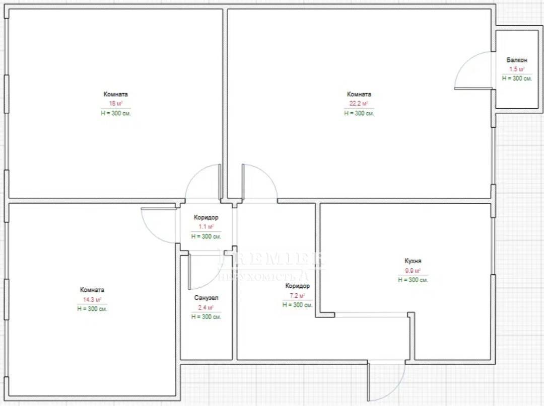
Комнат
3
Общая
73.5 м2
Жилая
55 м2
Кухня
10 м2
Этаж
2
Этажность
3
Квартира, где Вы захотите жить! Просторная трёхкомнатная на 74м2. Правильная планировка. Комнаты раздельные. Хороший ремонт, мебель и техника, индивидуальное отопление. Отличное месторасположение! Рядом с парком Шевченко, в пешей доступности пляж Ланжерон, Трасса Здоровья, центр города с множеством кафе, ресторанов и развлечений. Смотрим и покупаем!
87 000 USD
85 000 USD 102 469 EUR
72 168 EUR 3 841 050 UAH
3 752 750 UAH Филиалул. Преображенская, 49/51
Ответственный специалист
высшей категории Людмила Шевченко
высшей категории Людмила Шевченко
Показать
Дополнительные услуги
Похожие объекты
Трёхкомнатная квартира
г.Одесса/Центр/Новосельского ул.
Цена63 000 USD
Общая80 м2
Цена63 000 USD
80 м2
Трёхкомнатная квартира
г.Одесса/Центр/Екатерининская ул.
Цена85 000 USD
Общая92 м2
Цена85 000 USD
92 м2