Продается 2-комн. квартира в новострое, Овидиопольская дорога, г.Одесса
Одесса, Хаджибейском, Овидиопольская дорога
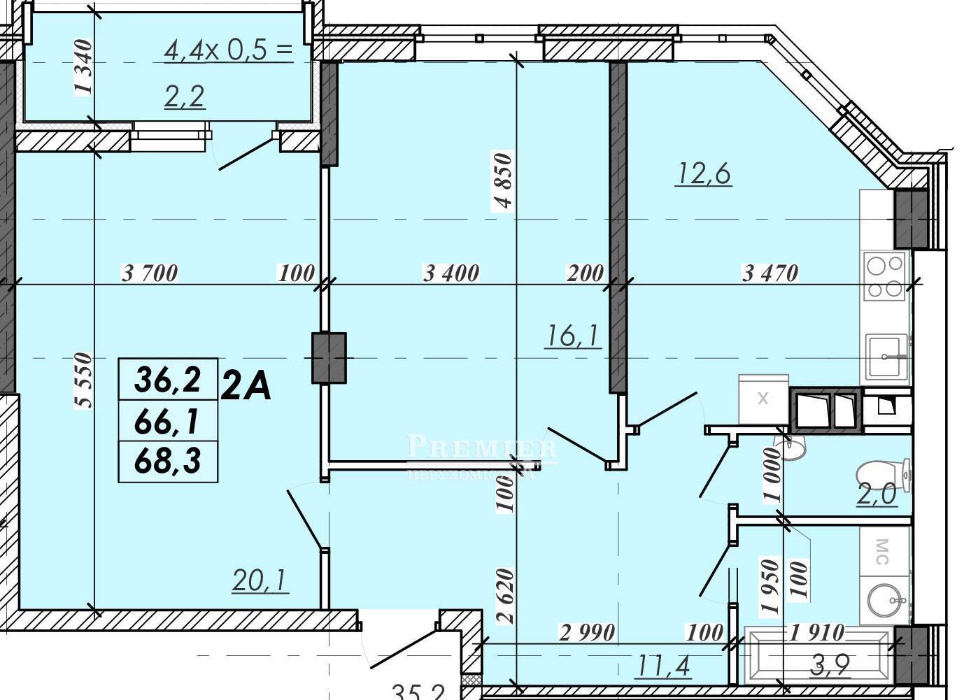
ID 179294
Комнат
2
Общая
68.2 м2
Жилая
38 м2
Кухня
14 м2
Этаж
16
Этажность
17
Продам 2х клмнатную просторную квартиру правильной планировки в новом жилом комплексе Реал Парк , комплекс находиться на территории парка , выгодное месторасположение комплекса делает его очень привлекательным как для жизни так и для инвестиций , большие благоустроенные дворы крулосуточная охрана , обслуживающачя компания обеспечивает качественное обслуживание дома .в нашем комплексе вам гаранитрованы комфорт уют безопасность .
47 000 USD
45 000 USD 55 123 EUR
38 369 EUR 1 971 650 UAH
1 887 750 UAH Филиалул. Ак. Королева, 65
Ответственный специалист Светлана Маркова
Показать
Дополнительные услуги
Доходность объекта от аренды*
от9637грн/месяц
*Средняя цена при сдаче объекта в аренду в Хаджибейском районе
Изменение цен на 2-комн. квартира в новострое в Хаджибейском районе
Похожие объекты
Двухкомнатная квартира
г.Одесса/Хаджибейский/Липы Ивана и Юрия ул. (Гайдара)
Цена50 000 USD
Общая60 м2
Цена50 000 USD
60 м2
Двухкомнатная квартира
г.Одесса/Хаджибейский/Космонавтов ул.
Цена39 000 USD
Общая61 м2
Цена39 000 USD
61 м2
Двухкомнатная квартира
г.Одесса/Хаджибейский/Сосюры ул.
Цена52 500 USD
Общая65 м2
Цена52 500 USD
65 м2
Двухкомнатная квартира
г.Одесса/Хаджибейский/Евгения Танцоры ул. (Петрова Генерала ул.)
Цена40 000 USD
Общая48 м2
Цена40 000 USD
48 м2