Продается 1-комн. квартира в новострое, Алексея Вадатурского ул. (Малиновского Маршала ул.), г.Одесса
Одесса, Хаджибейском, ул. Алексея Вадатурского (Малиновского Маршала )
ID 185149
Комнат
1
Общая
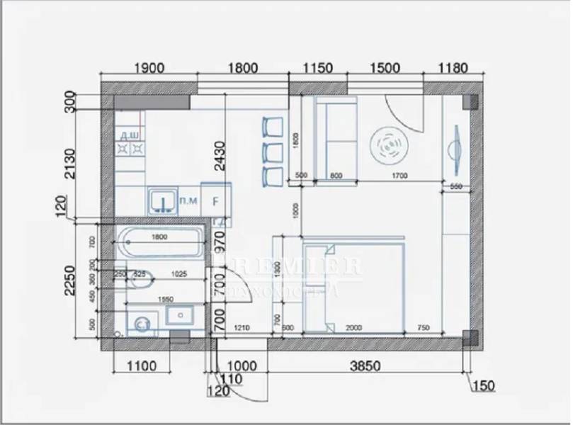
33.8 м2
Жилая
20 м2
Кухня
10 м2
Этаж
1
Этажность
4
В продаже 1 комнатная квартира на 1-мэтаже 4х этажного дома в новом жилом комплексе Брусника. . Площадь 33.8 м. Плюс патио зона 16 м входит в стоимость. Квартира газифицирована утепленина.Сдача в ближайшее время. За подробной информацией звоните- расскажу.
25 000 USD
21 528 EUR
1 046 250 UAH
Филиалул. Ак. Королева, 65
Ответственный специалист
высшей категории Александр Пальчик
высшей категории Александр Пальчик
Показать
Дополнительные услуги
Доходность объекта от аренды*
от6125грн/месяц
*Средняя цена при сдаче объекта в аренду в Хаджибейском районе
Изменение цен на 1-комн. квартира в новострое в Хаджибейском районе
Похожие объекты
Комнаты в коммуне
г.Одесса/Хаджибейский/Героев Крут (Терешковой Валентины) ул.
Цена20 000 USD
Общая14 м2
Цена20 000 USD
14 м2
Комнаты в коммуне
г.Одесса/Хаджибейский/Евгения Танцоры ул. (Петрова Генерала ул.)
Цена21 000 USD
Общая13.9 м2
Цена21 000 USD
13.9 м2
Однокомнатная квартира
г.Одесса/Хаджибейский/Блока ул.
Цена23 000 USD
Общая38 м2
Цена23 000 USD
38 м2
Однокомнатная квартира
г.Одесса/Хаджибейский/Кордонная ул.
Цена28 000 USD
Общая36 м2
Цена28 000 USD
36 м2