Продается 2-комн. квартира в новострое, Николаевская (Золотая Эра) ул., г.Одесса
Одесса, , ул. Николаевская (Золотая Эра)
ID 190045
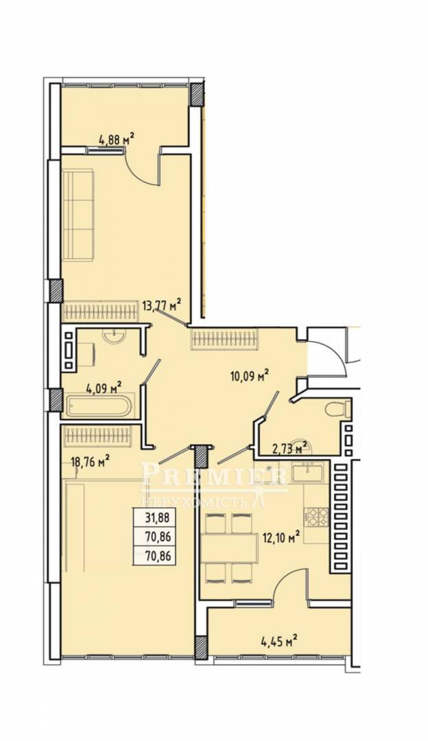
Комнат
2
Общая
74 м2
Жилая
50 м2
Этаж
11
Этажность
12
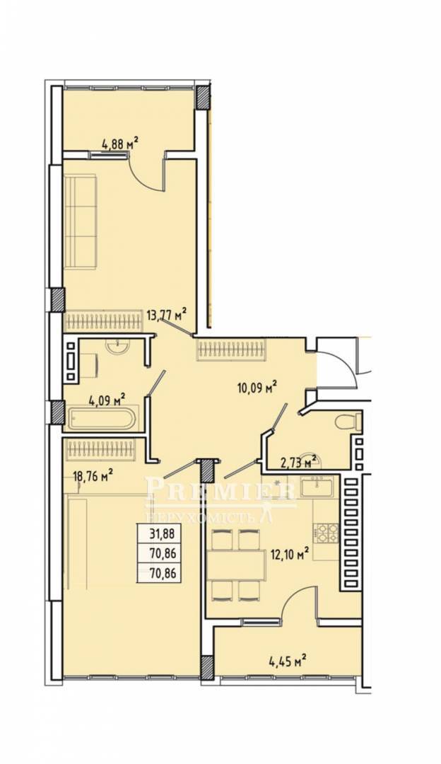
В продаже просторная 2 комнатная квартира в новом, сданном доме. Общая площадь 74 кв.м, кухня с выходом на панорамную лоджию площадью 4,5 кв.м. Идеальное состояние от строителей, стяжка пола, металлопластиковое панорамное остекление. Развитый район, море в пешей доступности. Закрытая охраняемая территория с видеонаблюдением.
63 900 USD
54 615 EUR
2 706 165 UAH
Филиалул. Сахарова 24
Ответственный специалист
высшей категории Мария Мукагова
высшей категории Мария Мукагова
Показать
Дополнительные услуги
Похожие объекты
Двухкомнатная квартира
г.Одесса/Пересыпский/Князя Володимира Великого просп. (Добровольского)
Цена45 000 USD
Общая50 м2
Цена45 000 USD
50 м2
Двухкомнатная квартира
г.Одесса/Пересыпский/Махачкалинская ул.
Цена60 000 USD
Общая68 м2
Цена60 000 USD
68 м2
Двухкомнатная квартира
г.Одесса/Пересыпский/Бочарова Генерала ул.
Цена57 000 USD
Общая73 м2
Цена57 000 USD
73 м2
Двухкомнатная квартира
г.Одесса/Пересыпский/Марсельская ул. (ЖК 10 Жемчужина)
Цена75 000 USD
Общая56 м2
Цена75 000 USD
56 м2