Продается Офис, Нежинская ул. , г.Одесса
Одесса, , ул. Нежинская
ID 185111
Комнат
6
Общая
66 м2
Этаж
3
Этажность
5
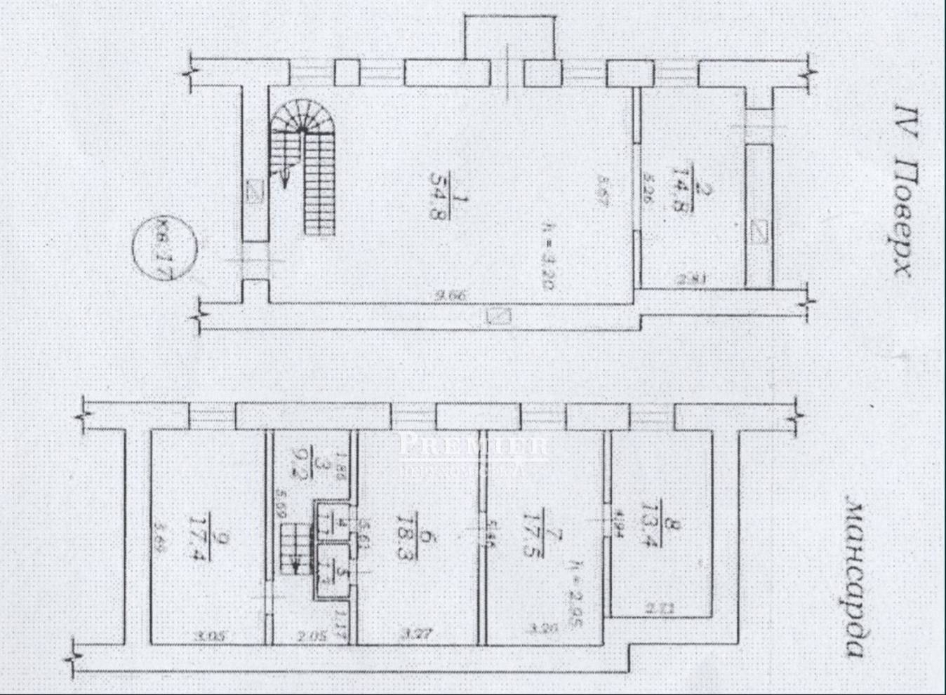
Продам офис 214 метров, жилой фонд расположен на ул. Нежинская. Три уровня, 3-4-5 (мансарда) этажи. Ремонт завершён на 99% (нужно установить светильники и прочую мелочь). Во дворе 30% квартир и помещений офисные. Двухконтурный газовый котёл, промышленные кондиционеры, гидрофор, бак для запаса воды, сигнализация, видеонаблюдение, разводка под вай-фай, чёрный ход. Парадная в хорошем состоянии . Три санузла, кухня для персонала, проектор с экраном (вмонтирован в потолок в зале на 4 этаже, опускается автоматически), два балкона (полностью новые), несколько подсобных помещений, одно из них распланировано в серверную (смонтирована стойка, из недорогих). Двор чистый и ухоженный. Вид из окон офиса - на противоположный дворовой флигель. Ворота двора и калитка, дверь подъезда на кодовом замке. Оперативный показ!
175 000 USD
165 000 USD 207 333 EUR
139 269 EUR 7 577 500 UAH
7 144 500 UAH Филиалпросп. Князя Владимира Великого, 99
(Добровольского просп.)
(Добровольского просп.)
Ответственный специалист
высшей категории Игорь Слободяник
высшей категории Игорь Слободяник
Показать
Дополнительные услуги