Продается 2-комн. квартира в новострое, Вильямса Ак. (ЖК Таировские Сады) ул., г.Одесса
ID 195021
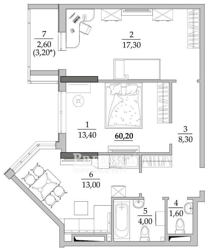
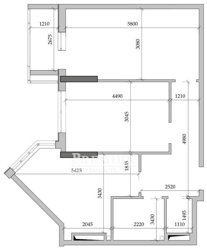
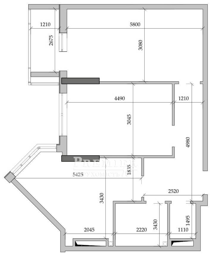
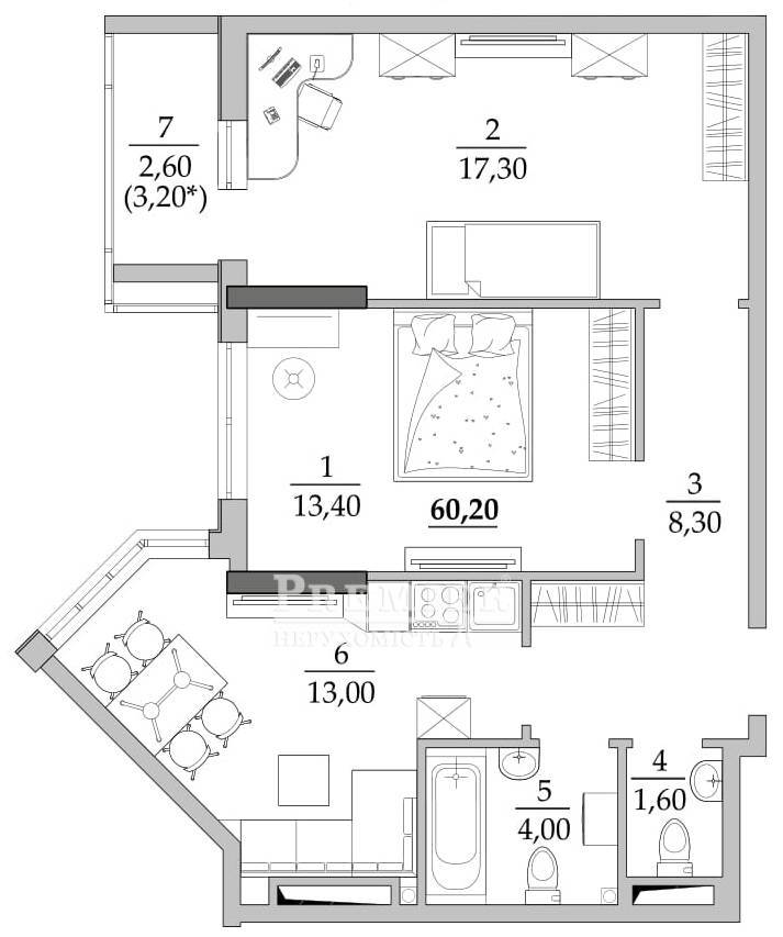
Комнат
2
Общая
60.2 м2
Жилая
30.7 м2
Кухня
13 м2
Этаж
2
Этажность
15
Предлагается к продаже 2-х комнатная квартира в новом современном комплексе, расположенном в одном из лучших районов г. Одессы, Таирово. Квартира на 2-м этаже, 17-ти этажного дома. Общая площадь 60 м.кв., две раздельные, светлые комнаты 13 м.кв. и 17 м.кв., из одной выход на лоджию, просторная кухня – гостиная 13 м.кв. с панорамным остеклением. Правильная планировка. Раздельный санузел. На полу идеальная стяжка, установлены металлопластиковые окна, бронированная дверь, приборы учета. Для жильцов дома – бассейн, площадки для отдыха, велодорожки. Благоустроенная придомовая территория, высокоразвитая инфраструктура и полная автономия делают жилой комплекс комфортным, уютным. Звоните, это хорошое вложение!
47 800 USD
40 403 EUR
2 088 860 UAH
ФилиалЕвгения Чикаленка, 58а
(Академика Вильямса)
(Академика Вильямса)
Ответственный специалист
высшей категории Дмитрий Плетнев
высшей категории Дмитрий Плетнев
Показать
Дополнительные услуги
Доходность объекта от аренды*
от11084грн/месяц
*Средняя цена при сдаче объекта в аренду в Киевском районе
Изменение цен на 2-комн. квартира в новострое в Киевском районе
Похожие объекты
Двухкомнатная квартира
г.Одесса/Киевский/Дача Ковалевского ул.
Цена62 000 USD
Общая58 м2
Цена62 000 USD
58 м2
Двухкомнатная квартира
г.Одесса/Киевский/Дача Ковалевского ул.
Цена55 000 USD
Общая65 м2
Цена55 000 USD
65 м2
2-комн. квартира в новострое
г.Одесса/Киевский/Архитекторская ул. (ЖК 21 Жемчужина)
Цена47 500 USD
Общая69.4 м2
Цена47 500 USD
69.4 м2
Двухкомнатная квартира
г.Одесса/Киевский/Дача Ковалевского ул.
Цена51 000 USD
Общая68 м2
Цена51 000 USD
68 м2