Продается Дом дача, Верхняя, 4 ул., Фонтанский сельский совет, СМ Вапнярский , СТ Аджалик
Одесская обл. / Фонтанский сельский совет / ул. Верхняя, 4
ID 198890
Комнат
5
Общая
120 м2
Этажность
2
Участок
5.5 соток
Вода
Водопровод
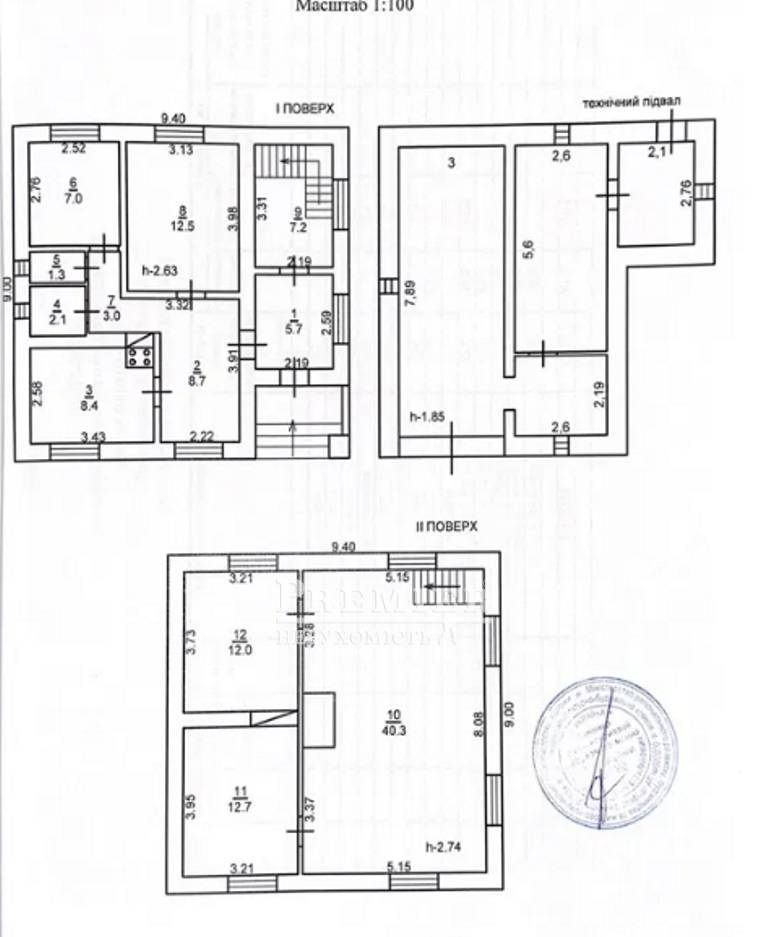
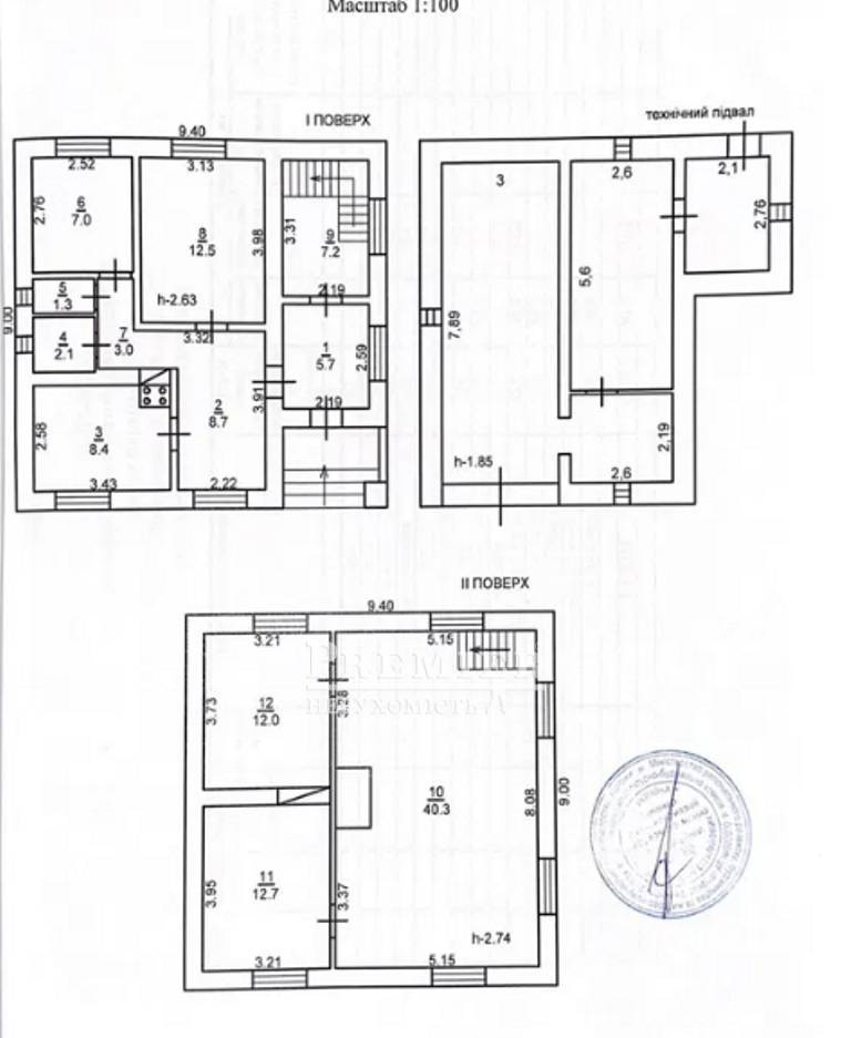
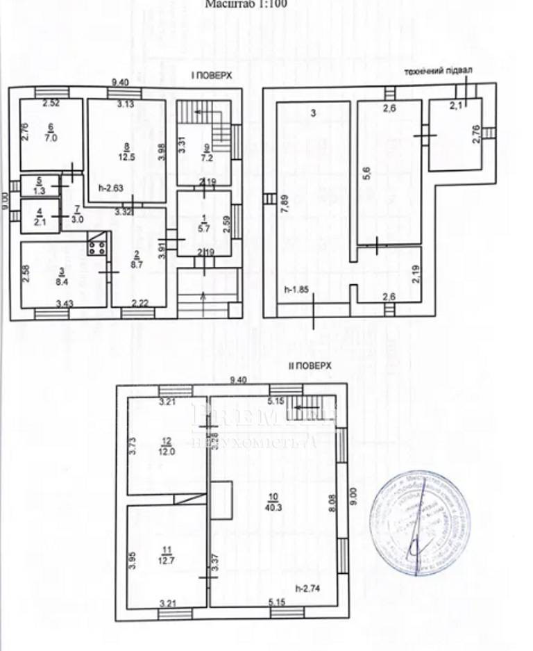
Продам двухэтажный теплый, просторный дом. Общей площадью 120 м2 с земельным участком 5.5 соток земли район Вапнярки, Фонтанская ТГ. В доме 5 жилых комнат, кухня 15 м2. Сад с фруктовыми деревьями и огород 5,5 соток. Вода и свет подключены. Большой гараж и подвал. Звоните по любым вопросам.Оперативный показ
45 000 USD
42 000 USD 53 220 EUR
35 513 EUR 1 946 250 UAH
1 816 500 UAH Филиалул. Сахарова 24
Ответственный специалист Инна Коваль
Показать
Дополнительные услуги
Похожие объекты
Дом дача
Одесcк. обл./Одесский район/Бурлачья Балка/Центральная ул.
Цена59 900 USD
Общая70 м2
Участок10соток
Цена59 900 USD
10 соток
Дом дача
Одесcк. обл./Одесский район/Александровка/Виноградная ул.
Цена29 000 USD
Общая25 м2
Участок5.8соток
Цена29 000 USD
5.8 соток
Дом дача
Одесcк. обл./Одесский район/Александровка (Лиманский рн)/Молодежная ул.
Цена31 000 USD
Общая65.5 м2
Участок14.5соток
Цена31 000 USD
14.5 соток
Дом дача
Одесcк. обл./Одесский район/Красный Расселенец/Чкалова ул.
Цена48 000 USD
Общая130 м2
Участок24сотки
Цена48 000 USD
24 сотки