Продается 1-комн. квартира в новострое, Сахарова Академика ул., г.Одесса
Одесса, , ул. Сахарова Академика
ID 199858
Комнат
1
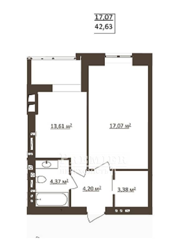
Общая
42.63 м2
Жилая
17 м2
Кухня
14 м2
Этаж
6
Этажность
9
Продам одно комнатную квартиру в новом кирпичном доме на Сахарова. Общая площадь квартиры 43 метров. Квартира уютная, с 14-и метровой кухни есть выход на лоджию, большая гардеробная. Сделана штукатурка кирпичных стен за исключением рабочей стенки в кухне и внутренних стен санузла Отопление в комплексе индивидуальное. В квартире установлен двухконтурный котел. Панорамное остекление. Современное бесшумные лифты. Комплекс, удачно расположен в молодом и развивающемся районе, где уже отлично организована транспортная развязка со множеством маршрутов, соединяющих спальный район с любым местом в городе. В шаговой доступности все необходимое для комфортной жизни: ТРЦ «Ривьера», ТРЦ «Сити Центр», супермаркеты, рынки, кинотеатры, детские сады, аптеки, поликлиника, школы, и самое главное- море и лиман в 10 минутах езды. Дворы благоустроены по новым стандартам с учетом пожеланий жителей. Покупая квартиру Вы делаете шаг вперед к новым возможностям и перспективам.
36 000 USD
30 924 EUR
1 519 920 UAH
ФилиалСемена Палия, 108
(Днепропетровская дор,)
(Днепропетровская дор,)
Ответственный специалист Светлана Гончар
Показать
Дополнительные услуги
Похожие объекты
Однокомнатная квартира
г.Одесса/Пересыпский/Бочарова Генерала ул.
Цена38 000 USD
Общая41 м2
Цена38 000 USD
41 м2
Однокомнатная квартира
г.Одесса/Пересыпский/Марсельская ул.
Цена45 000 USD
Общая57 м2
Цена45 000 USD
57 м2
Однокомнатная квартира
г.Одесса/Пересыпский/Ойстраха Давида (Затонского) ул.
Цена29 000 USD
Общая30 м2
Цена29 000 USD
30 м2
Однокомнатная квартира
г.Одесса/Пересыпский/Марсельская ул.
Цена42 000 USD
Общая43 м2
Цена42 000 USD
43 м2