Продается Торговые площади, Бернардацци (Красных зорь) ул., г.Одесса
Одесса, Приморском, ул. Бернардацци (Красных зорь)
ID 203000
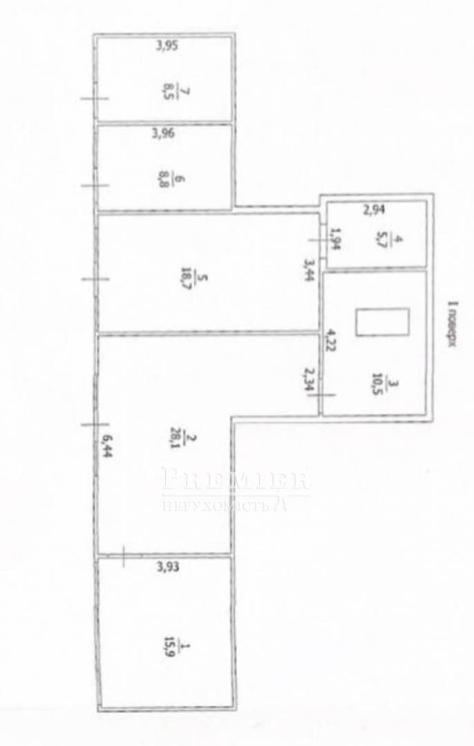
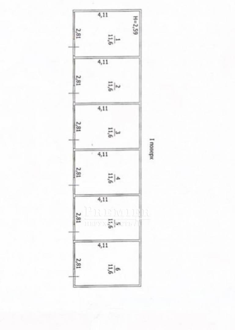
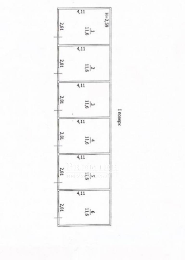
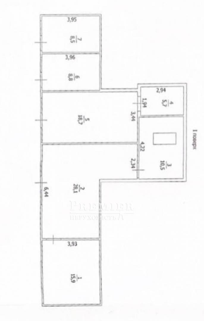
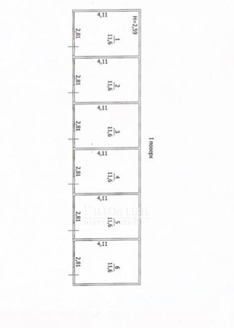
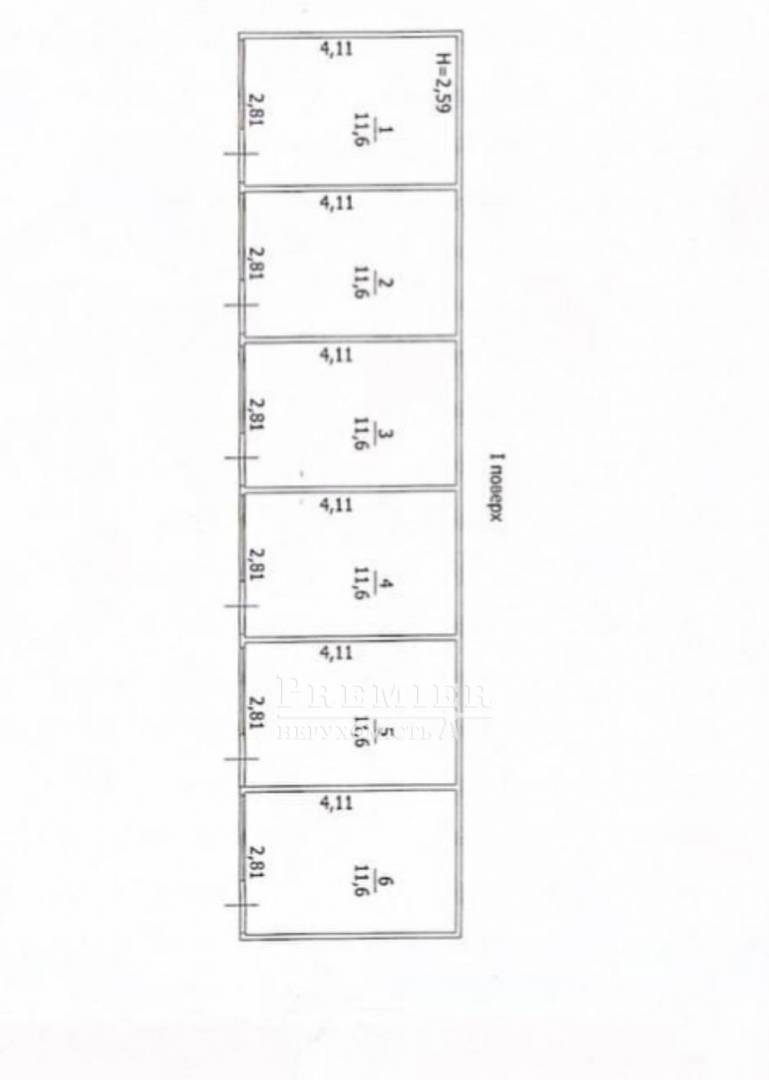
Общая
221.3 м2
Этаж
1
Этажность
1
Предлагается уникальная возможность приобрести торговые помещения на живописной набережной пляжа Чайка. Комплексы расположены по обе стороны лестницы к морю, обеспечены электричеством, водопроводом и канализацией. Это идеальное решение для размещения бизнеса или вложений в недвижимость в одном из самых привлекательных мест у побережья.
370 000 USD
317 756 EUR
16 428 000 UAH
ФилиалОтдел продаж новостроя
Ответственный специалист Ольга Константинова
Показать
Дополнительные услуги
Доходность объекта от аренды*
от77268грн/месяц
*Средняя цена при сдаче объекта в аренду в Приморском районе
Изменение цен на торговые площади в Приморском районе
Похожие объекты
Под любой вид деятельности
г.Одесса/Приморский/Елисаветинская (Щепкина) ул.
Цена350 000 USD
Общая215 м2
Цена350 000 USD
215 м2
Готовый бизнес
г.Одесса/Приморский/1-й Водопроводный пер.
Цена330 000 USD
Общая380 м2
Цена330 000 USD
380 м2
Бар, кафе, ресторан
г.Одесса/Приморский/Литературная ул.
Цена380 000 USD
Общая115 м2
Цена380 000 USD
115 м2
Под любой вид деятельности
г.Одесса/Приморский/Артура Савельева ул. (Черняховского ул.)
Цена350 000 USD
Общая161.7 м2
Цена350 000 USD
161.7 м2