Продается ЖК Пространство у Стамбульского парка, Приморская ул., г. Одесса

Одесская обл. / Центральномг. Одесса / ул. Приморская
Характеристики ЖК Пространство у Стамбульского парка
Начало строительства:
1 квартал 2021
Окончание строительства:
1 квартал 2025
Конструктив дома
Этажность:
6
Конструктив:
Монолитно-каркасный+газобетон
Состояние жилья
Высота помещения:
3,3 м
Отопление:
Автономное
Инженерные системы
Безопасность:
есть
Паркинг:
78 мест

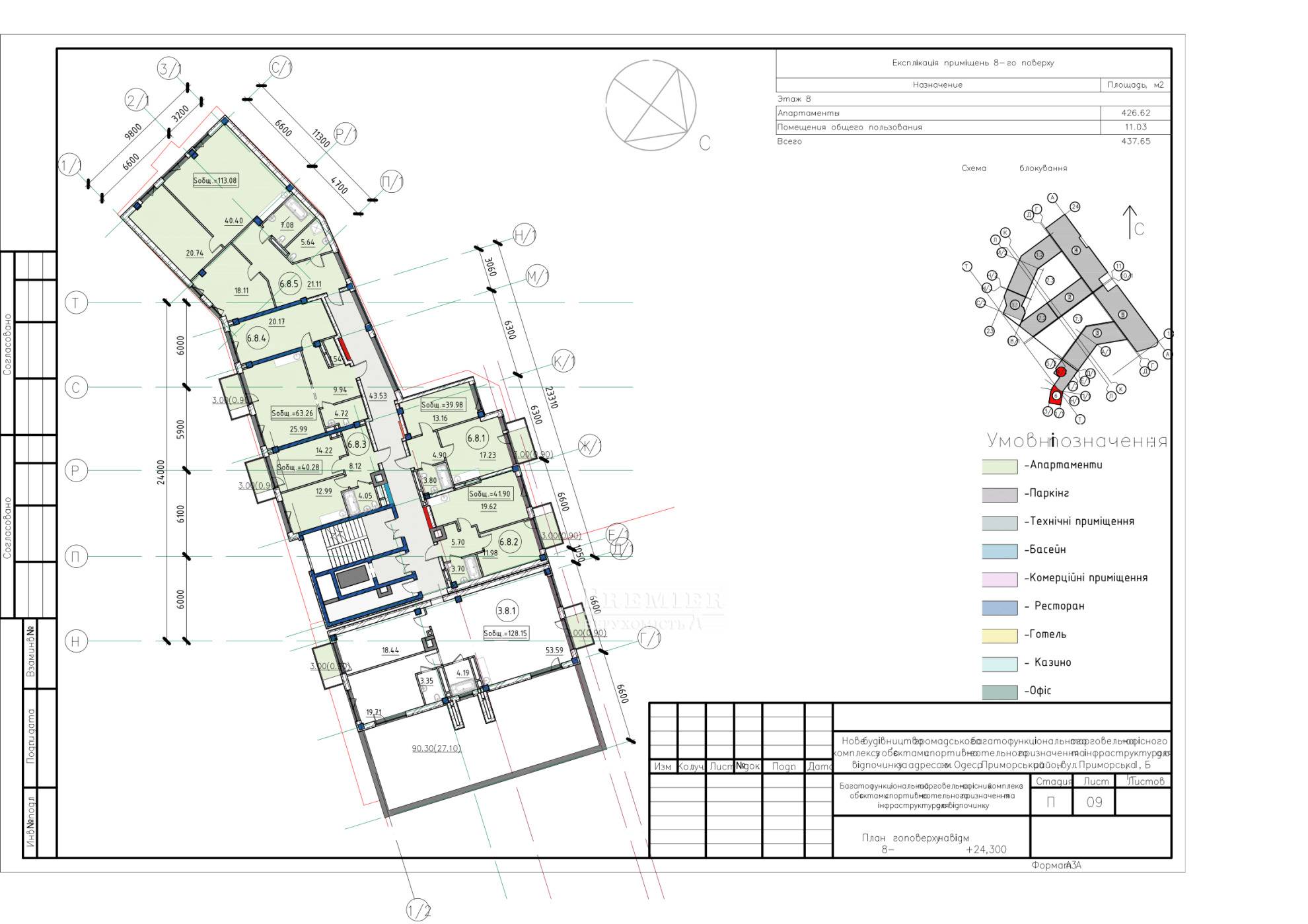
«Пространство у Стамбульского парка» - новый жилой комплекс премиум-класса, который располагается в самом центре Одессы. Обширная зеленая зона рядом, роскошный вид на море, чистый воздух и удачная локация в тихом квартале делают его востребованным и престижным. Здесь можно наслаждаться тихой и размеренной обстановкой, при этом вся необходимая инфраструктура есть поблизости, в шаговой доступности.

При строительстве жилого комплекса было решено применить инновационные технологии, что обеспечит его прочность на долгие годы. Это фундамент из монолитных ростверк и монолитно-каркасный тип конструкции, благодаря чему строение будет надежно устойчивым. Стены из газобетона надежно защитят от шума и неблагоприятных погодных условий. Фасад дополнительно задекорирован стойким покрытием и утеплен базальтовыми плитами. Строение состоит из шести этажей, на первом этаже разместились коммерческие помещения с удобной планировкой. Тут можно разместить небольшое кафе, ресторан, торговые площадки и павильоны. Несмотря на то, что квартиры в комплексе предлагаются к продаже уже с готовой планировкой, владельцы смогут их перепланировать по своему усмотрению. Окна выполнены из алюминиевого семикамерного профиля с двухкамерным мультифункциональным стеклопакетом, это гарантирует надежную защиту от внешних воздействий и поможет сохранить оптимальный микроклимат в помещениях. Автономная система отопления в доме – это возможность самостоятельно регулировать подачу тепла в свои квартиры, не завися от городских коммунальных служб. Внутри здания курсируют 8 комфортабельных лифтов фирмы OTIS – пассажирские и грузовые. Владельцы авто смогут воспользоваться услугами круглосуточного закрытого охраняемого паркинга, где гости также смогут оставить свои автомобили. Придомовая территория закрыта от посторонних и красиво благоустроена. Жилье в новом «Пространстве у Стамбульского парка» - это отличный выбор и для проживания, и для инвестирования в недвижимость Одессы.

от 64 827
ГРН. / кв.м
USD
UAH
Компания "Премьер" является официальным партнером строительной компании. Объекты продаются без какой либо комиссии.
Контакты менеджеров по продаже
ул. Преображенская, 49/51
Артура Савельева ул (Черняховского). 11
Задать вопрос
Назначить осмотр
Посмотреть на карте
Дополнительные услуги