Продается Дом дача, Высоцкого пр-т, Фонтанка
Одесская обл. / Фонтанка / Высоцкого пр-т
ID 206387
Комнат
7
Общая
216 м2
Жилая
100 м2
Этажность
2
Участок
10 соток
Газ
Природный
Вода
Водопровод
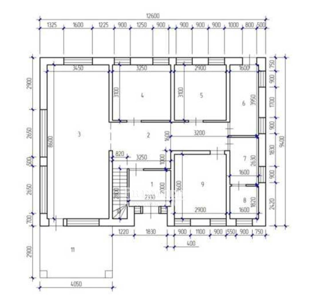
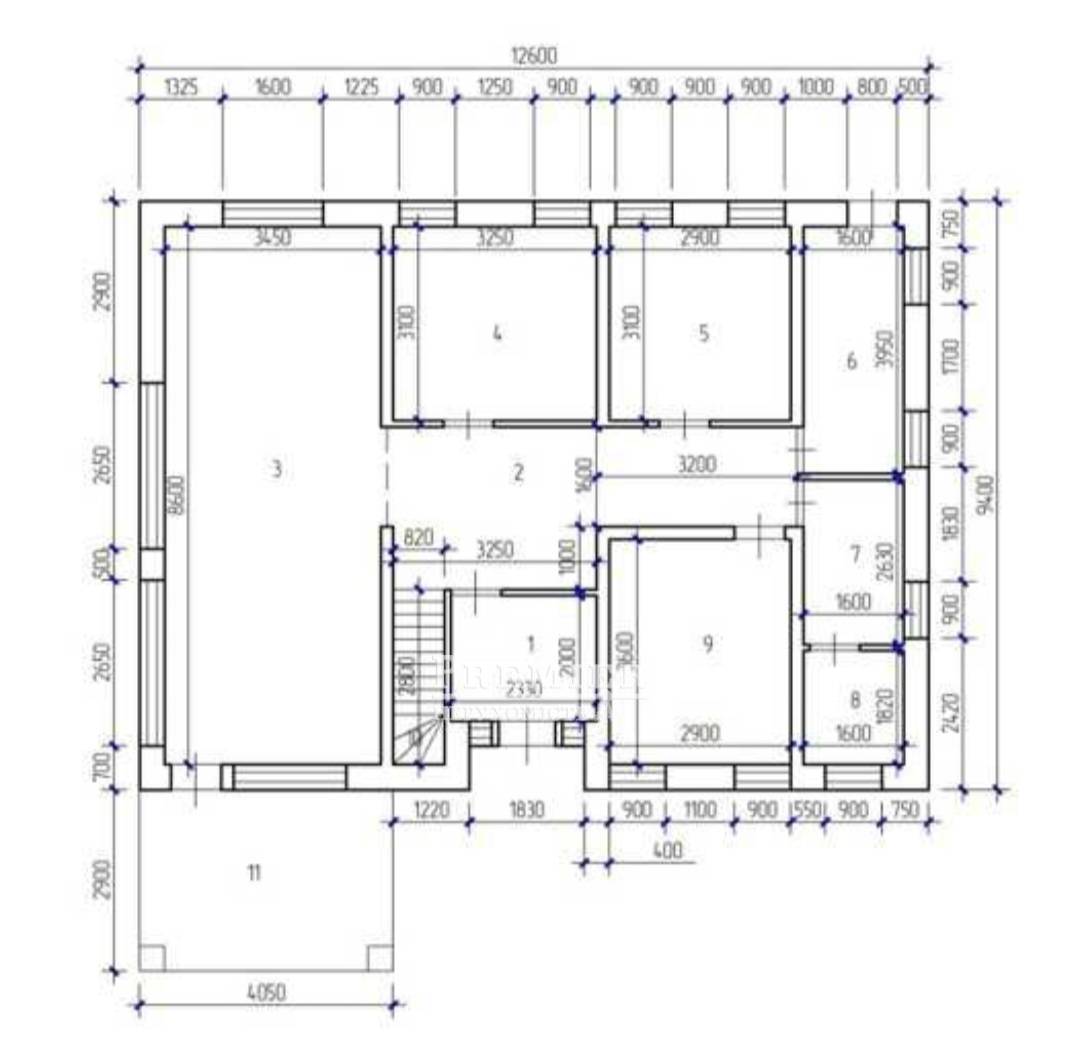
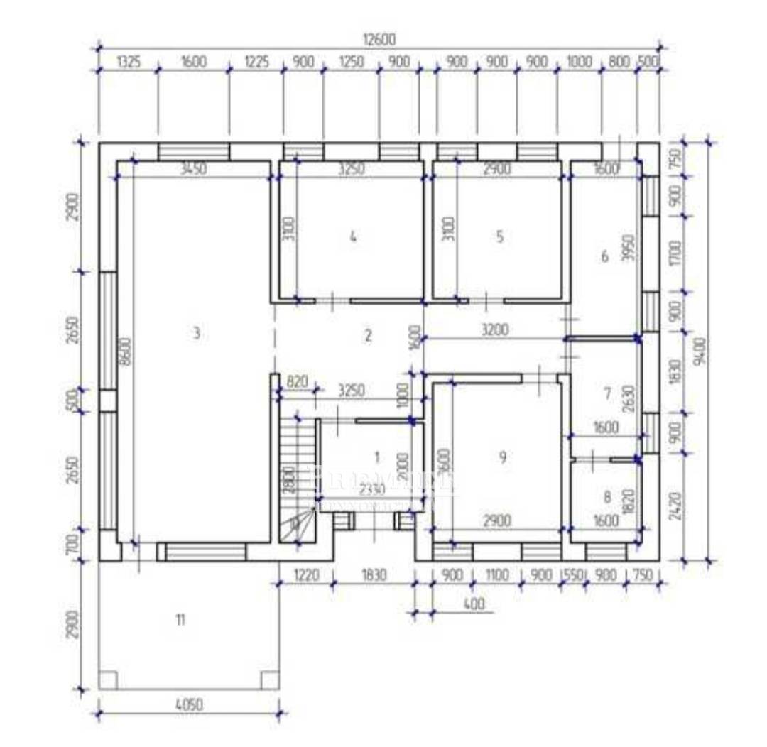
Предлагается к продаже двухэтажный дом площадью 216 кв.м, в Фонтанке рядом с ТРЦ Ривьера. На первом этаже просторная гостиная; кухня-студия; две комнаты; коридоры, котельная и санузел. Большие панорамные окна, есть выход на террасу и задний двор. Сделано 80% ремонта, в спальнях установлены радиаторы, по дому теплый пол, необходимо доделать потолки и обои.
На втором этаже ремонт не начат, перегородки для планировки есть. Планировка включает: три комнаты, большую гостиную,
санузел с местом для ванной и душевой, два балкона. Один выходит на фасад с террасой; второй соединен с кабинетом. Очень светлый и просторный дом, фасад ориентирован на юг. Дом расположен на участке 10 соток, на заднем дворе есть сад с молодыми деревьями, ягодами (виноград, клубника, малина), перед домом предусмотрена зона для ландшафтного дизайна (работы начаты). Дом расположен не далеко от торгового центра "Ривьера" - 15 мин, также рядом город Одесса.
На втором этаже ремонт не начат, перегородки для планировки есть. Планировка включает: три комнаты, большую гостиную,
санузел с местом для ванной и душевой, два балкона. Один выходит на фасад с террасой; второй соединен с кабинетом. Очень светлый и просторный дом, фасад ориентирован на юг. Дом расположен на участке 10 соток, на заднем дворе есть сад с молодыми деревьями, ягодами (виноград, клубника, малина), перед домом предусмотрена зона для ландшафтного дизайна (работы начаты). Дом расположен не далеко от торгового центра "Ривьера" - 15 мин, также рядом город Одесса.
119 000 USD
103 336 EUR
5 259 800 UAH
Филиалул. Сахарова 24
Ответственный специалист
высшей категории Ирина Коршикова
высшей категории Ирина Коршикова
Показать
Дополнительные услуги
Похожие объекты
Дом дача
Одесcк. обл./Одесский район/Бурлачья Балка/Центральная ул.
Цена59 900 USD
Общая70 м2
Участок10соток
Цена59 900 USD
10 соток
Дом дача
Одесcк. обл./Одесский район/Прилиманское/Новая ул.
Цена145 000 USD
Общая225.6 м2
Участок9соток
Цена145 000 USD
9 соток
Дом дача
Одесcк. обл./Одесский район/Новая Дофиновка/
Цена150 000 USD
Общая330 м2
Участок10соток
Цена150 000 USD
10 соток