Продается Производственные помещения, 42 линия ул., г.Одесса
Одесса, , ул. 42 линия
ID 209533
Комнат
1
Общая
600 м2
Этаж
1
Этажность
2
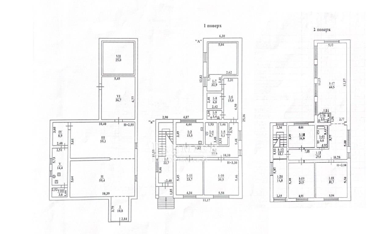
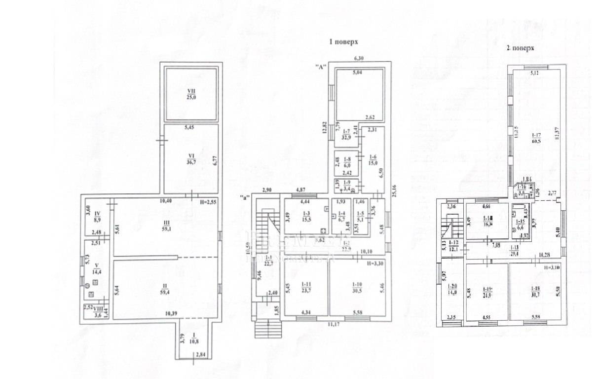
Предлагается к продаже коммерция с действующим бизнесом - готовый швейный цех. Общая площадь помещений 600 кв.м. Полностью оборудованный на 14 комплектов (оверлок прямострочка Jack). Дополнительно 8 комплектов на складе готовых к установке.
Цех с возможностью проживания до 9 сотрудников (кровати , комнаты и т.п.).
Коммуникации: Электричество 3 фазы 17 квт ( бытовой свет , экономия более чем в 2р по сравнению с коммерческим ) , вода ,канализация ,газ .
Помещения кондиционированы: зима/лето. Закрытая территория, двор 5 соток (возможность парковки на своей закрытой территории ), тихое не проходное место .Есть бомбоубежище(бункер).
Цех с возможностью проживания до 9 сотрудников (кровати , комнаты и т.п.).
Коммуникации: Электричество 3 фазы 17 квт ( бытовой свет , экономия более чем в 2р по сравнению с коммерческим ) , вода ,канализация ,газ .
Помещения кондиционированы: зима/лето. Закрытая территория, двор 5 соток (возможность парковки на своей закрытой территории ), тихое не проходное место .Есть бомбоубежище(бункер).
180 000 USD
155 551 EUR
7 902 000 UAH
Филиалул. Сахарова 24
Ответственный специалист
высшей категории Ирина Коршикова
высшей категории Ирина Коршикова
Показать
Дополнительные услуги