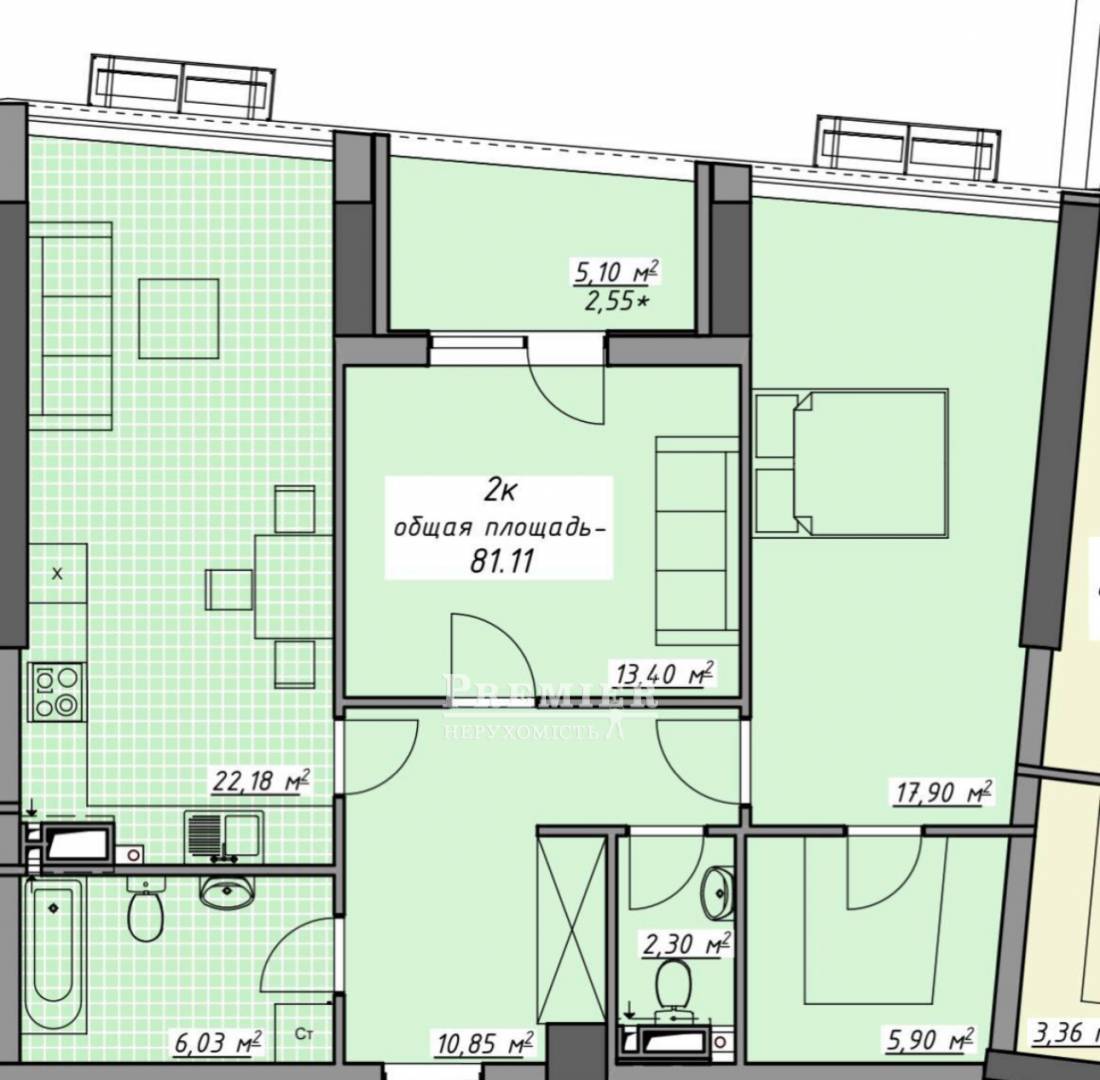
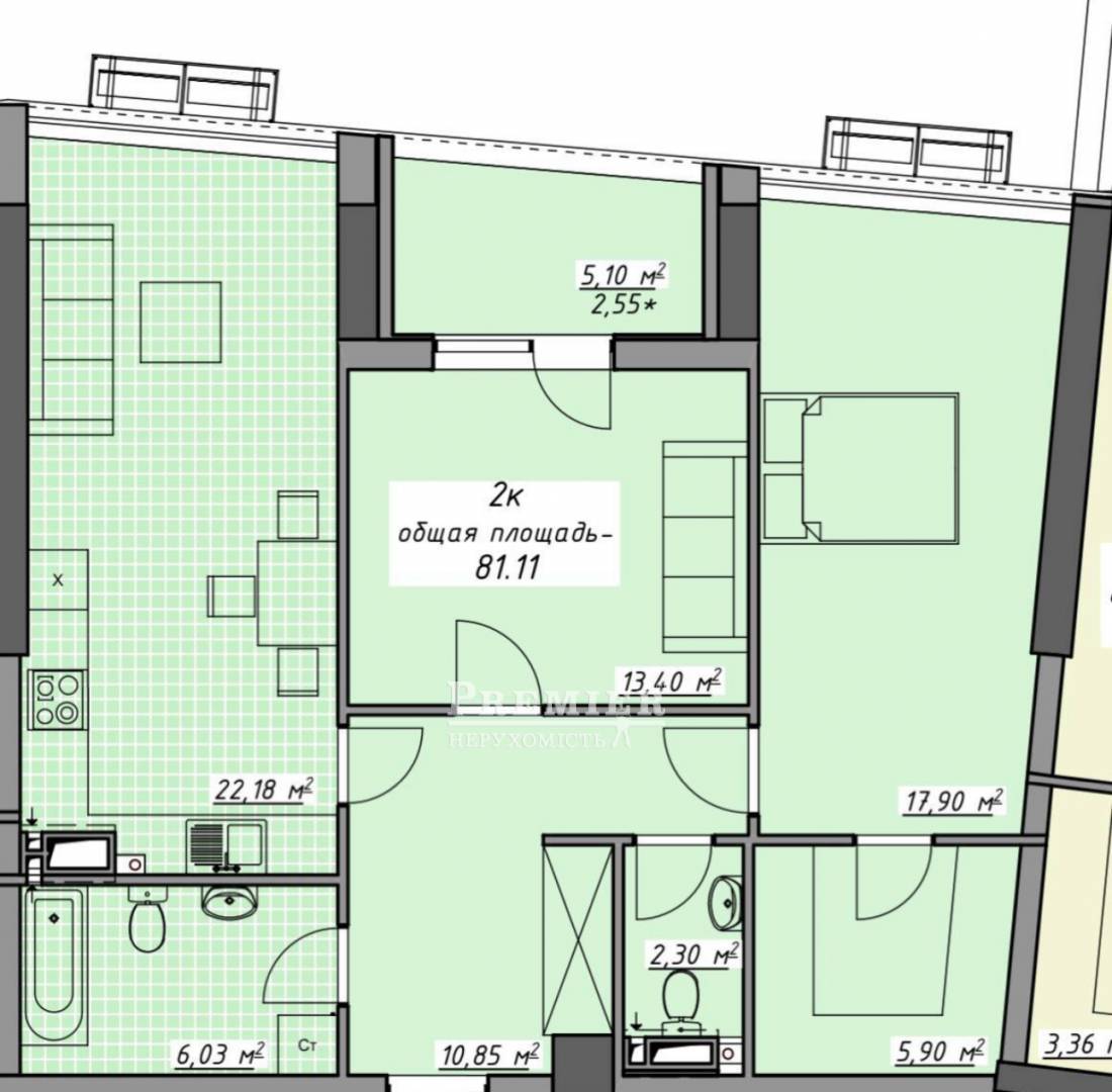
Продается 2-комн. квартира в новострое, Курортный пер., г.Одесса
Одесса, Приморском, пер. Курортный
ID 211474
Комнат
2
Общая
81.8 м2
Жилая
24 м2
Кухня
16 м2
Этаж
2
Этажность
25
В продаже двухкомнатная квартира в одном из самых элитных комплексов в Аркадии ЖК Атмосфера. Квартира общей площадью 82 квадратных метров. Расположена на комфортном 2 этаже. Квартира будет с дорогим и качественным ремонтом. Авансировать можно уже. Не упустите свой шанс приобрести квартиру своей мечты. Звоните для просмотра!
155 000 USD
132 169 EUR
6 846 350 UAH
ФилиалЕвгения Чикаленка, 58а
(Академика Вильямса)
(Академика Вильямса)
Ответственный специалист
высшей категории Анастасия Богонос
высшей категории Анастасия Богонос
Показать
Дополнительные услуги
Доходность объекта от аренды*
от22215грн/месяц
*Средняя цена при сдаче объекта в аренду в Приморском районе
Изменение цен на 2-комн. квартира в новострое в Приморском районе
Похожие объекты
2-комн. квартира в новострое
г.Одесса/Приморский/Курортный пер.
Цена155 000 USD
Общая66 м2
Цена155 000 USD
66 м2
Покупка по гос. программам
2-комн. квартира в новострое
г.Одесса/Приморский/Краснова ул.(ЖК 60 Жемчужина)
Цена113 000 USD
Общая64 м2
Цена113 000 USD
64 м2
Двухкомнатная квартира
г.Одесса/Приморский/Гагаринское плато (ЖК 2 Жемчужина)
Цена155 000 USD
Общая87 м2
Цена155 000 USD
87 м2
Двухкомнатная квартира
г.Одесса/Приморский/Мореходный пер.
Цена180 000 USD
Общая87 м2
Цена180 000 USD
87 м2