Продается 2-комн. квартира в новострое, Краснова ул.(ЖК 67 Жемчужина), г.Одесса
Одесса, Приморском, ул. Краснова (ЖК 67 Жемчужина)
ID 212035
Комнат
2
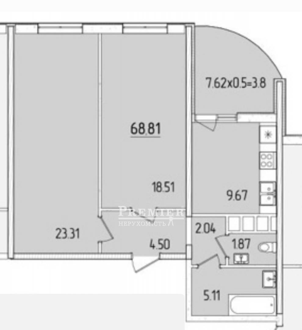
Общая
68.2 м2
Жилая
30 м2
Кухня
20 м2
Этаж
12
Этажность
24
В продаже 2 комнатная квартира в Жемчужине на Краснова. Новый дом бизнес класса подземный паркинг, круглосуточная охрана, большая придомовая территория. 12 этаж, общая площадь 68,2 кв.м. Окна на ипподром и двор. Развитая инфраструктура района и отличная транспортная развязка. Оперативный показ, звоните.
139 800 USD
118 675 EUR
6 165 180 UAH
Филиалул. Ак. Королева, 33
Ответственный специалист
высшей категории Татьяна Аль-Фарра
высшей категории Татьяна Аль-Фарра
Показать
Дополнительные услуги
Доходность объекта от аренды*
от20023грн/месяц
*Средняя цена при сдаче объекта в аренду в Приморском районе
Изменение цен на 2-комн. квартира в новострое в Приморском районе
Похожие объекты
2-комн. квартира в новострое
г.Одесса/Приморский/Курортный пер.
Цена155 000 USD
Общая66 м2
Цена155 000 USD
66 м2
Покупка по гос. программам
2-комн. квартира в новострое
г.Одесса/Приморский/Краснова ул.(ЖК 60 Жемчужина)
Цена113 000 USD
Общая64 м2
Цена113 000 USD
64 м2
Двухкомнатная квартира
г.Одесса/Приморский/Гагаринское плато (ЖК 2 Жемчужина)
Цена155 000 USD
Общая87 м2
Цена155 000 USD
87 м2
Двухкомнатная квартира
г.Одесса/Приморский/Мореходный пер.
Цена180 000 USD
Общая87 м2
Цена180 000 USD
87 м2