Продается 2-комн. квартира в новострое, Французский бульв. , г.Одесса
Одесса, Приморском, Французский бульв.
ID 212746
Комнат
2
Общая
75 м2
Жилая
30 м2
Этаж
9
Этажность
21
Продается шикарная 2-комнатная квартира в жилом комплексе на Французском бульваре на первой линии моря с роскошным видом! Общая площадь 75 кв.м., на 9 этаже современной 25-этажки. Надежная разработка монолитно-каркасного строительства, современная архитектура. Дом сдан.
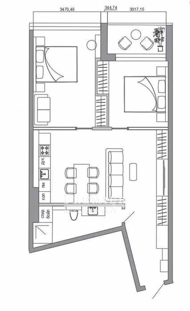
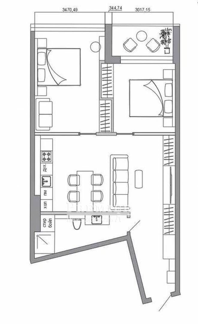
Планировка с большими панорамными окнами, кухня-студия, две отдельные спальни, одна из которых с выходом на лоджию. Состояние квартиры от строителей - заведены все коммуникации, счетчики, стяжка, металлопластиковые энергосберегающие окна, отопление, надежная входная бронированная дверь.
Комплекс бизнес-класса с бассейном, лаунж-зоной, рестораном, фонтанами, простором для детей. Охраняемая закрытая территория, многоуровневая система безопасности, консьерж-сервис, двор без машин, паркинг. Оригинальный утепленный фасад, ландшафтный дизайн. Удобная транспортная развязка, центр рядом.
Дом находится в курортной зоне, море, пляж, парковая зона, свежий морской воздух.
Планировка с большими панорамными окнами, кухня-студия, две отдельные спальни, одна из которых с выходом на лоджию. Состояние квартиры от строителей - заведены все коммуникации, счетчики, стяжка, металлопластиковые энергосберегающие окна, отопление, надежная входная бронированная дверь.
Комплекс бизнес-класса с бассейном, лаунж-зоной, рестораном, фонтанами, простором для детей. Охраняемая закрытая территория, многоуровневая система безопасности, консьерж-сервис, двор без машин, паркинг. Оригинальный утепленный фасад, ландшафтный дизайн. Удобная транспортная развязка, центр рядом.
Дом находится в курортной зоне, море, пляж, парковая зона, свежий морской воздух.
189 000 USD
162 110 EUR
7 975 800 UAH
Филиалул. Космонавтов, 32
Ответственный специалист Евгений Найденов
Показать
Дополнительные услуги
Доходность объекта от аренды*
от20704грн/месяц
*Средняя цена при сдаче объекта в аренду в Приморском районе
Изменение цен на 2-комн. квартира в новострое в Приморском районе
Похожие объекты
Двухкомнатная квартира
г.Одесса/Приморский/Говорова Маршала ул.
Цена195 000 USD
Общая82 м2
Цена195 000 USD
82 м2
Двухкомнатная квартира
г.Одесса/Приморский/Гагаринское плато
Цена150 000 USD
Общая118 м2
Цена150 000 USD
118 м2
2-комн. квартира в новострое
г.Одесса/Приморский/Гагаринское плато (ЖК 2 Жемчужина)
Цена160 000 USD
Общая84 м2
Цена160 000 USD
84 м2
Двухкомнатная квартира
г.Одесса/Приморский/Французский бульв.
Цена220 000 USD
Общая86 м2
Цена220 000 USD
86 м2