ID 212829
Комнат
3
Общая
91 м2
Жилая
45 м2
Кухня
20 м2
Этаж
1
Этажность
5
Продается новая 3-х комнатная квартира в комплексе уровня бизнес-класса рядом с морем. Выход в собственный дворик и патио (дополнительные 30 кв.м.) – ощущение частного дома. Квартира на 1 этаже 5-этажного современного дома. Дом сдан.
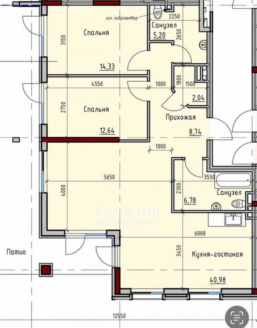
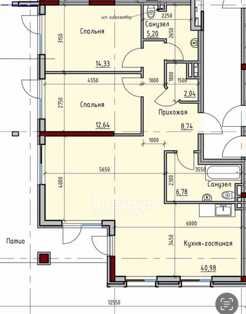
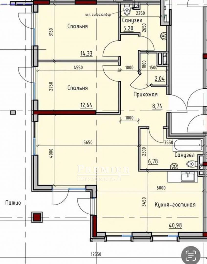
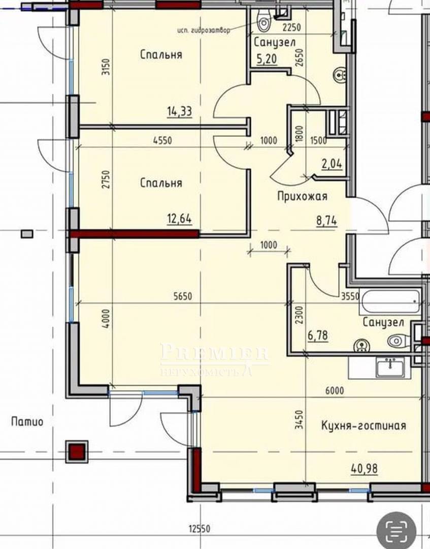
Квартира общей площадью 91 кв. Планировка: кухня, гостиная, 2 спальни, 2 санузла, кладовая. Панорамные окна, высокий потолок, много света. Состояние квартиры подготовлено к ремонту: выполнена стяжка, установлены отопление, металлопластиковые окна, надежная входная бронированная дверь, заведены все коммуникации.
В комплексе создаются условия не только для комфортной жизни, но и для отдыха, работы, обучения и занятия спортом. Закрытая охраняемая территория, консьерж на входе, парковка, подземный паркинг, генераторы. Обустроена придомовая территория.
Эксклюзивное месторасположение (курортная зона). Рядом супермаркеты, вся необходимая инфраструктура. В центр города 20 минут машиной. Пляж и набережная за 5-7 минут в пешей доступности, зеленый район, парковая зона вдоль моря, свежий морской воздух.
Квартира общей площадью 91 кв. Планировка: кухня, гостиная, 2 спальни, 2 санузла, кладовая. Панорамные окна, высокий потолок, много света. Состояние квартиры подготовлено к ремонту: выполнена стяжка, установлены отопление, металлопластиковые окна, надежная входная бронированная дверь, заведены все коммуникации.
В комплексе создаются условия не только для комфортной жизни, но и для отдыха, работы, обучения и занятия спортом. Закрытая охраняемая территория, консьерж на входе, парковка, подземный паркинг, генераторы. Обустроена придомовая территория.
Эксклюзивное месторасположение (курортная зона). Рядом супермаркеты, вся необходимая инфраструктура. В центр города 20 минут машиной. Пляж и набережная за 5-7 минут в пешей доступности, зеленый район, парковая зона вдоль моря, свежий морской воздух.
119 000 USD
102 221 EUR
5 024 180 UAH
Филиалул. Космонавтов, 32
Ответственный специалист Евгений Найденов
Показать
Дополнительные услуги
Доходность объекта от аренды*
от16890грн/месяц
*Средняя цена при сдаче объекта в аренду в Киевском районе
Изменение цен на 3-комн. квартира в новострое в Киевском районе
Похожие объекты
Трёхкомнатная квартира
г.Одесса/Киевский/Левитана ул.
Цена132 000 USD
Общая155 м2
Цена132 000 USD
155 м2
Трёхкомнатная квартира
г.Одесса/Киевский/Тополевая ул.
Цена145 000 USD
Общая130 м2
Цена145 000 USD
130 м2
Трёхкомнатная квартира
г.Одесса/Киевский/Тополевая ул.
Цена95 000 USD
Общая90 м2
Цена95 000 USD
90 м2
Трёхкомнатная квартира
г.Одесса/Киевский/Евгения Чикаленко (Вильямса Академика) ул.
Цена137 000 USD
Общая96.6 м2
Цена137 000 USD
96.6 м2