Продается Дом дача, Черноморская ул., Лиманка (Мизикевича)
Одесская обл. / Лиманка (Мизикевича) / ул. Черноморская
ID 215219
Комнат
3
Общая
120 м2
Жилая
80 м2
Этажность
3
Участок
4 сотки
Газ
Природный
Вода
Водопровод
Предлагаются к продаже таунхаус в Одессе, в частном секторе «Красный Хутор».
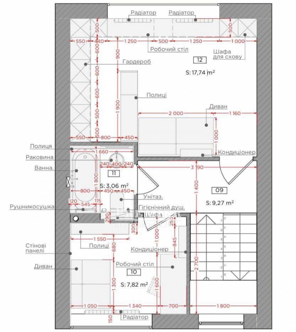
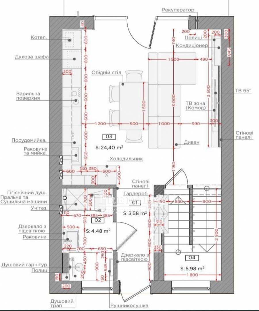
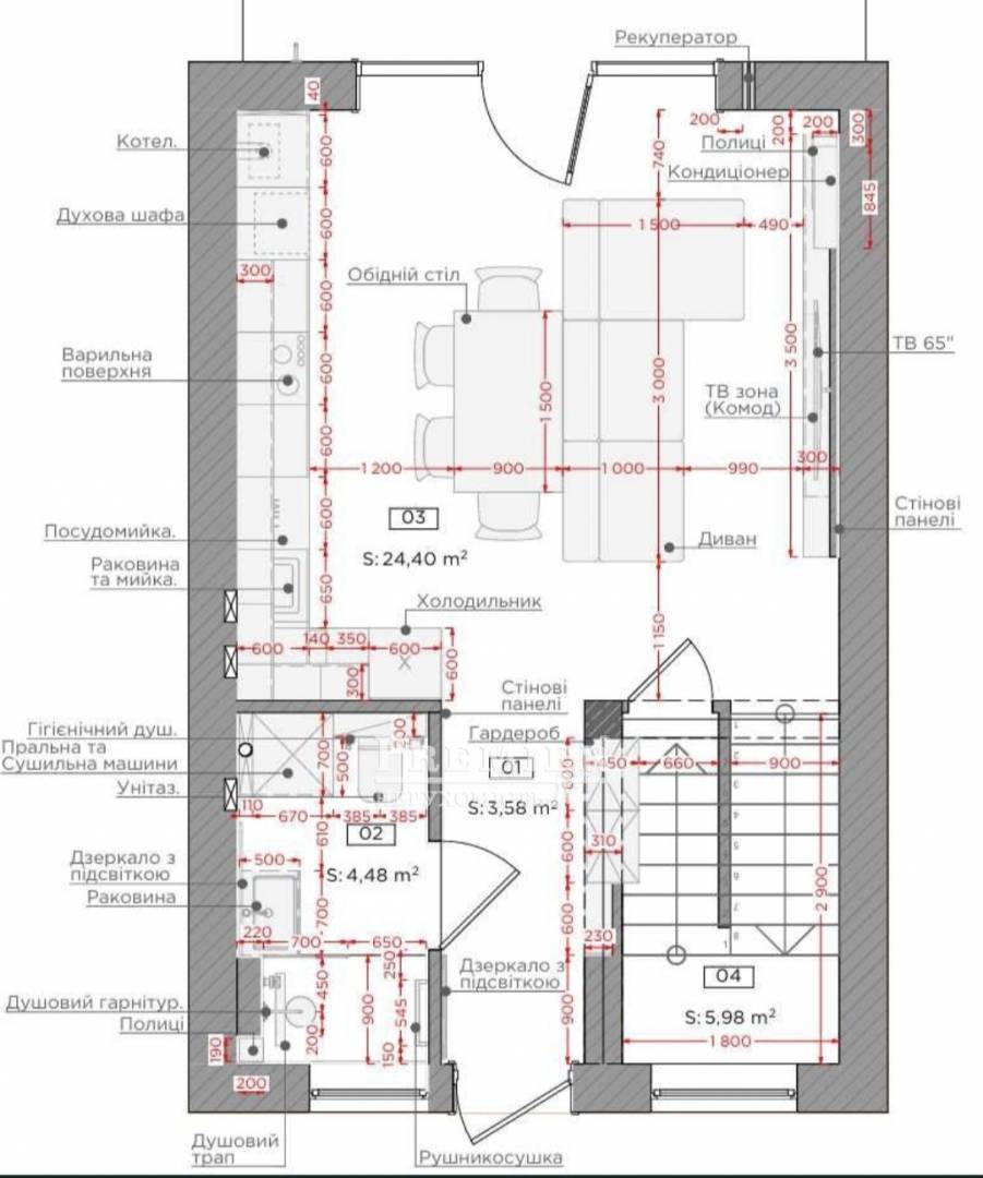
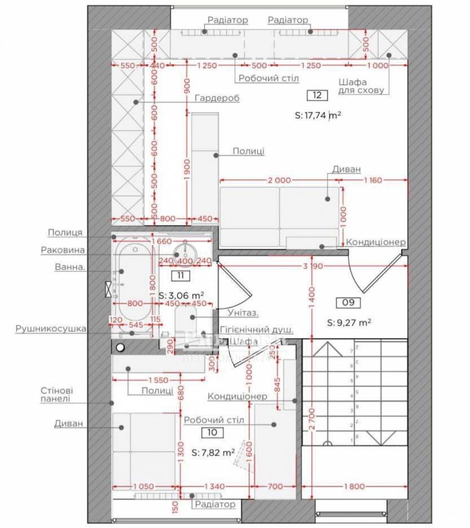
3 этажа, 120 м², 2 паркоместа, собственная барбекю-зона 20 м², высота потолков 3 м. Электричество, вода, газ, интернет, канализация – уже все в доме.
6 видеокамер, звонок и видеоглазок на входе в комплекс, доступ с телефона, автоматические ворота на пульте или по звонку, парковка перед комплексом, качественный фундамент и утепление, современная отделка фасада и двора, тротуарная плитка во всем комплексе, освещение, Viber-группа жителей комплекса.
Все улицы от комплекса асфальтированы, до маршруток 200 м, до Метро, Эпицентра, Сильпо, Таврии, АТБ и оптового рынка – 3 минуты на машине. «Дайберг» – аквапарк, ресторан, бассейн, парк, министадион, спортплощадка – 1 мин., море – 10 мин.
Рядом: ЧП, садики, школы и прочее.
Полный дизайн проекта от известного агентства на 107 страниц – визуализация и детальные планы и схемы полностью всех работ, с артикулами всего даже фурнитуры смета по абсолютно всем элементам. Вы будете знать сколько нужно краски, винила, плитки, кабеля, розеток и прочего.
Пишите, звоните, всю информацию предоставим.
3 этажа, 120 м², 2 паркоместа, собственная барбекю-зона 20 м², высота потолков 3 м. Электричество, вода, газ, интернет, канализация – уже все в доме.
6 видеокамер, звонок и видеоглазок на входе в комплекс, доступ с телефона, автоматические ворота на пульте или по звонку, парковка перед комплексом, качественный фундамент и утепление, современная отделка фасада и двора, тротуарная плитка во всем комплексе, освещение, Viber-группа жителей комплекса.
Все улицы от комплекса асфальтированы, до маршруток 200 м, до Метро, Эпицентра, Сильпо, Таврии, АТБ и оптового рынка – 3 минуты на машине. «Дайберг» – аквапарк, ресторан, бассейн, парк, министадион, спортплощадка – 1 мин., море – 10 мин.
Рядом: ЧП, садики, школы и прочее.
Полный дизайн проекта от известного агентства на 107 страниц – визуализация и детальные планы и схемы полностью всех работ, с артикулами всего даже фурнитуры смета по абсолютно всем элементам. Вы будете знать сколько нужно краски, винила, плитки, кабеля, розеток и прочего.
Пишите, звоните, всю информацию предоставим.
87 000 USD
75 160 EUR
3 810 600 UAH
Филиалул. Сахарова 24
Ответственный специалист
высшей категории Ирина Коршикова
высшей категории Ирина Коршикова
Показать
Дополнительные услуги
Похожие объекты
Дом дача
Одесcк. обл./Одесский район/Бурлачья Балка/Центральная ул.
Цена59 900 USD
Общая70 м2
Участок10соток
Цена59 900 USD
10 соток
Дом дача
Одесcк. обл./Одесский район/Красноселка/Победы ул.
Цена65 000 USD
Общая180 м2
Участок5соток
Цена65 000 USD
5 соток
Дом дача
Одесcк. обл./Одесский район/Сухой Лиман/Вишнёвый сад ул.
Цена78 000 USD
Общая180 м2
Участок18соток
Цена78 000 USD
18 соток
Дом дача
Одесcк. обл./Одесский район/Красный Расселенец/Чкалова ул.
Цена48 000 USD
Общая130 м2
Участок24сотки
Цена48 000 USD
24 сотки