Продается Комнаты в коммуне, Елисаветинская (Щепкина) ул., г.Одесса

Одесса, Центральном, ул. Елисаветинская (Щепкина)
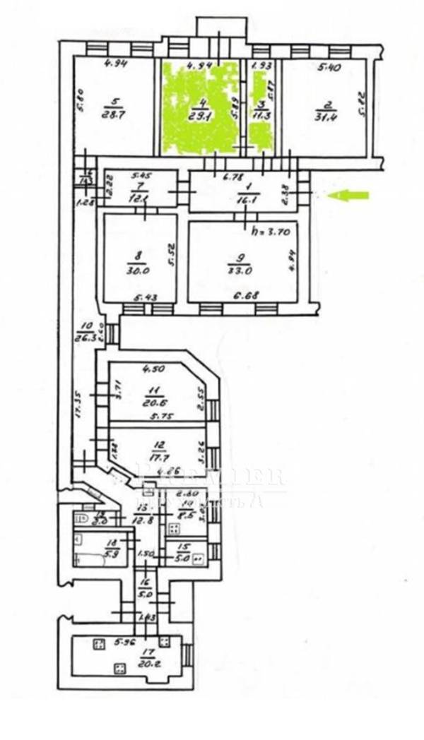
ID 216659
Комнат
2
Общая
50 м2
Жилая
40 м2
Этаж
2
Этажность
3
Центр города. Историческая часть. Атмосфера старой Одессы. В продаже 2 комнаты с качественным ремонтом — 29 кв.м и 11 кв. Пространство с потенциалом: легко зонировать или разделить на отдельные функциональные зоны. Высокие потолки 3,7 м — ощущение объема и света. Большая комната с двумя окнами и выходом на красивый балкон. Фасадное расположение — статус и ликвидность. Есть возможность организовать свою кухню и санузел — отличное решение под аренду или автономное проживание. Закрытый двор. Чистая парадная с широкой мраморной лестницей. Всего два соседа — комфорт и спокойствие. Идеально для жизни, аренды или инвестиции в центре. Звоните!
25 000 USD
21 339 EUR
1 107 500  UAH
USD
EUR
UAH

ФилиалАртура Савельева ул
(Черняховского). 11
Ответственный специалист Елена Романенко
Дополнительные услуги

Похожие объекты