Продается 2-комнатная квартира, Говорова Маршала ул., г.Одесса
Одесса, Приморском, ул. Говорова Маршала
ID 63032
Комнат
2
Общая
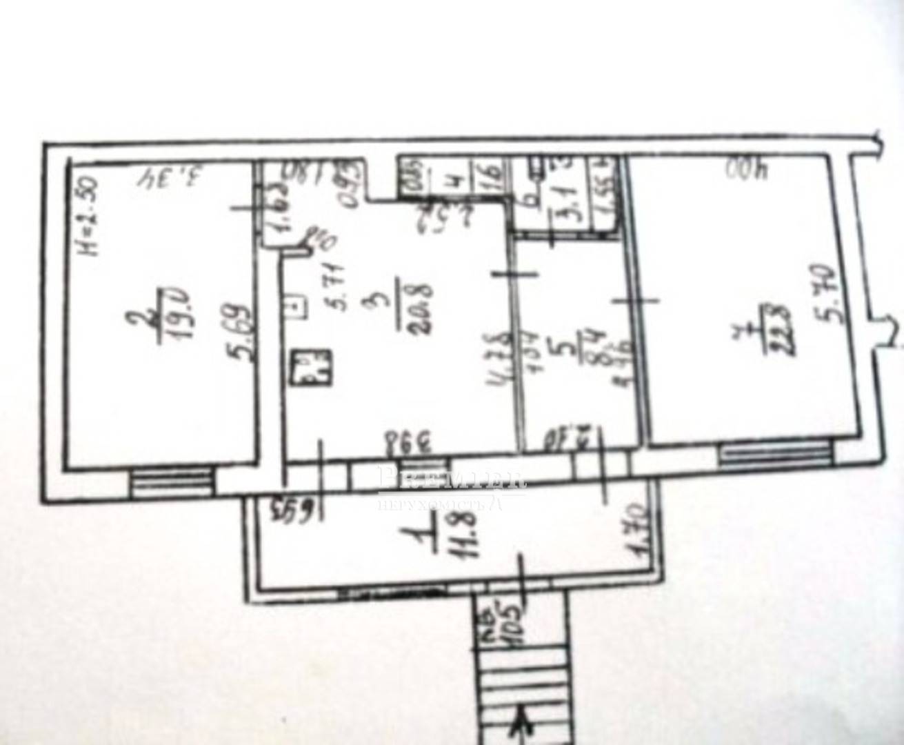
87 м2
Жилая
40 м2
Кухня
21 м2
Этаж
1
Этажность
9
Продается двухкомнатная квартира, которая находится в одном из лучших районов города в кирпичном доме на Говорова со своим отдельным входом. Веранда с выходом в парк «Победы» площадью 12кв.м., две раздельные комнаты 19 и 23кв.м., просторная кухня студия 21кв.м. Санузел раздельный облицован современной плиткой. В этой квартире чувствуется всегда уют и комфорт.
87 000 USD
74 622 EUR
3 671 400 UAH
Филиал:ул. Преображенская, 49/51
Показать
Дополнительные услуги
Доходность объекта от аренды*
от24329грн/месяц
*Средняя цена при сдаче объекта в аренду в Приморском районе
Изменение цен на двухкомнатные квартиры в Приморском районе
Похожие объекты
Двухкомнатная квартира
г.Одесса/Приморский/Балтиморская (Посмитного) ул.
Цена100 000 USD
Общая73 м2
Цена100 000 USD
73 м2
Двухкомнатная квартира
г.Одесса/Приморский/Пироговская ул.
Цена80 000 USD
Общая65 м2
Цена80 000 USD
65 м2
Двухкомнатная квартира
г.Одесса/Приморский/Среднефонтанская ул.
Цена85 000 USD
Общая88 м2
Цена85 000 USD
88 м2
2-комн. квартира в новострое
г.Одесса/Приморский/Фонтанская дорога ул. (ЖК 23 Жемчужина)
Цена102 869 USD
Общая79.13 м2
Цена102 869 USD
79.13 м2