Продается 3-комнатная квартира, Курская ул., г.Одесса
Одесса, , ул. Курская
ID 142235
Комнат
3
Общая
75 м2
Жилая
44 м2
Кухня
11 м2
Этаж
8
Этажность
9
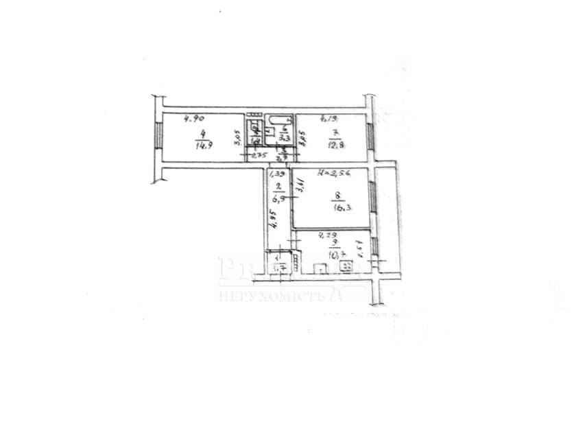
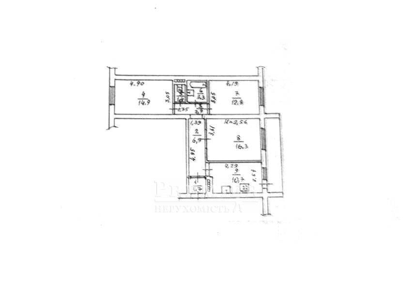
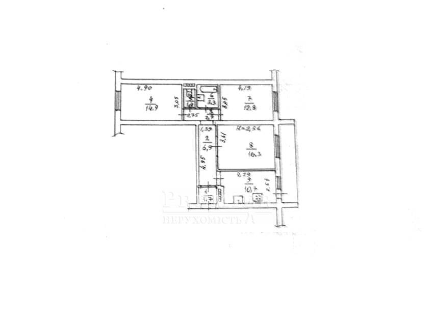
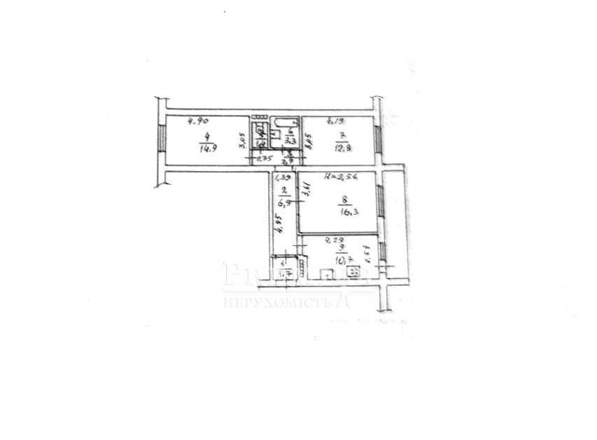
В продаже 3-комнатная квартира, расположенная на 8 этаже 9-этажного жилого дома (спец.проект). Общая площадь квартиры 75 метров, комнаты раздельные 44 метра, кухня 11 метров с выходом на большую лоджию, которая идёт на кухню и гостиную. Раздельный санузел облицован современной кафельной плиткой. Окна и лоджия застекления металлопластиком. На полу постелена плитка и паркет, на стенах обои. Дом расположен в тихом районе, но вблизи всей инфраструктуры: остановок трамвая и маршруток; детский сад и школа; больница и поликлиника; в шаговой доступности Крымский бульвар с фонтаном и бюветом.
55 000 USD
47 361 EUR
2 301 750 UAH
Филиалпросп. Князя Владимира Великого, 99
(Добровольского просп.)
(Добровольского просп.)
Ответственный специалист
высшей категории Елена Соловьева
высшей категории Елена Соловьева
Показать
Дополнительные услуги
Похожие объекты
Трёхкомнатная квартира
г.Одесса/Пересыпский/Жолио Кюри ул.
Цена44 000 USD
Общая72 м2
Цена44 000 USD
72 м2
Трёхкомнатная квартира
г.Одесса/Пересыпский/Ярослава Баиса ул. (Высоцкого ул.)
Цена55 000 USD
Общая92 м2
Цена55 000 USD
92 м2
Трёхкомнатная квартира
г.Одесса/Пересыпский/Махачкалинская ул.
Цена65 000 USD
Общая89 м2
Цена65 000 USD
89 м2
Трёхкомнатная квартира
г.Одесса/Пересыпский/Бочарова Генерала ул.
Цена38 500 USD
Общая62 м2
Цена38 500 USD
62 м2