Продается ЖК Лидерсовский, Лидерсовский бульвар, г.Одесса

Одесса, Приморском, Лидерсовский бульвар
Характеристики ЖК Лидерсовский
Начало строительства:
3 квартал 2020
Окончание строительства:
1 квартал 2026
Конструктив дома
Этажность:
7
Конструктив:
Монолитно-каркасный+кирпич
Утепление:
Минвата
Межквартирные:
Кирпич
Состояние жилья
Окна:
Метало-пластиковый профиль
Высота помещения:
3,00
Отопление:
Автономное
Инженерные системы
Лифт:
OTIS грузовой и пассажирский
Безопасность:
Круглосуточная охрана
Паркинг:
Подземный (130 мест)

ЖК Лидерсовский

В самой зеленой части Одессы, в пешей доступности к знаменитому пляжу Ланжерон, возводится новый жилой комплекс премиум-класса «Лидерсовский 7». Выбранный район славится своими невероятными красотами (рядом расположен парк Шевченко), близостью к объектам полезной, необходимой и развлекательной инфраструктуры, а также удобной транспортной развязкой, позволяющей легко и быстро добраться в любую точку города.

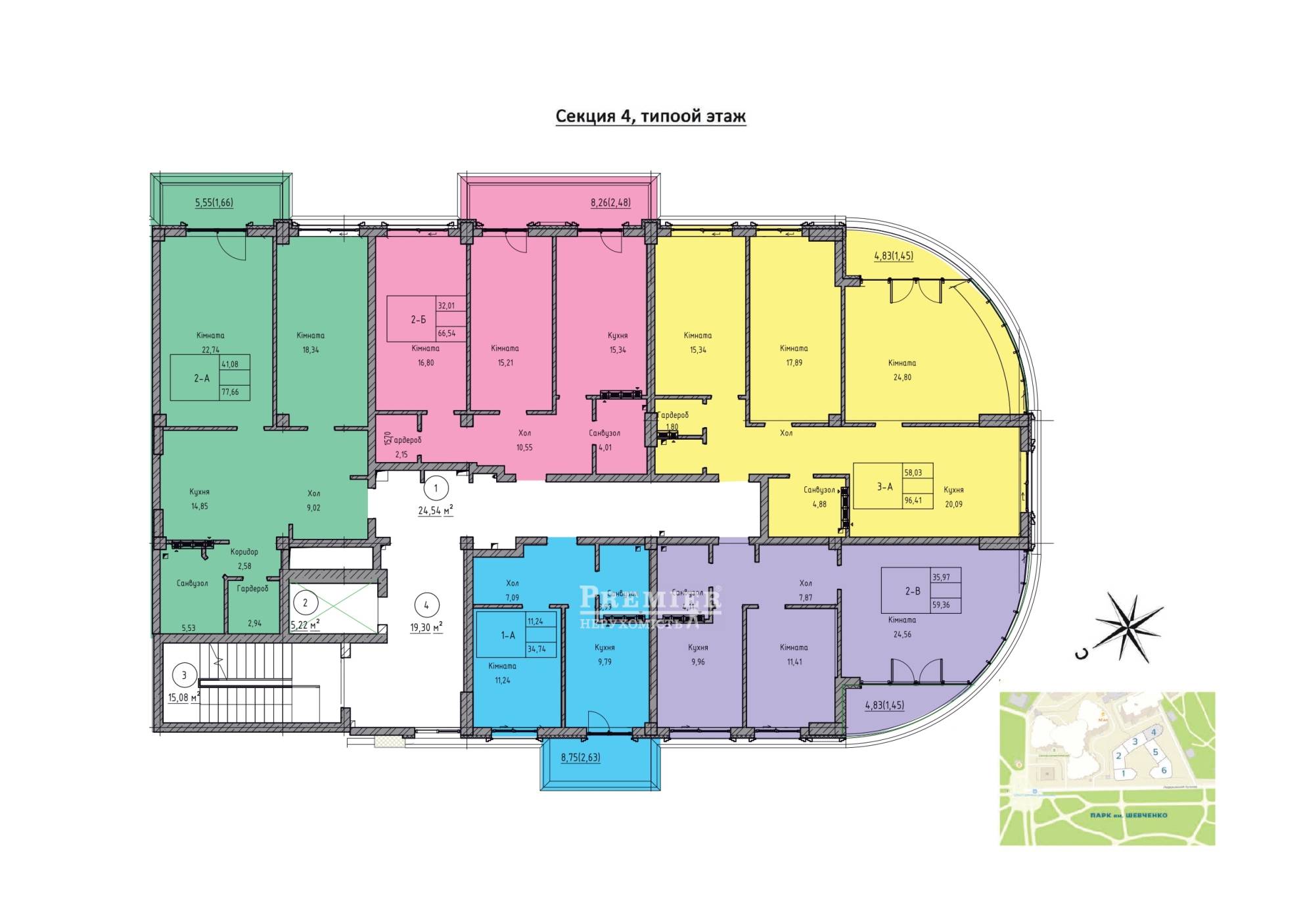
Комплекс насчитывает 6 секций и 7 этажей. Тип конструкции – монолитно-каркасный с прочным свайным фундаментом. Для возведения стен используются керамоблоки, а утепляются они за счет минеральной ваты. Фасад штукатурится и покрывается атмосферостойкими специальными красками. В комплексе оборудываются скоростные бесшумные грузо-пассажирские лифты фирмы ОТИС. Также предусмотрен подземный одноуровневый паркинг на 130 мест с удобным заездом.

В ЖК представлены квартиры с одной и двумя комнатами, минимальной площадью 35,5 квадратных метров и максимальной – 102 квадратных метра. Высота потолков составляет 3 метра. Система отопления представлена крышной газовой котельной с отопительными приборами в каждой квартире. Сохранность микроклимата гарантируют прочные металлопластиковые окна (7-камерный профиль) с энергосберегающими стеклопакетами. На входе в каждую квартиру устанавливаются металлические двери с декоративной накладкой.

Придомовая территория огораживается и благоустраивается. Проектом предусмотрено озеленение и украшение посредством цветочных клумб. В комплексе функционирует круглосуточная охрана с видеонаблюдением, а также модернизированная противопожарная система.

Окончание строительства - 2 кв. 2022 года

Количество комнат
Площадь
Цена за м2
Однокомнатные квартиры
35,5
1 600
Двухкомнатные квартиры
83
1 350
от 63 555
ГРН. / кв.м
USD
UAH
Компания "Премьер" является официальным партнером строительной компании. Объекты продаются без какой либо комиссии.
Контакты менеджеров по продаже
Артура Савельева ул (Черняховского). 11
ул. Преображенская, 49/51
Задать вопрос
Посмотреть на карте
Дополнительные услуги