Продается Под любой вид деятельности, Парусная (Героев Сталинграда) ул., Черноморск
Одесская обл. / Черноморск / ул. Парусная (Героев Сталинграда)
ID 167199
Общая
362 м2
Жилая
211 м2
Этаж
1
Этажность
2
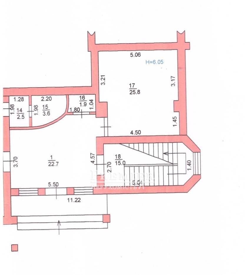
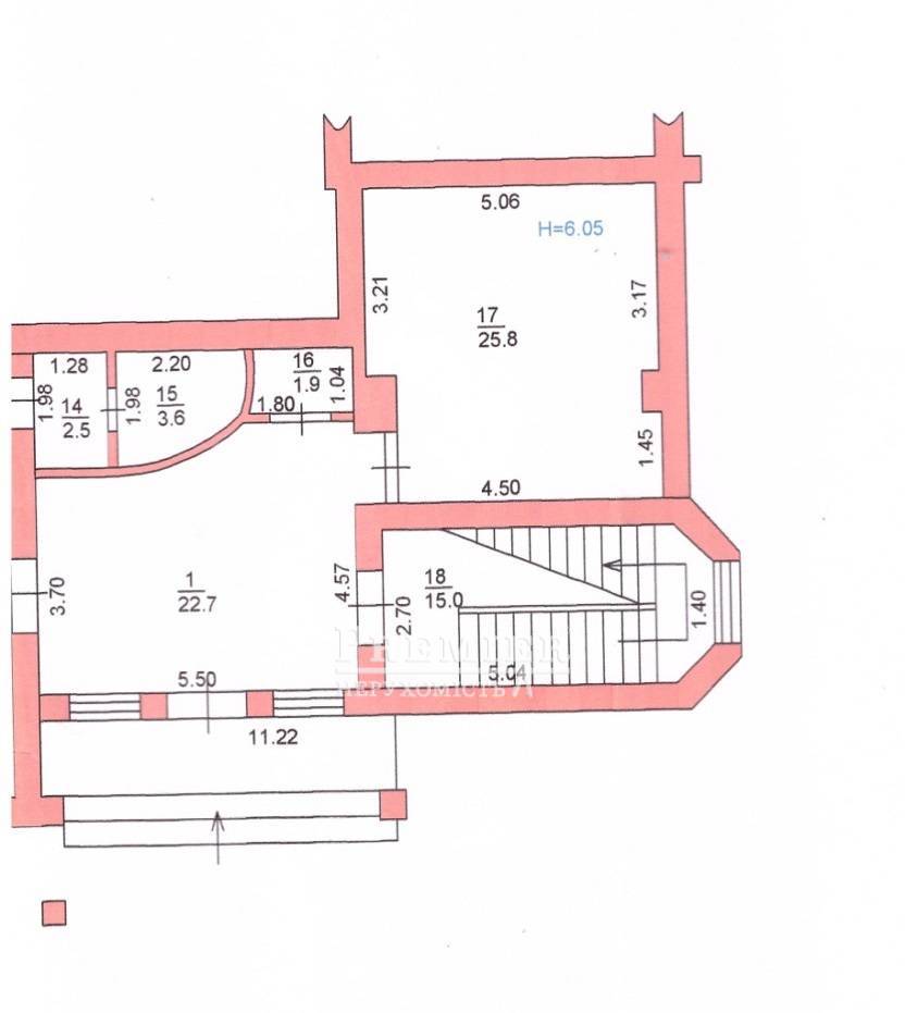
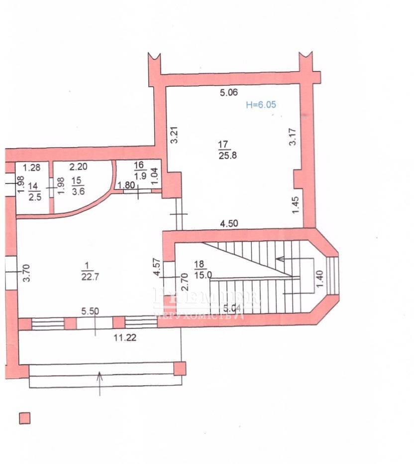
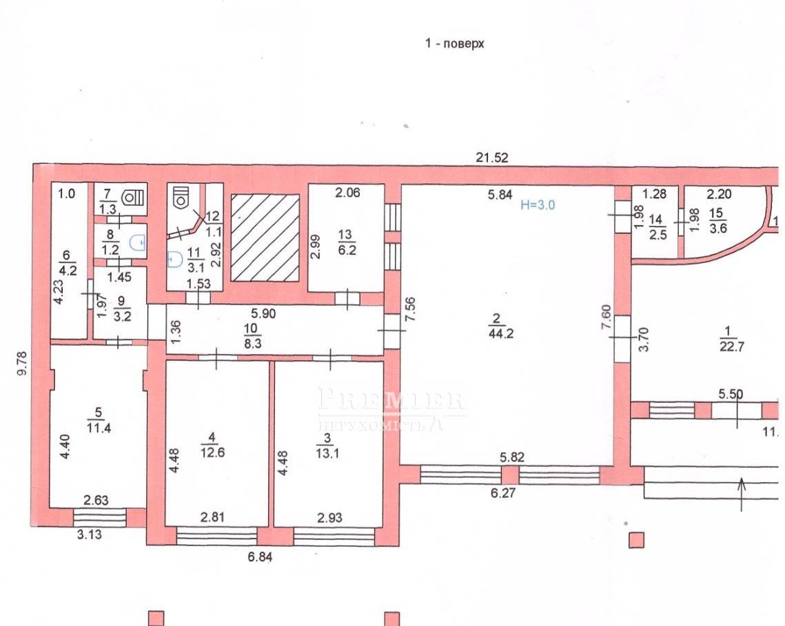
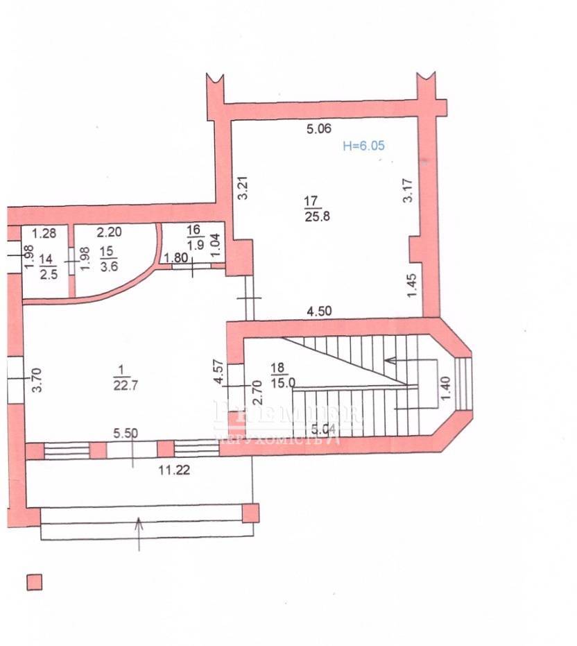
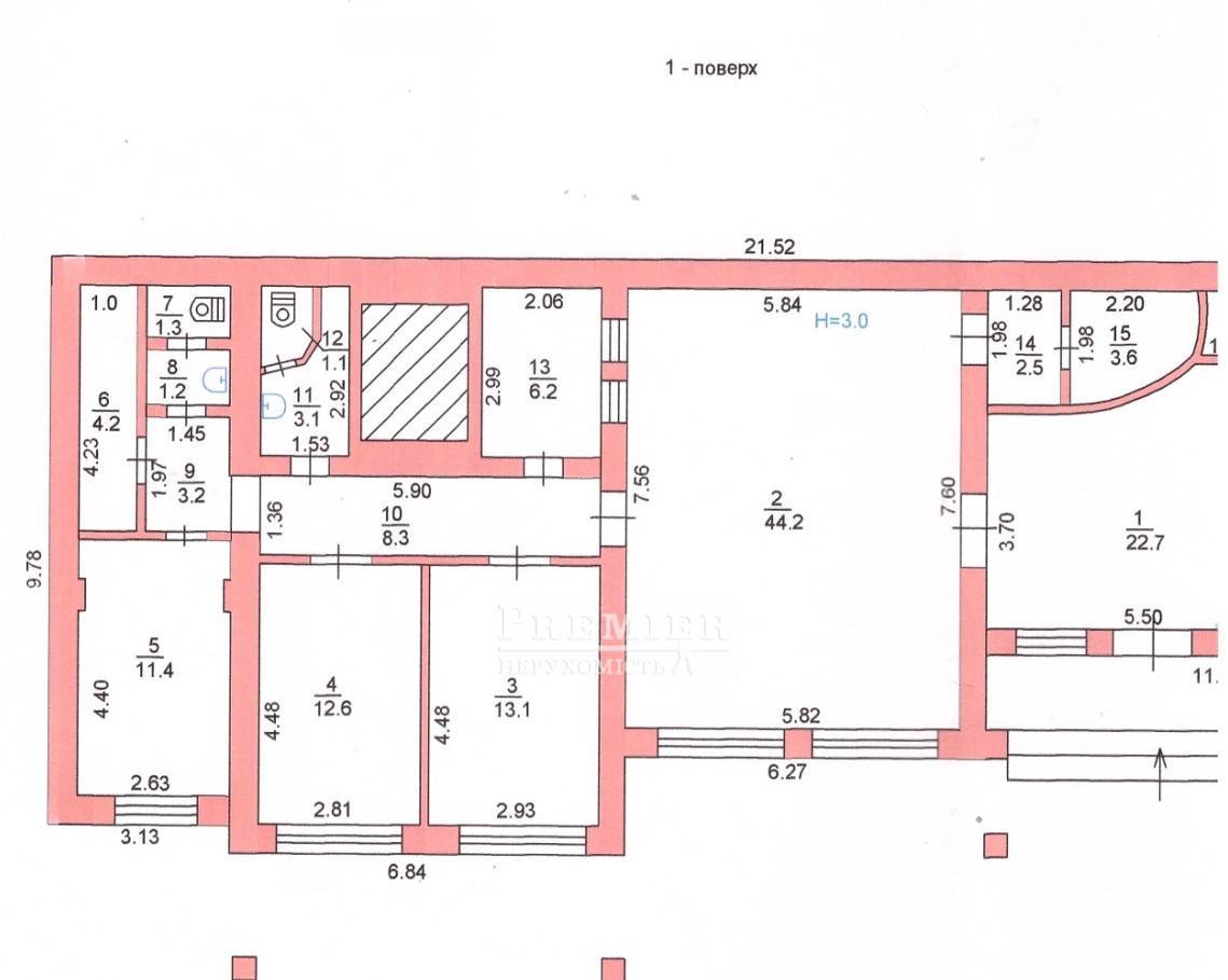
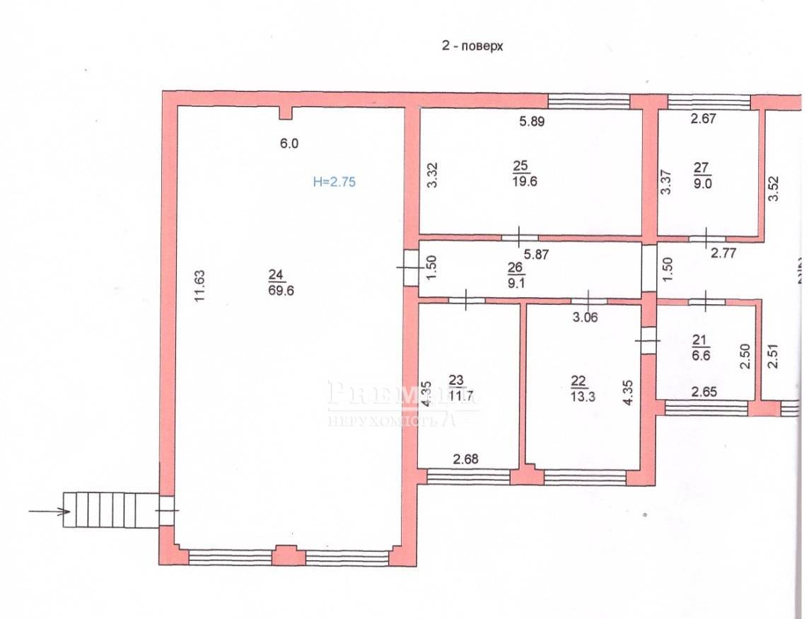
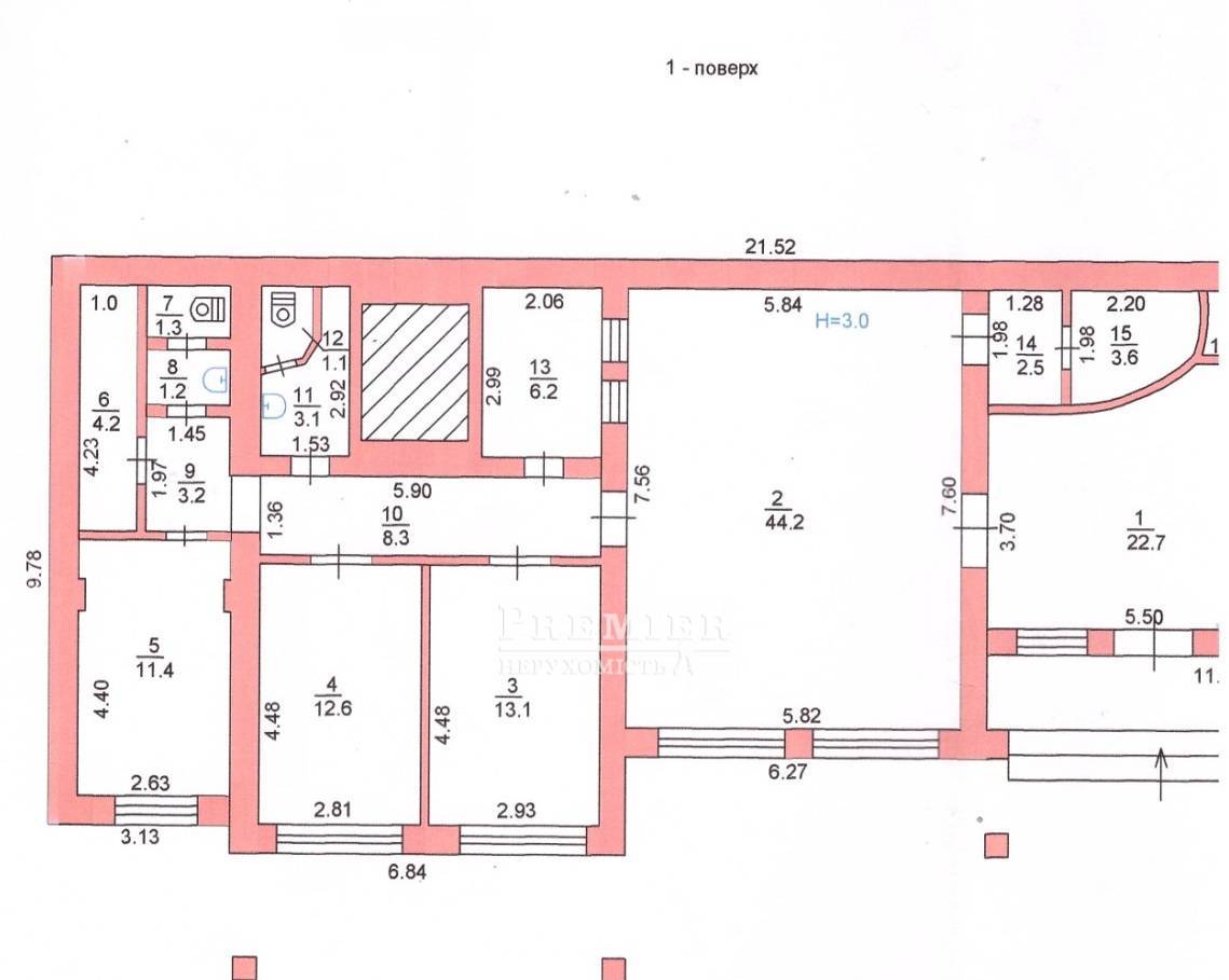
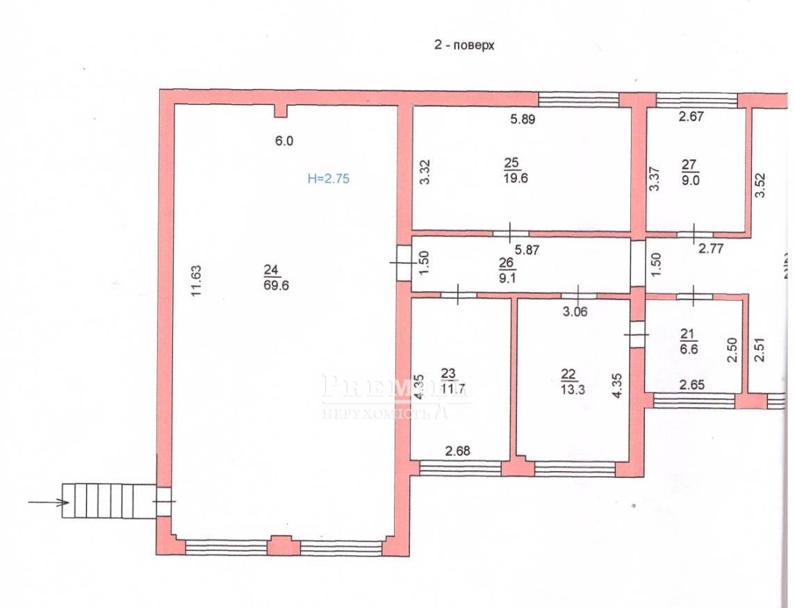
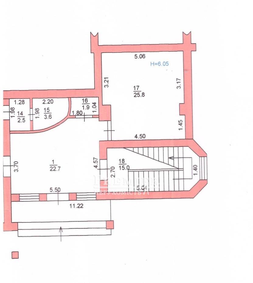
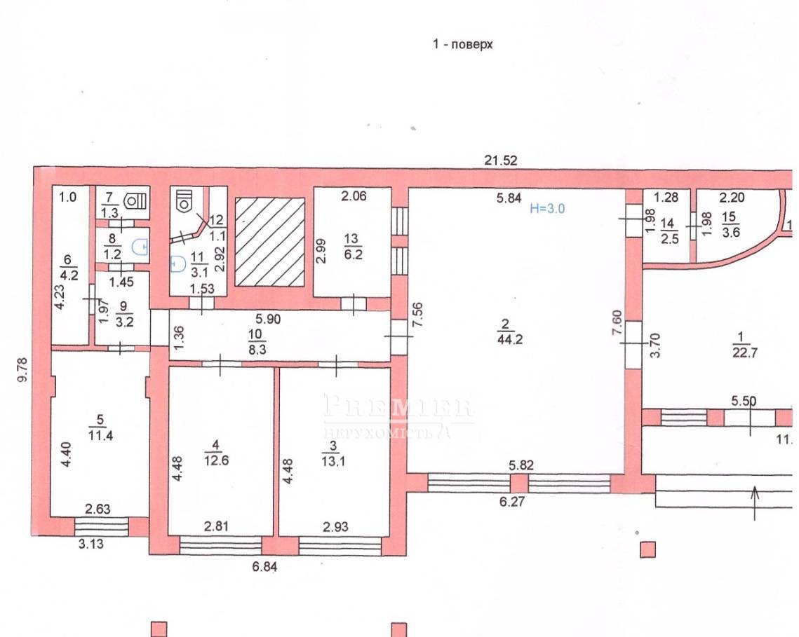
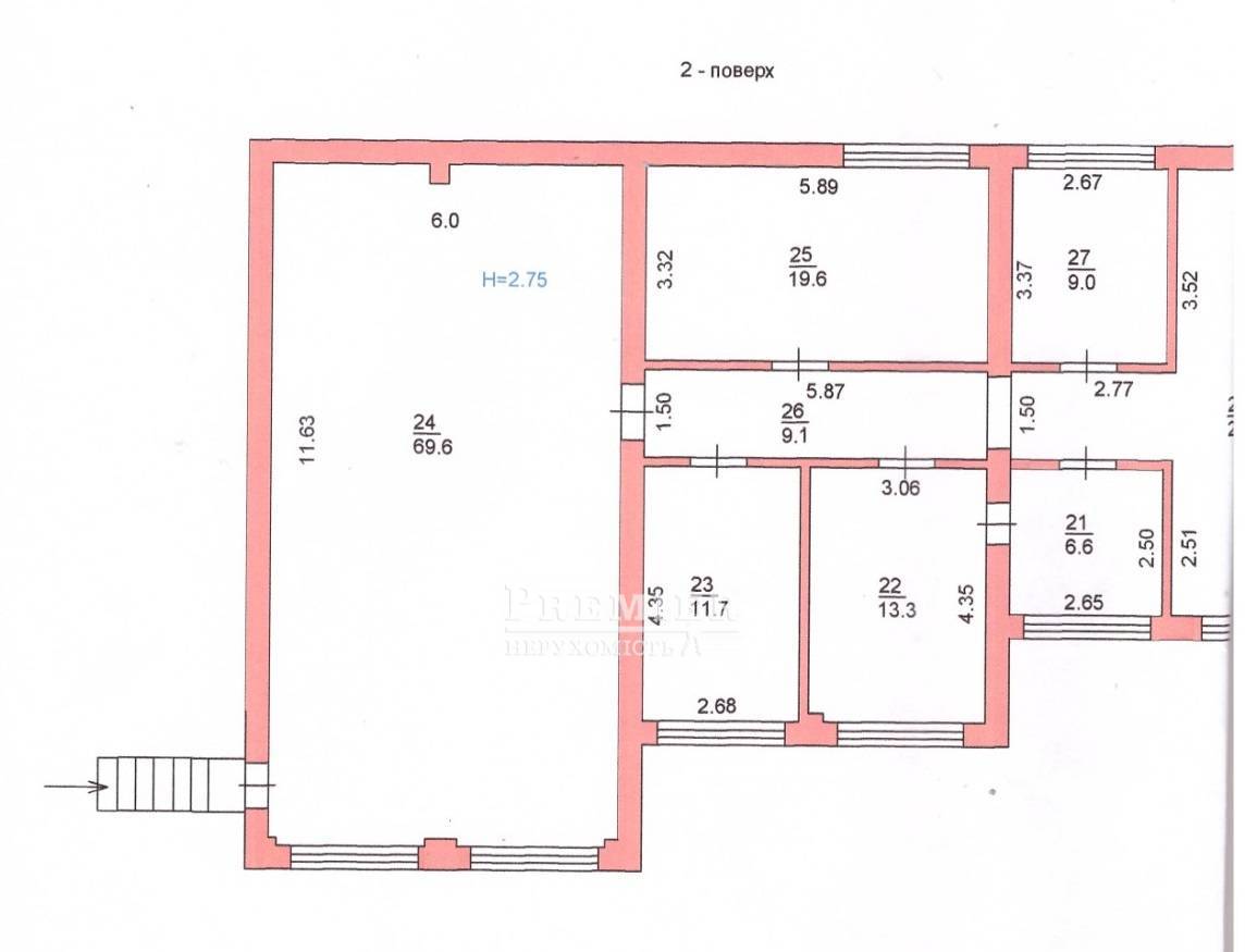
В продаже фасадное, двухэтажное помещение в г. Черноморск. Общая площадь 362 м2, из них 150,9 м2 подсобной площади и 211 м2 основной. Построено из красного кирпича. Помещение состоит из 10-и кабинетов, 4 санузла, 2 душевые комнаты и просторного фае, есть комната-сейф. Собственная котельная, чистый чердак и пожарный выход, Высота потолков 3,2 метра. Мощность - 30 кВт, 3 фазы. Помещение идеально подойдёт под: гостиницу, офис, хостел, торговые магазины, лото, ломбард, квест-комнаты, салон красоты и любых подобных сфер деятельности. Хорошая транспортная развязка и собственная парковка, облагорожена придомовая территория с палисадником.
350 000 USD
320 000 USD 414 786 EUR
270 019 EUR 15 505 000 UAH
14 176 000 UAH Филиалул. Преображенская, 49/51
Ответственный специалист
высшей категории Оксана Курганская
высшей категории Оксана Курганская
Показать
Дополнительные услуги
Похожие объекты
СТО
Одесcк. обл./Одесский район/Лиманка (Мизикевича)/Молодежная ул.
Цена350 000 USD
Общая1475 м2
Цена350 000 USD
1475 м2
Гостиница, кемпинг
Одесcк. обл./Одесский район/Алтестово/25 километр Киевского ...
Цена290 000 USD
Общая400 м2
Цена290 000 USD
400 м2
Гостиница, кемпинг
Одесcк. обл./Одесский район/Санжейка/Маячный пер.
Цена230 000 USD
Общая277.1 м2
Цена230 000 USD
277.1 м2