Продається Под любой вид деятельности, Парусна (Героїв Сталінграда) вул., Чорноморськ
Одеська обл. / Чорноморськ / ул. Парусна (Героїв Сталінграда) в
ID 167199
Загальна
362 м2
Житлова
211 м2
Поверх
1
Поверховість
2
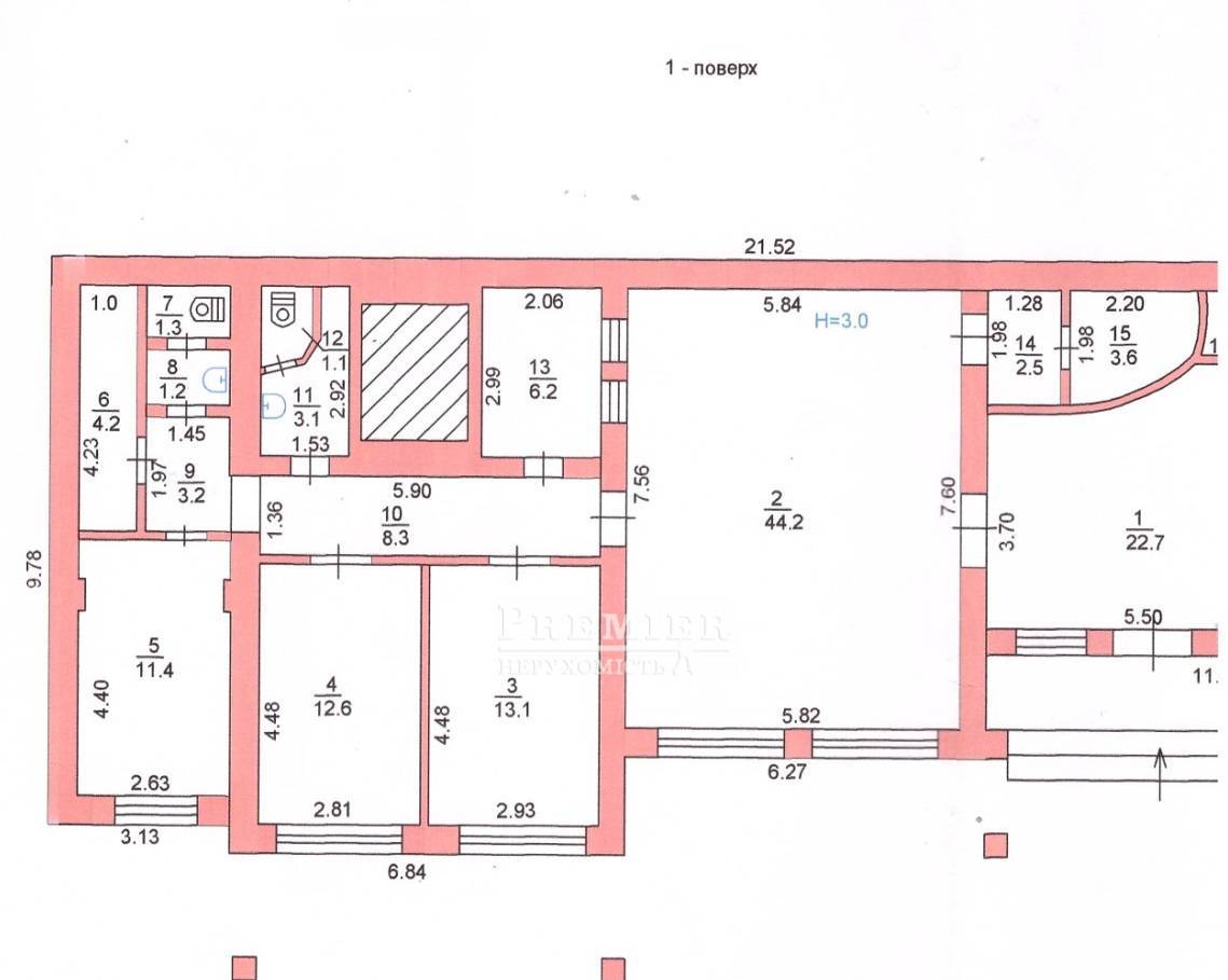
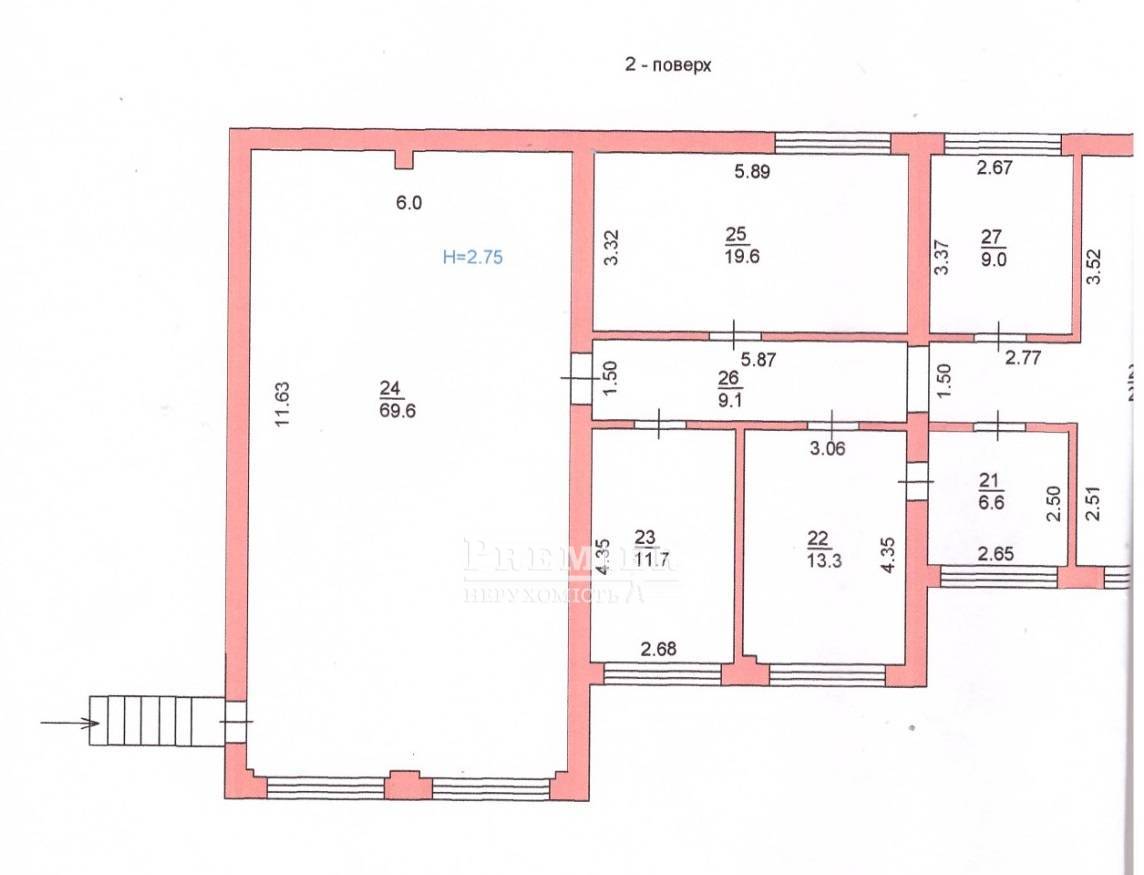
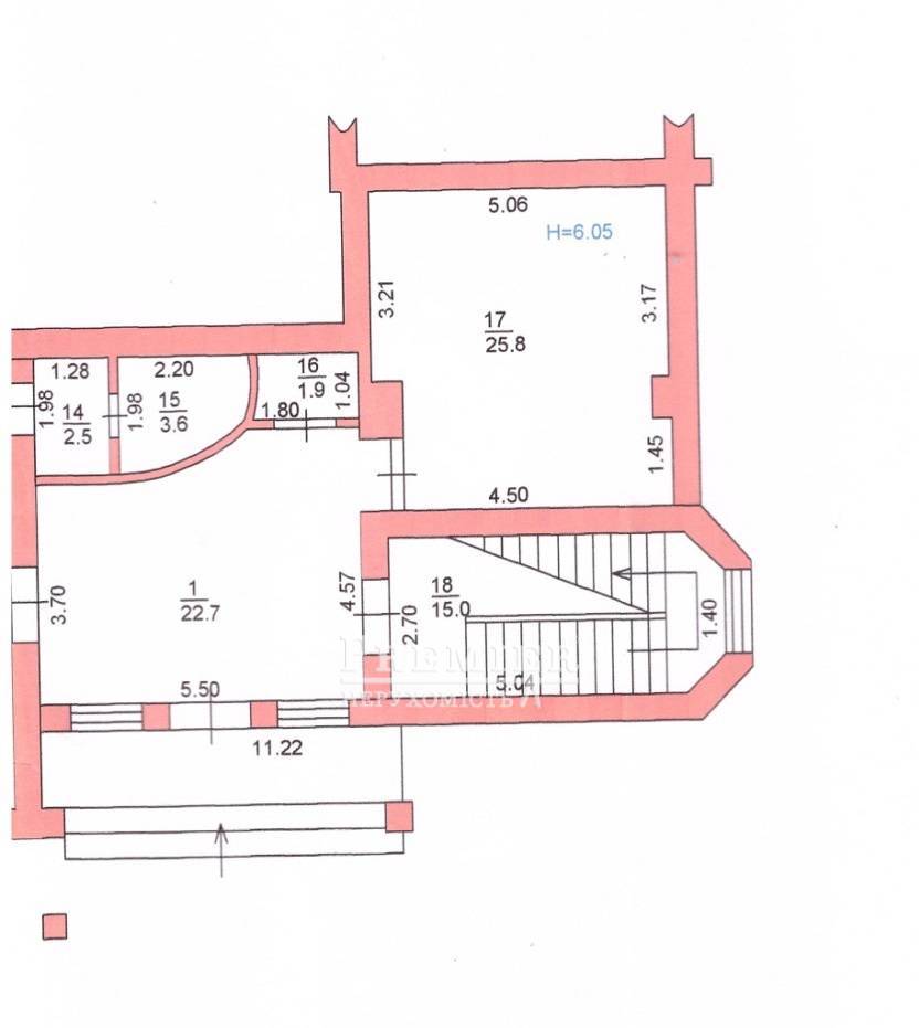
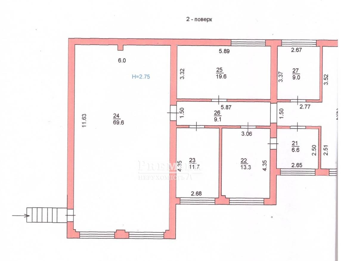
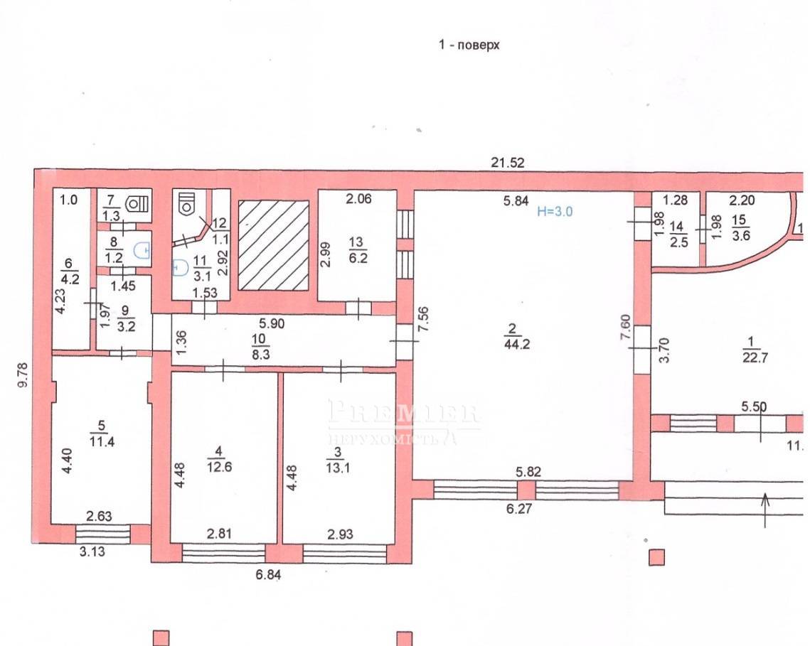
У продажу фасадне, двоповерхове приміщення в м.Чорноморське. Загальна площа 362 м2, з них 150,9 м2 підсобної площі і 211 м2 основний. Побудовано з червоної цегли. Приміщення складається з 10-и кабінетів, 4 санвузли, 2 душові кімнати та просторого фае, є кімната-сейф. Власна котельня, чистий горище і пожежний вихід, Висота стель 3,2 метра. Потужність - 30 кВт, 3 фази. Приміщення ідеально підійде під: готель, офіс, хостел, торговельні магазини, лото, ломбард, квест-кімнати, салон краси і будь-яких подібних сфер діяльності. Хороша транспортна розв'язка і власна парковка, облагороджена перед будинкова територія з садом.
350 000 USD
320 000 USD 412 302 EUR
271 646 EUR 15 435 000 UAH
14 112 000 UAH Філіявул. Преображенська, 49/51
Відповідальний спеціаліст
вищої категорії Оксана Курганська
вищої категорії Оксана Курганська
Показати
Додаткові послуги
Схожі об`єкти
Под любой вид деятельности
Одеська. обл./Одескій район/Молодіжне/Фіалковий пров.
Цена250 000 USD
Общая1176 м2
Цена250 000 USD
1176 м2
Гостиница, кемпинг
Одеська. обл./Одескій район/Нова Дофінівка/Лиманний пров.
Цена300 000 USD
Общая186 м2
Цена300 000 USD
186 м2
Детский сад
Одеська. обл./Одескій район/Чорноморка, с. Ліманка (Ильичевск)/Ясногорская вул.
Цена290 000 USD
Общая400 м2
Цена290 000 USD
400 м2
Гостиница, кемпинг
Одеська. обл./Одескій район/Алтестово/25 клометр Кивського ш...
Цена290 000 USD
Общая400 м2
Цена290 000 USD
400 м2