Продается Студия, Леси Украинки (Гагарина) просп., г.Одесса
Одесса, Приморском, просп. Леси Украинки (Гагарина)
ID 172476
Общая
42.8 м2
Этаж
21
Этажность
24
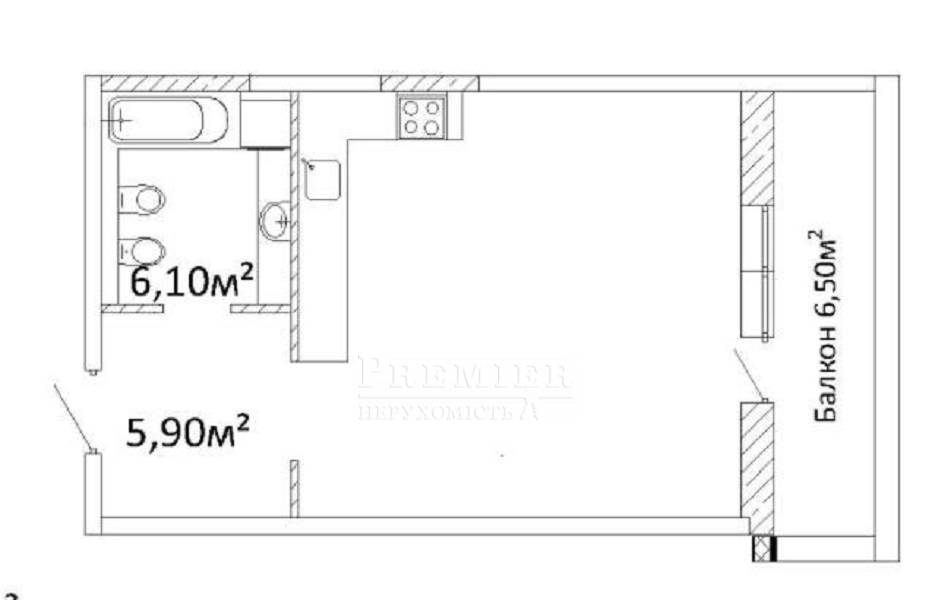
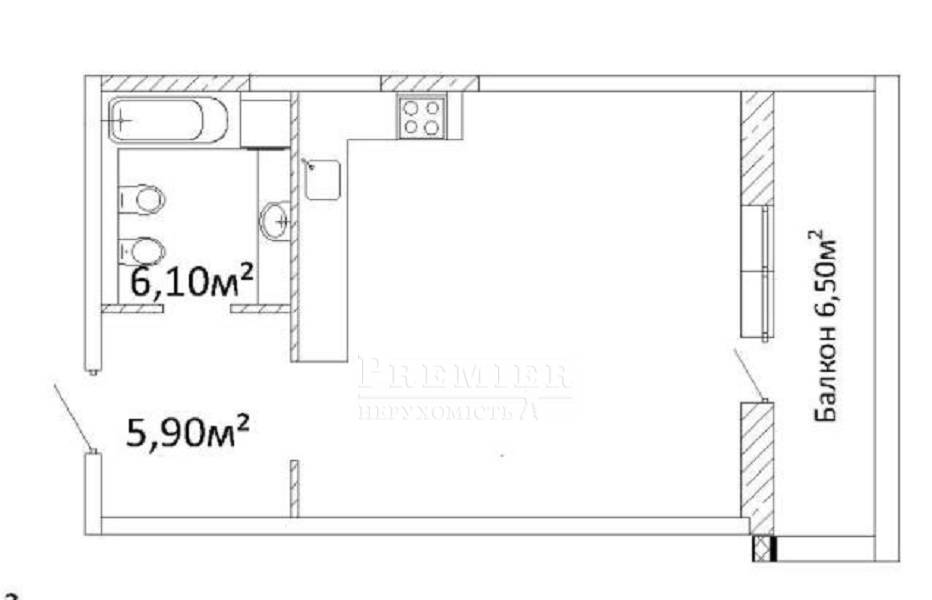
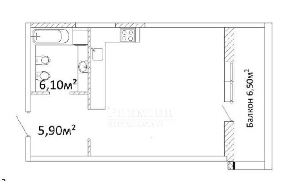
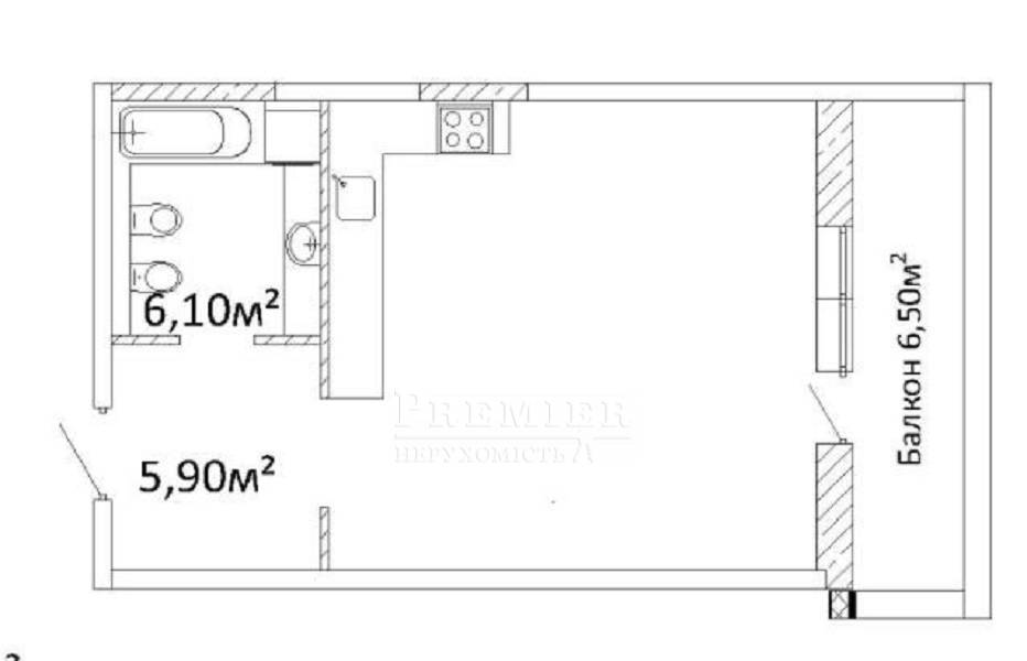
В продаже студия с видом на море и Французский Бульвар в новом современном ЖК Оскар от надежного застройщика СК Будова. Квартира свободной планировки. Хорошая транспортная развязка в любой район города.
64 500 USD
55 358 EUR
2 812 200 UAH
Филиалул. Преображенская, 49/51
Ответственный специалист
высшей категории Елена Шевченко
высшей категории Елена Шевченко
Показать
Дополнительные услуги
Доходность объекта от аренды*
от15578грн/месяц
*Средняя цена при сдаче объекта в аренду в Приморском районе
Изменение цен на cтудии в Приморском районе
Похожие объекты
Студия
г.Одесса/Приморский/Леси Украинки (Гагарина) просп.
Цена56 500 USD
Общая42.7 м2
Цена56 500 USD
42.7 м2