Продається Студія, Лесі Українки (Гагаріна) просп., м.Одеса
Одеса, Приморський, просп. Лесі Українки (Гагаріна)
ID 172476
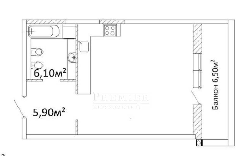
Загальна
42.8 м2
Поверх
21
Поверховість
24
У продажу студія з видом на море та Французький Бульвар у новому сучасному ЖК Оскар від надійного забудовника СК Будова. Квартира вільного планування. Хороша транспортна розв'язка у будь-який район міста.
64 500 USD
55 323 EUR
2 721 900 UAH
Філіявул. Преображенська, 49/51
Відповідальний спеціаліст
вищої категорії Олена Шевченко
вищої категорії Олена Шевченко
Показати
Додаткові послуги
Прибутковість об'єкту від оренди*
від14688грн/місяць
*Середня ціна при здачі об'єкта в оренду в Приморський районі
Зміна цін на cтудії в Приморський районі
Схожі об`єкти
Студія
м.Одеса/Приморський/Лесі Українки (Гагаріна) просп.
Цена56 500 USD
Общая42.7 м2
Цена56 500 USD
42.7 м2