Продается Теплый дом Плюс, Семена Палия (Днепропетровская дорога), г. Одесса

Одесская обл. / г. Одесса / Семена Палия (Днепропетровская дорога)
Рассрочка с первым взносом от 15% с правом заселения! Дом сдан и введен в эксплуатацию!



Характеристики Теплый дом Плюс
Начало строительства:
4 квартал 2021
Окончание строительства:
3 квартал 2023
Конструктив дома
Этажность:
10
Конструктив:
Кирпич
Утепление:
минеральная вата, штукатурка окрашивание фасадными красками
Межквартирные:
Газобетон
Состояние жилья
Окна:
Метало-пластиковый профиль
Высота помещения:
3
Отопление:
Индивидуальное
Инженерные системы
Лифт:
один гразопассажирский, двусторонний
Безопасность:
закрытая, охраняемая территория, видеонаблюдение
Паркинг:
наземная охраняемая парковка

Суворовский район не перестает привлекать внимание. С каждым годом количество желающих обзавестись местным жильем лишь возрастает. Чтобы удовлетворить постоянно растущий спрос, появляются новые объекты. Очередной новинкой стал жилой комплекс «Теплый Дом Плюс» класса комфорт. Располагается он на удобной территории, где рядом присутствует полезная, необходимая и развлекательная инфраструктура. Кроме того, тут представлена развитая транспортная развязка.

Монолитно-каркасная конструкция со свайным фундаментом насчитывает 2 секции и 10 этажей. Материалом для возведения стен выступает красный эффективный кирпич. Обустройство фасада происходит за счет специальной штукатурки и декоративных элементов. Роль утеплителя играет минеральная вата. В комплексе оборудуется скоростной, бесшумный грузопассажирский лифт. Для владельцев автомобилей предусмотрена вместительная наземная парковка с удобным и безопасным заездом.

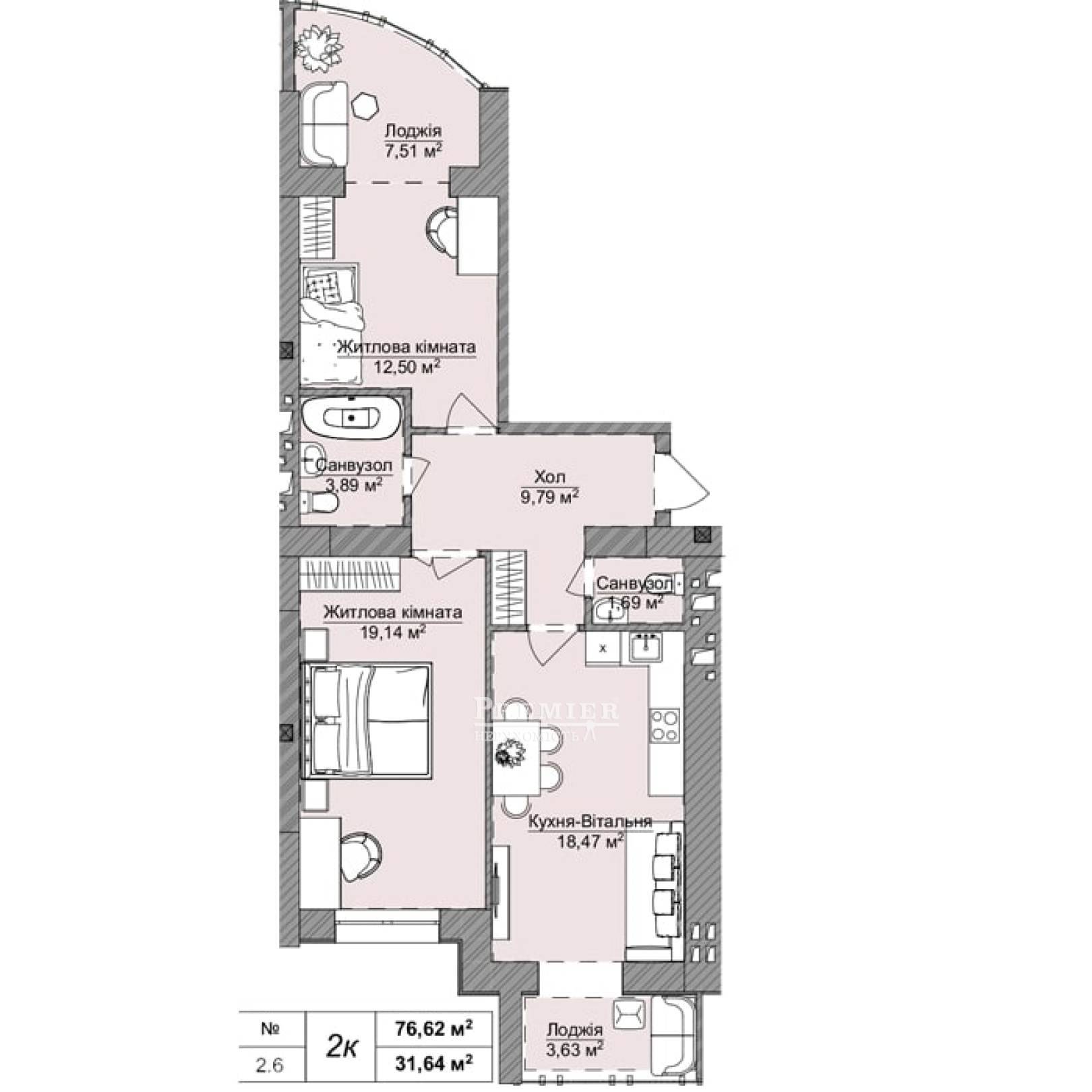
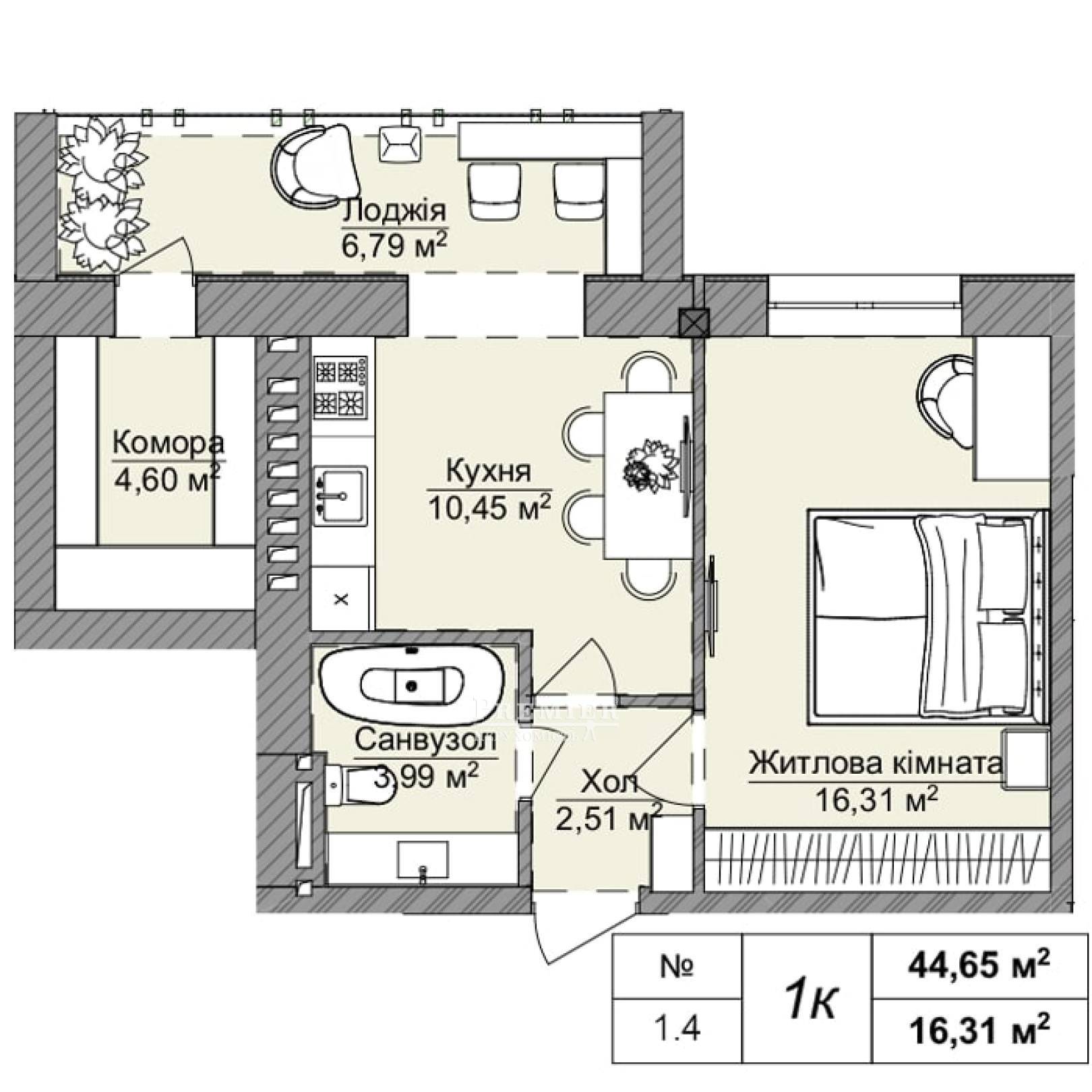
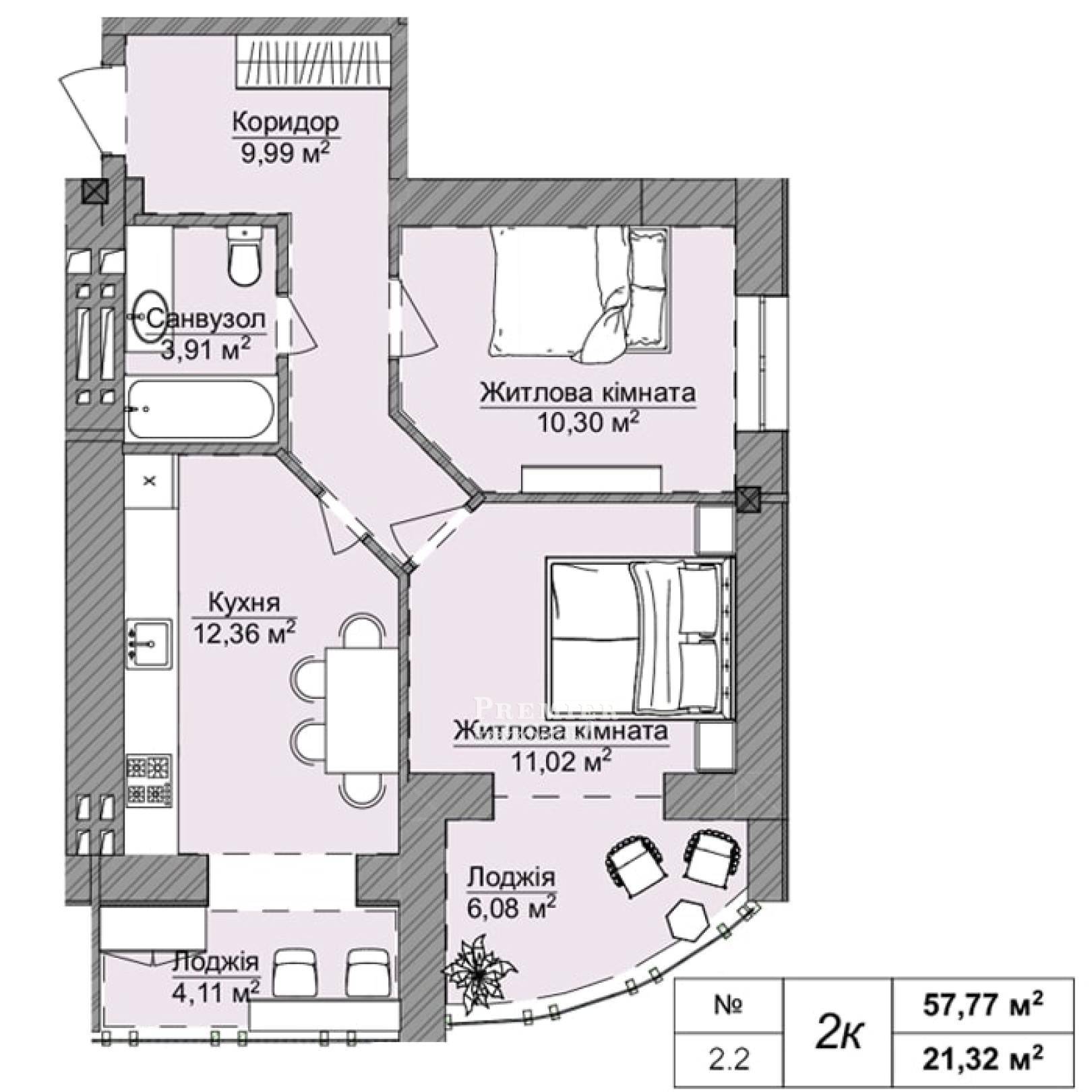
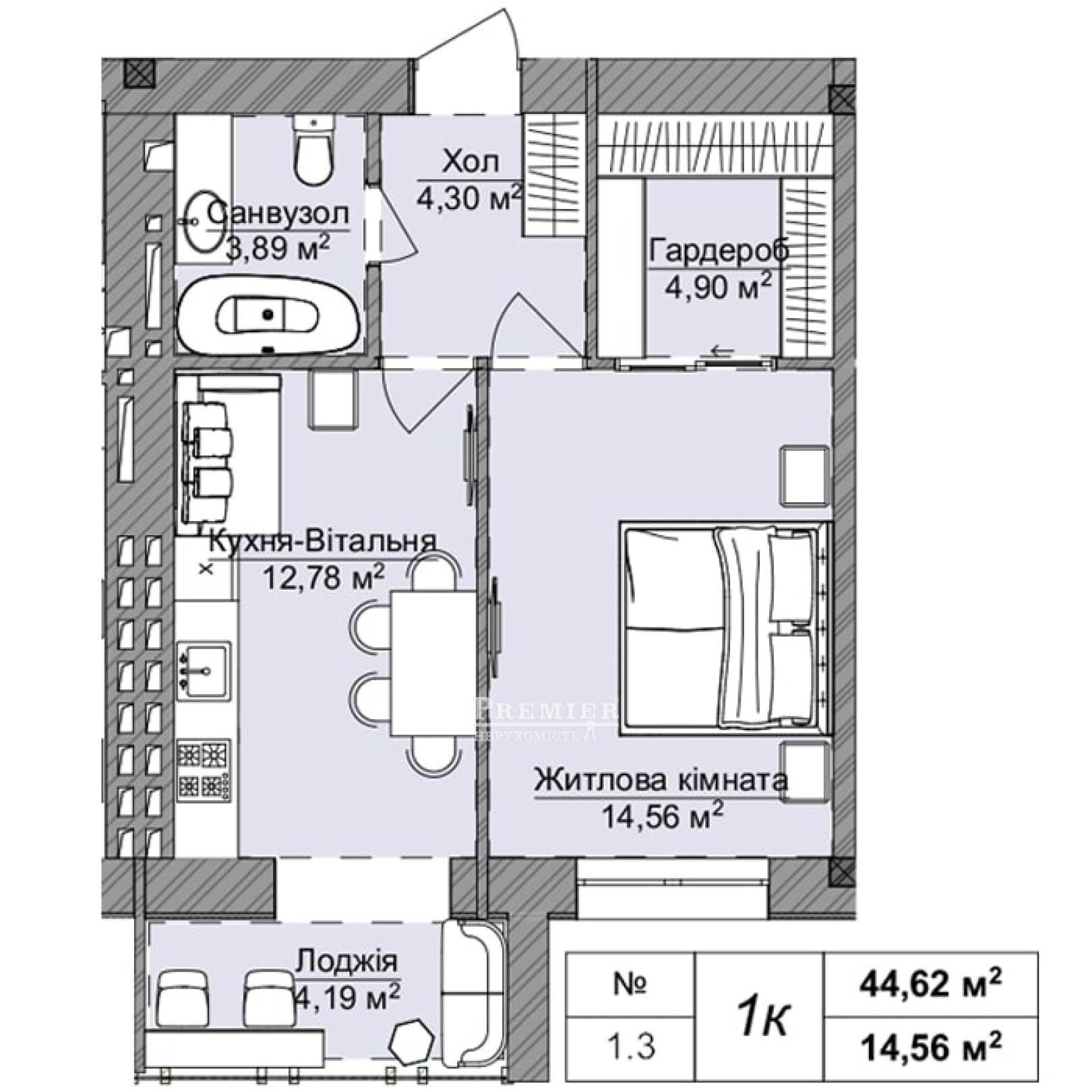
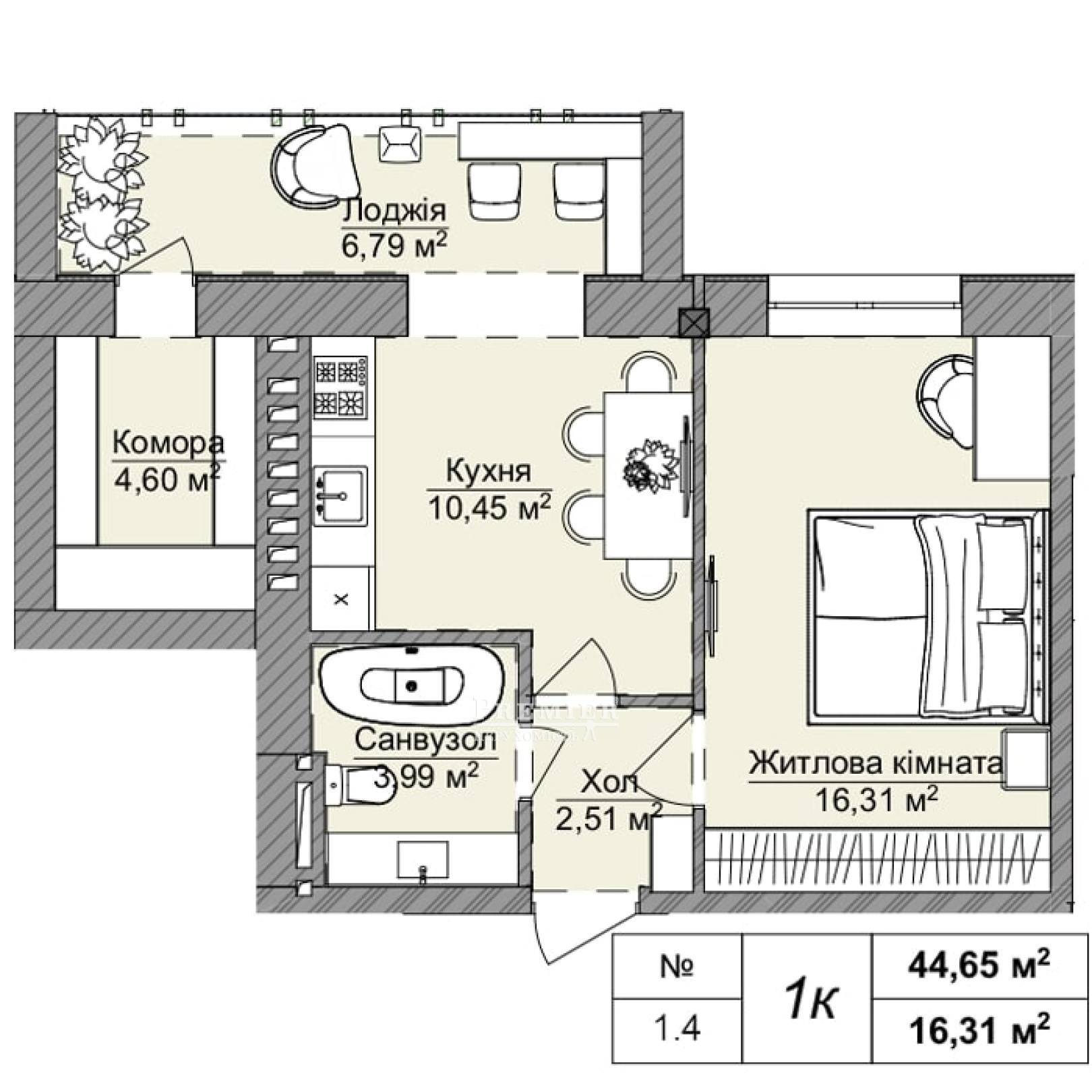
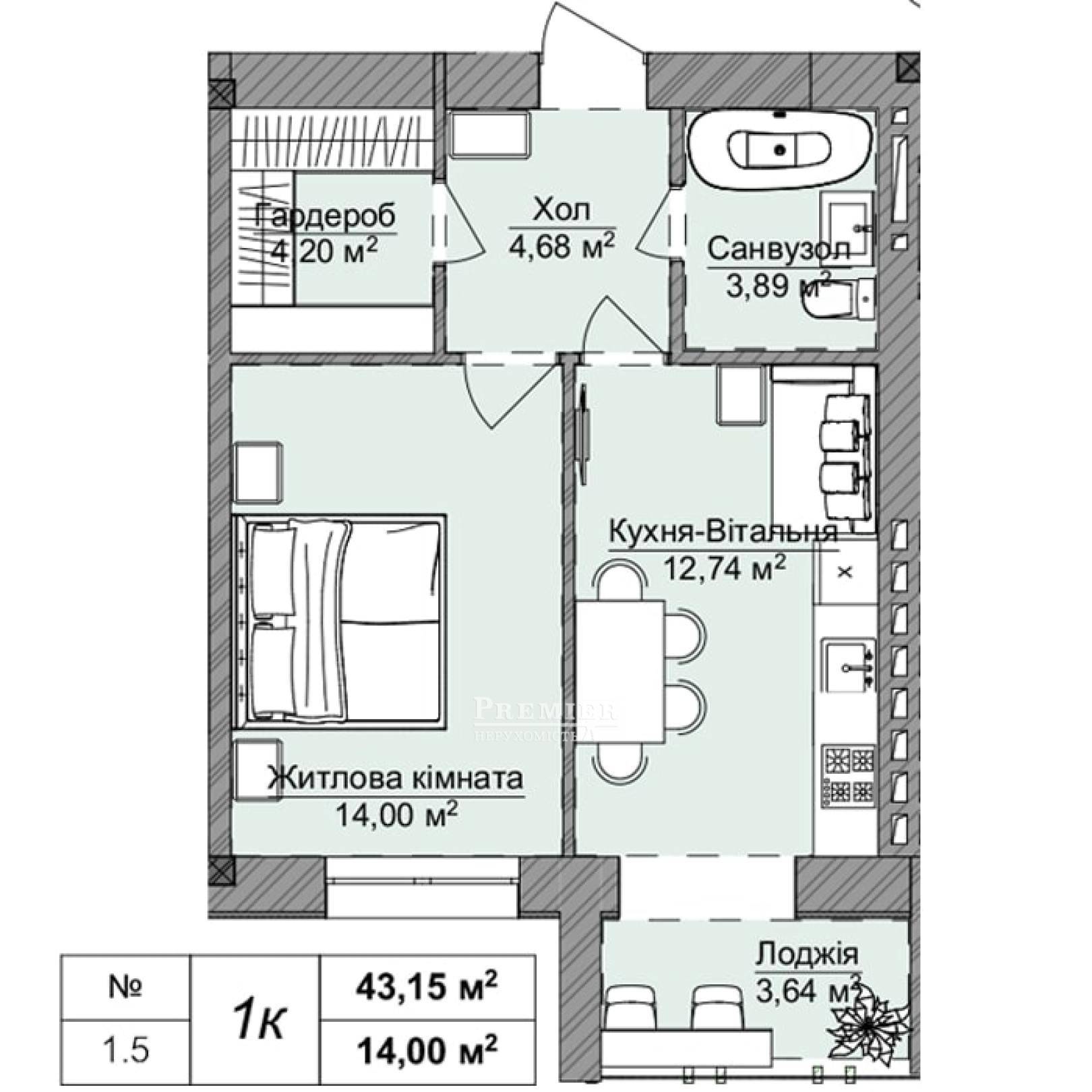
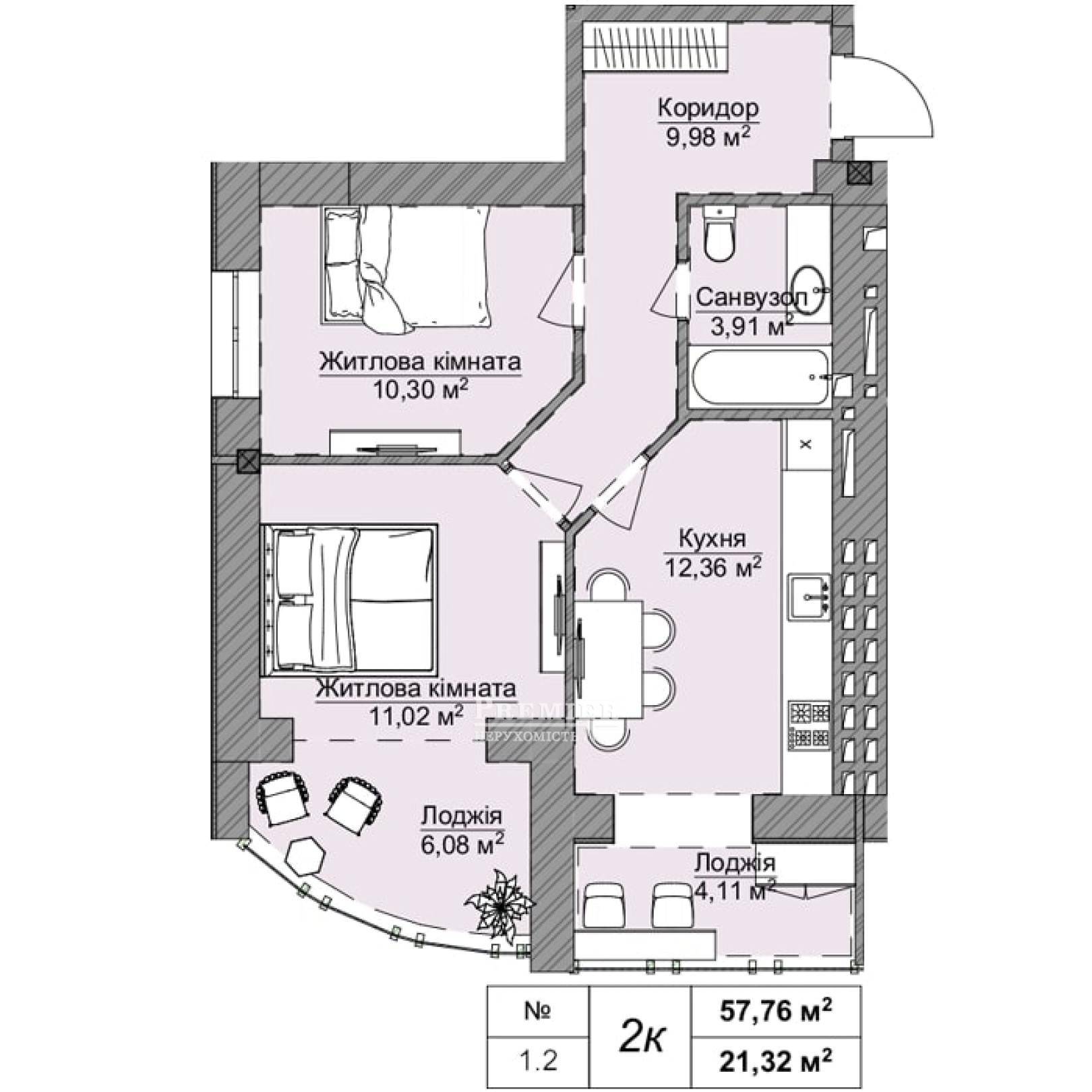
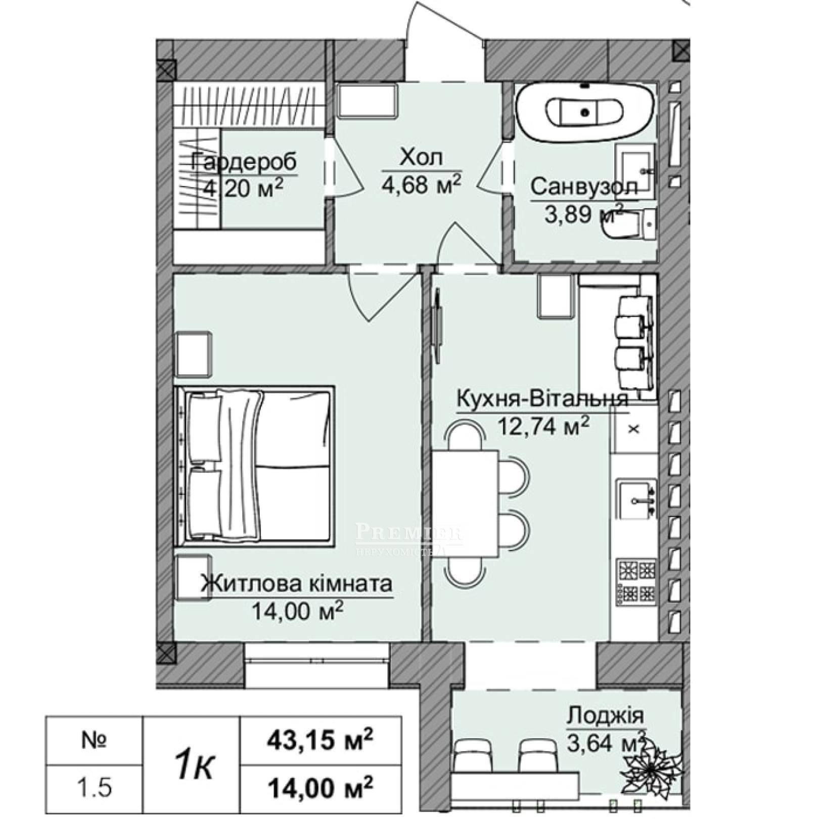
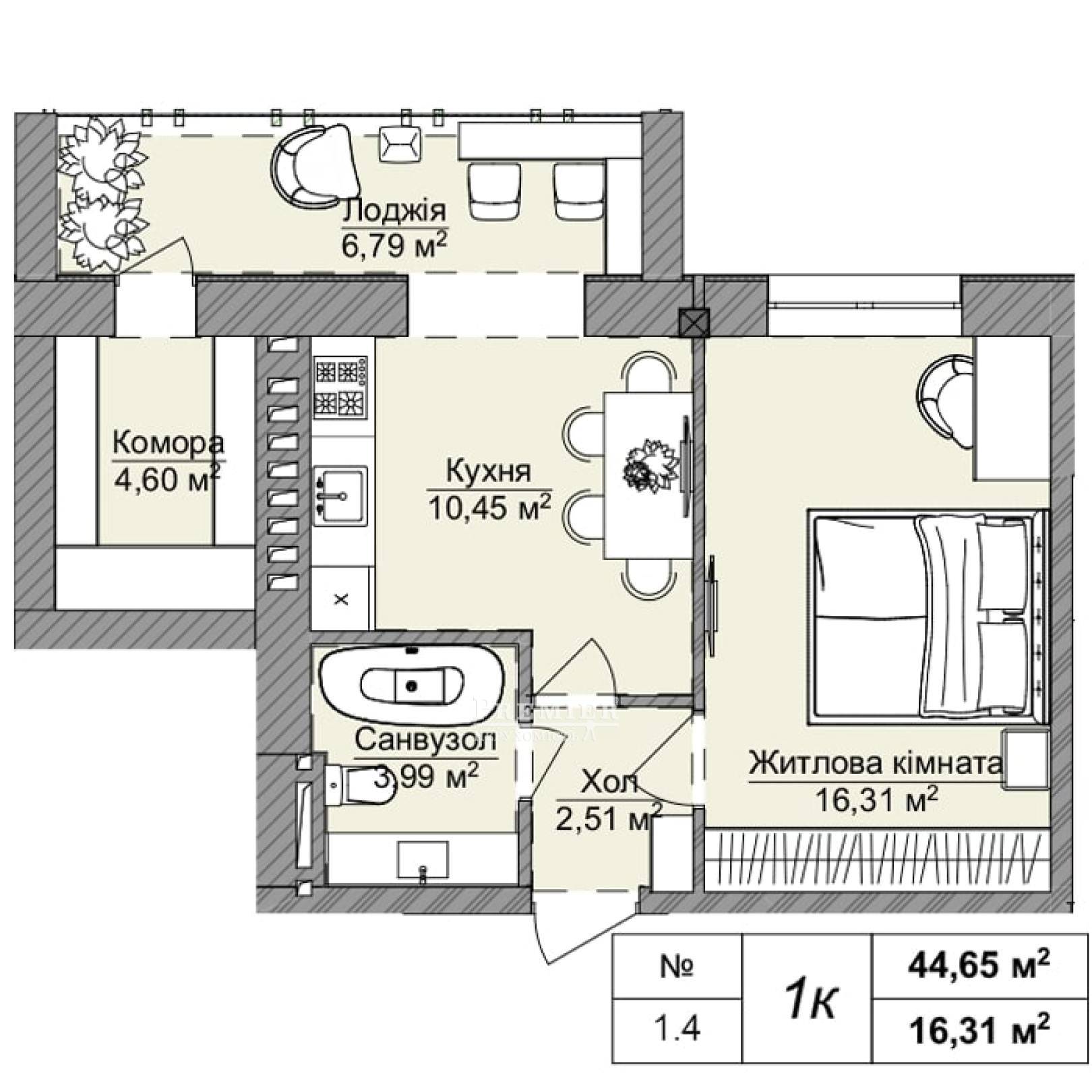
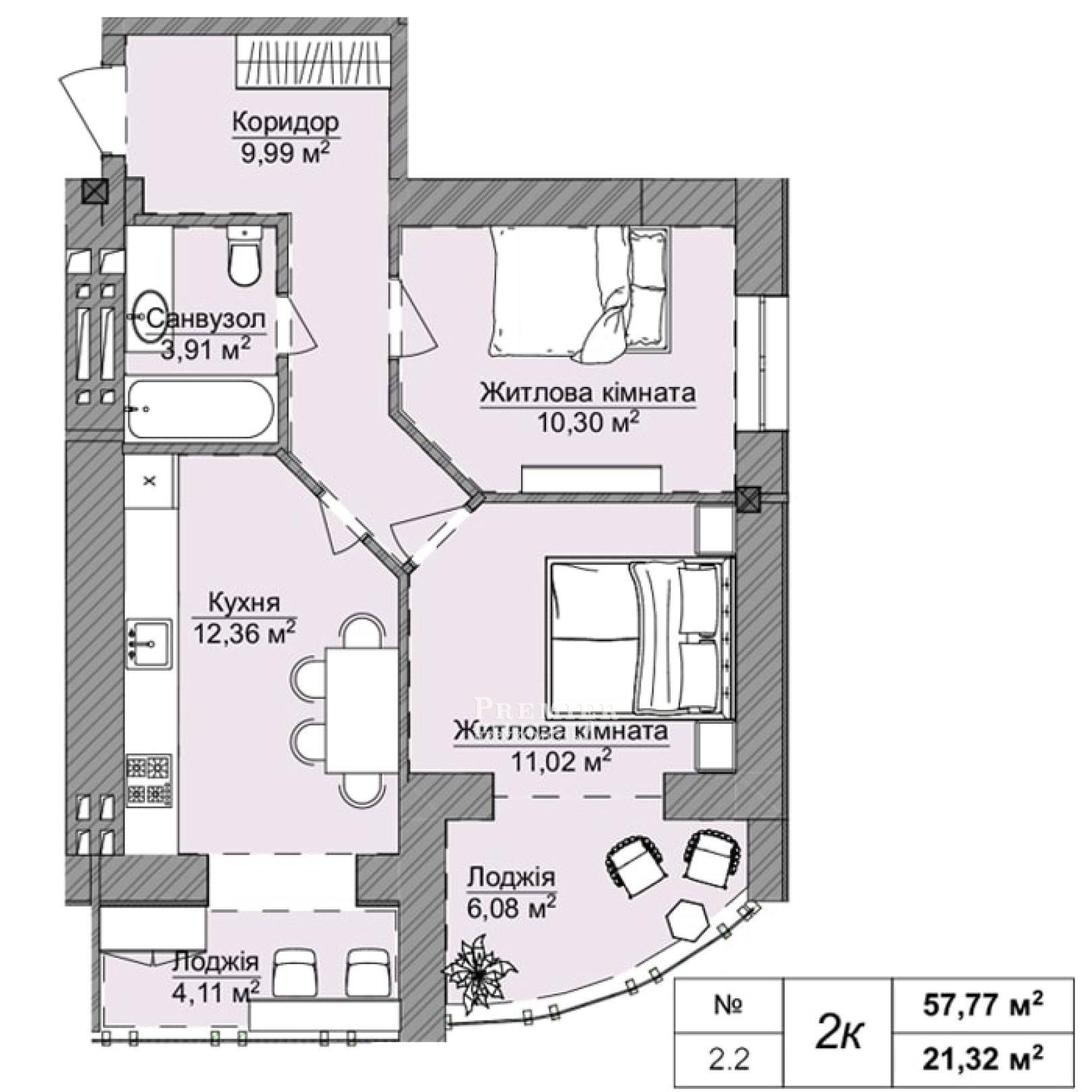
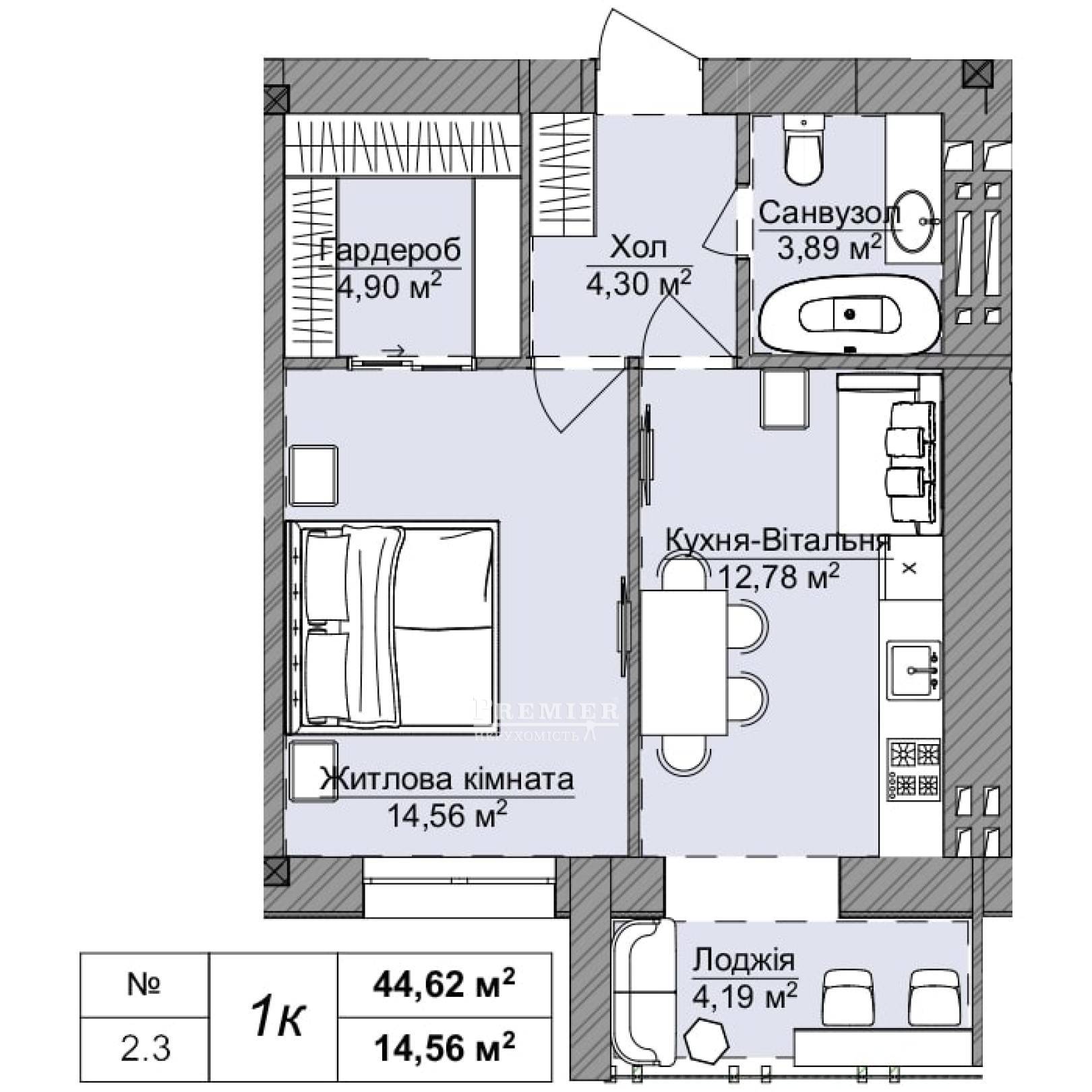
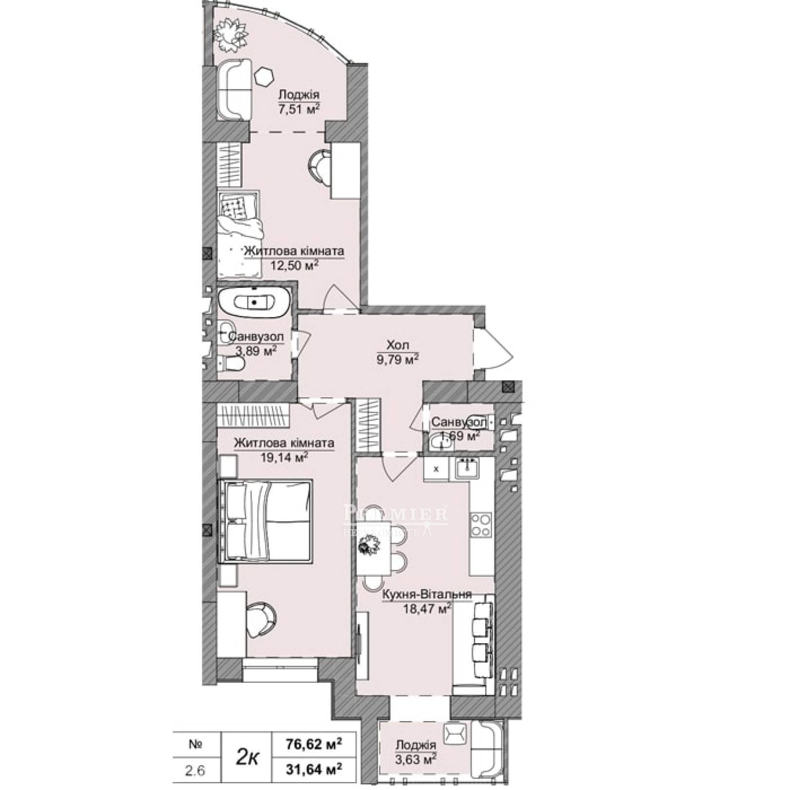
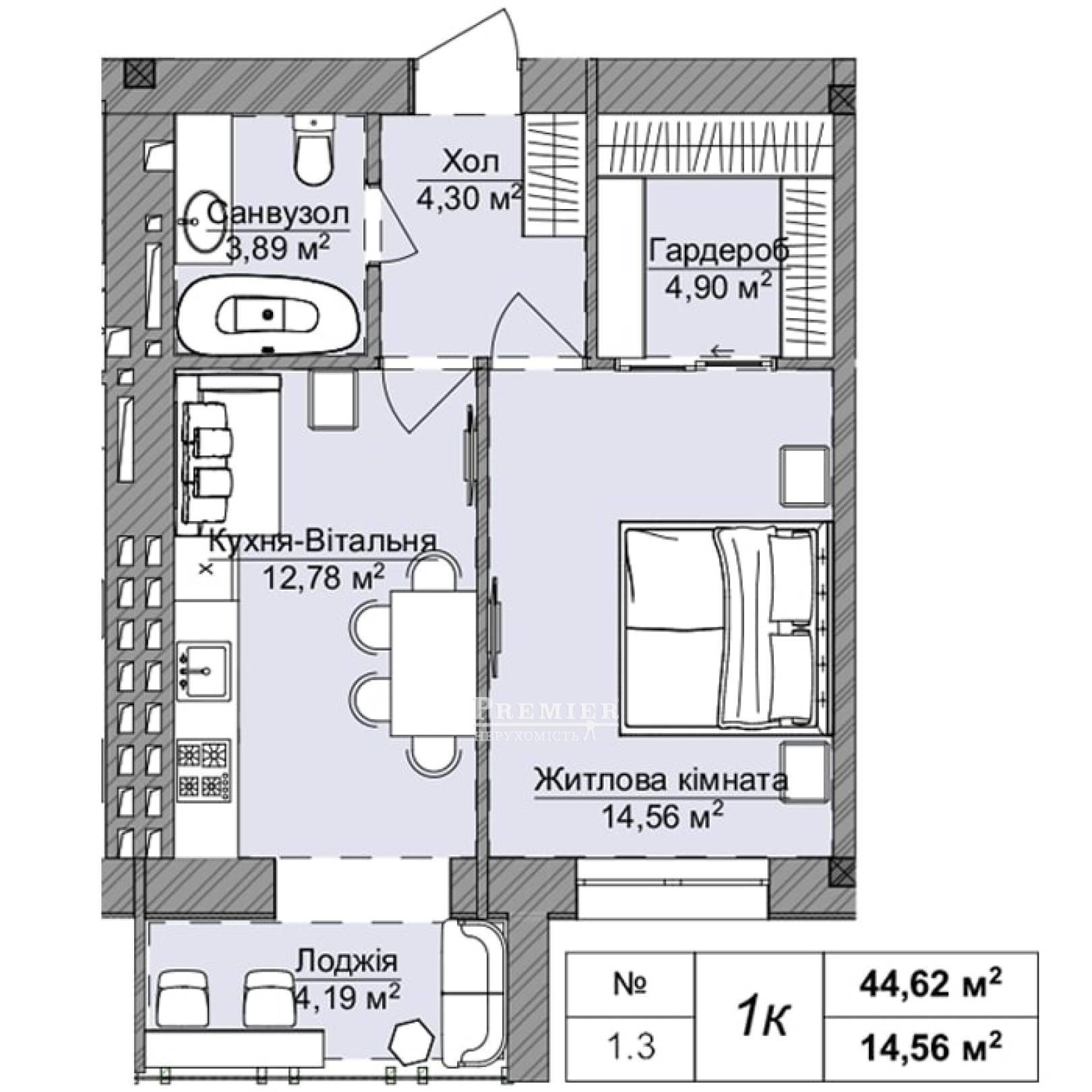
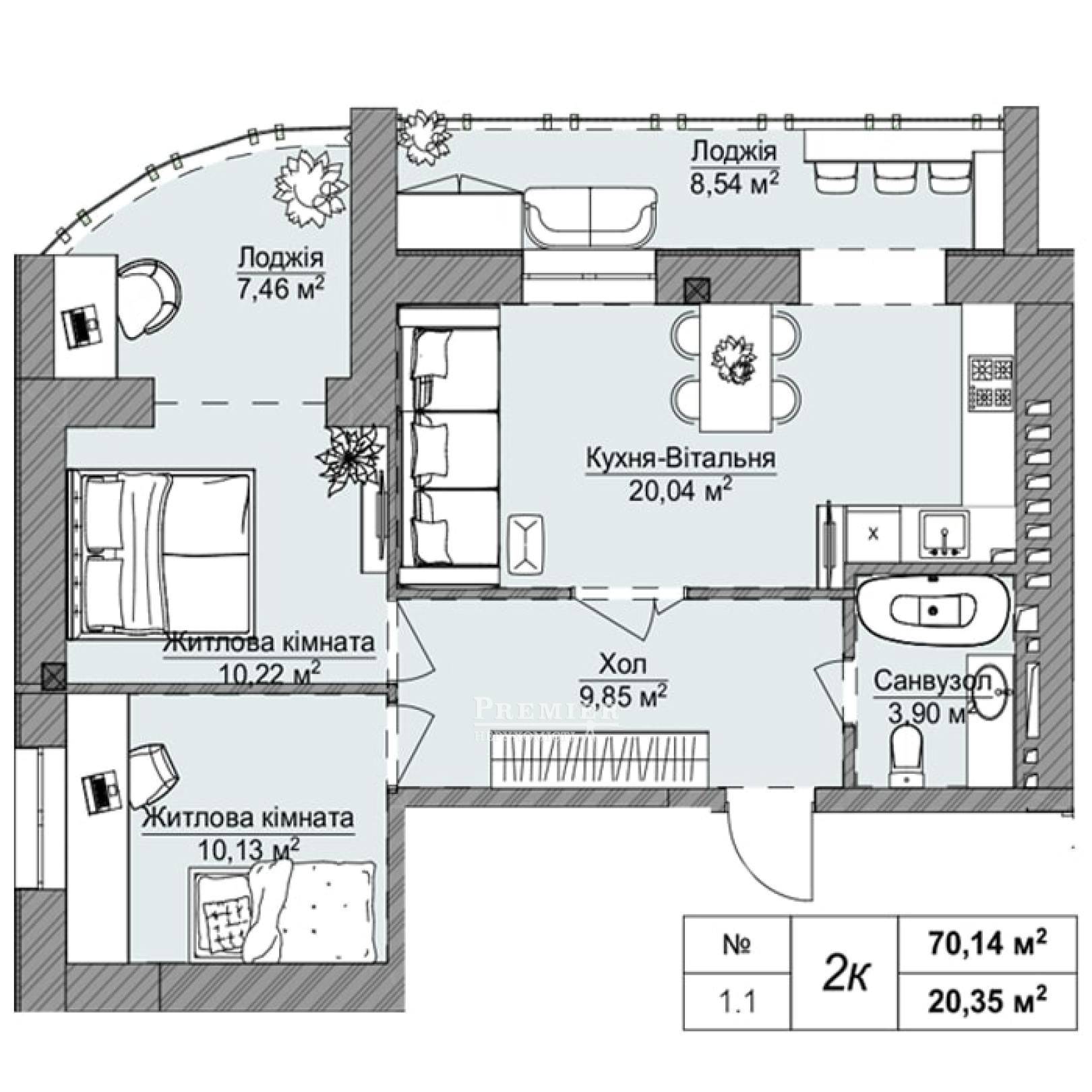
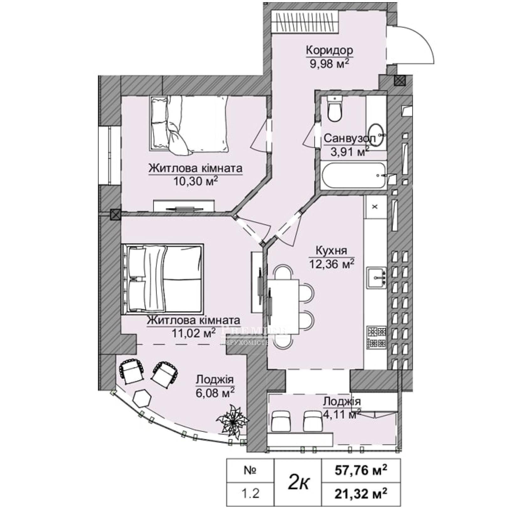
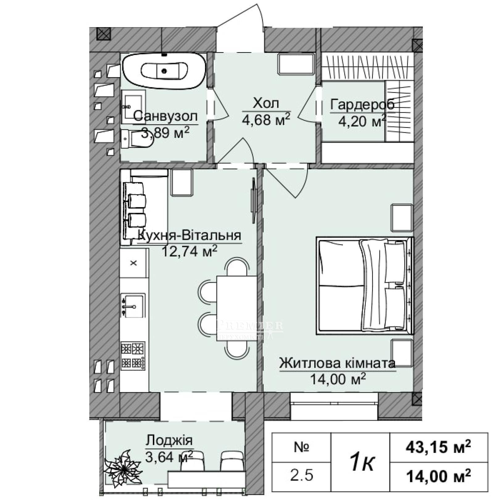
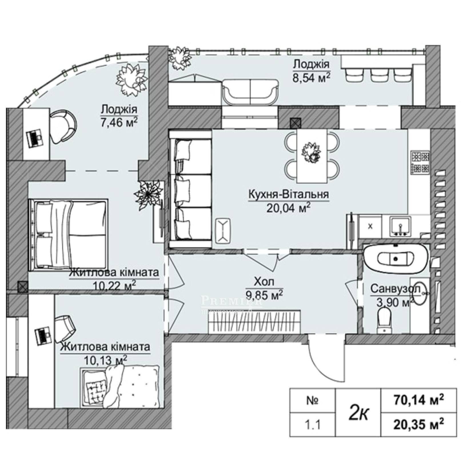
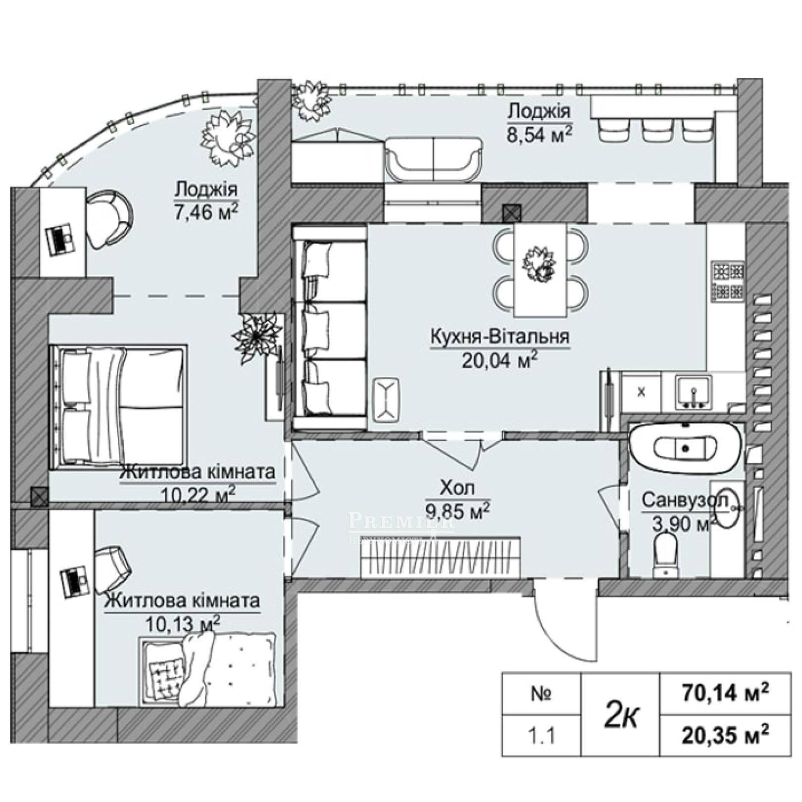
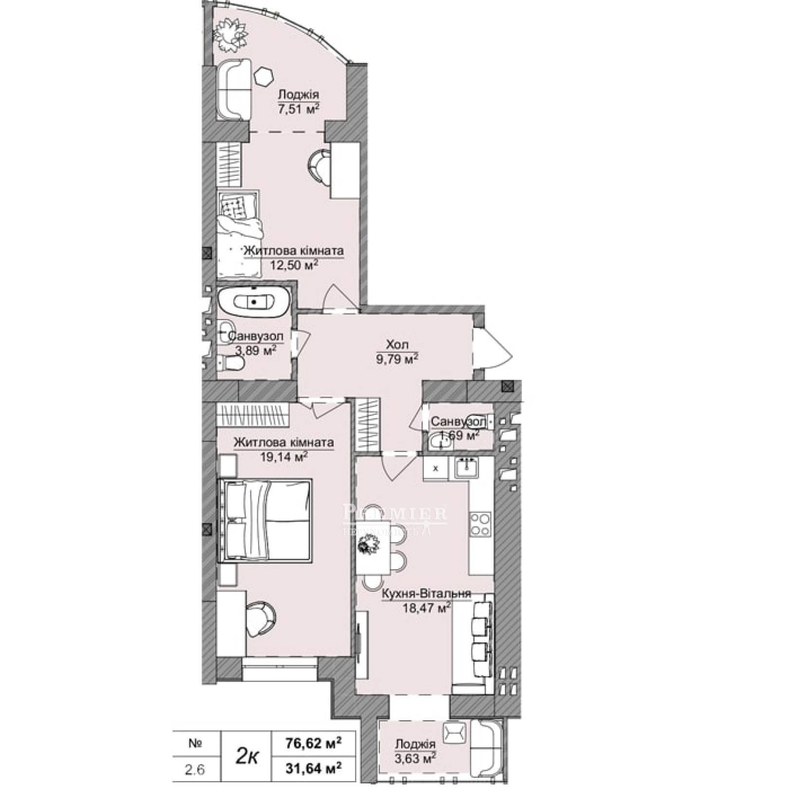
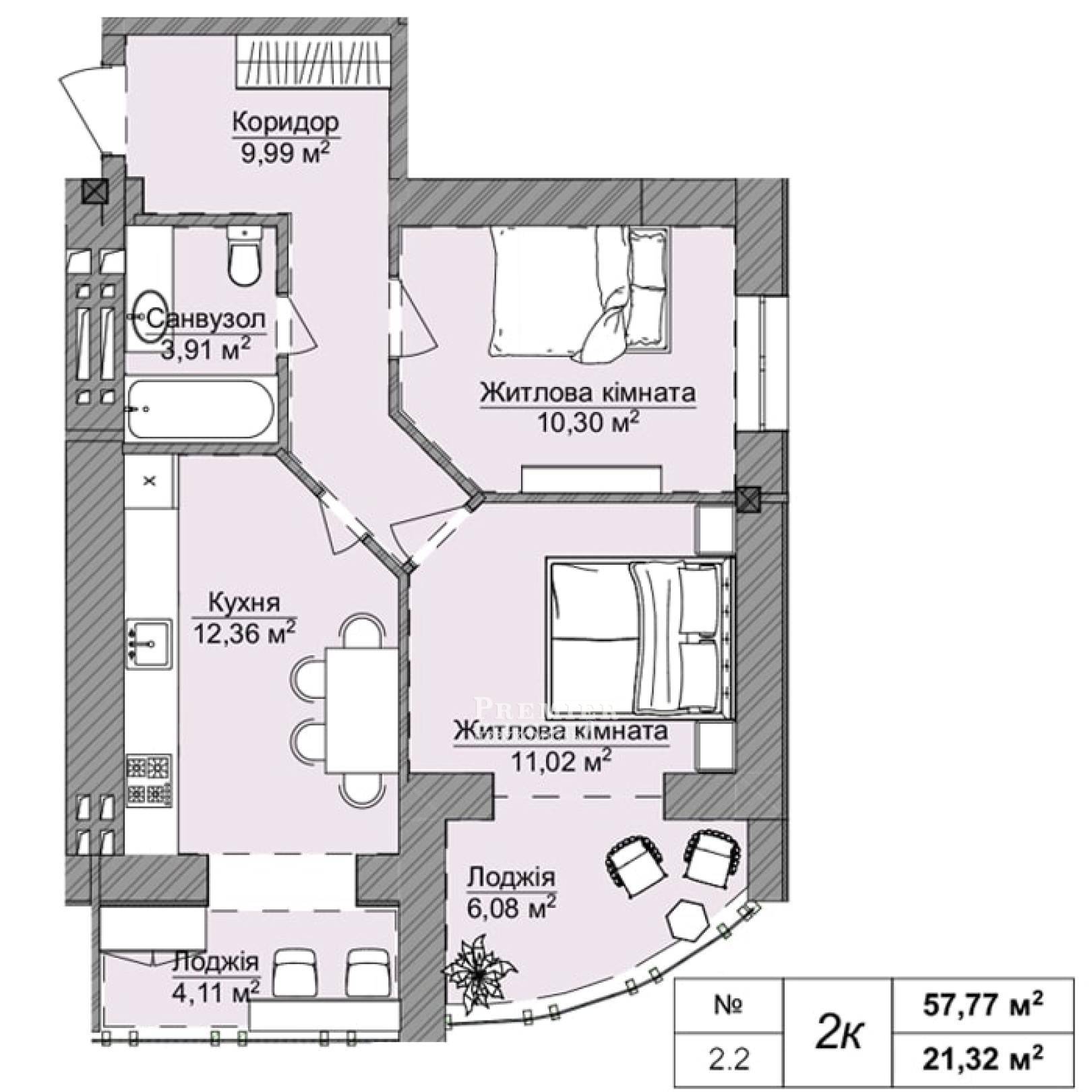
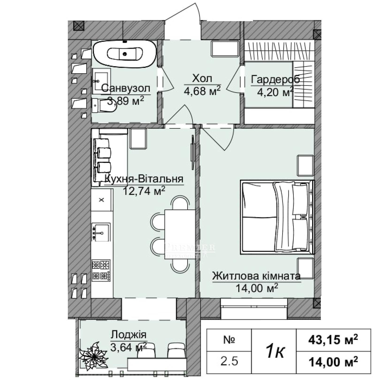
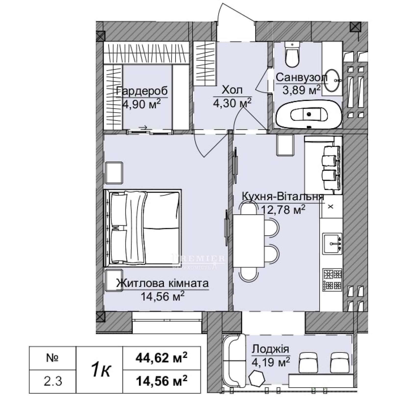
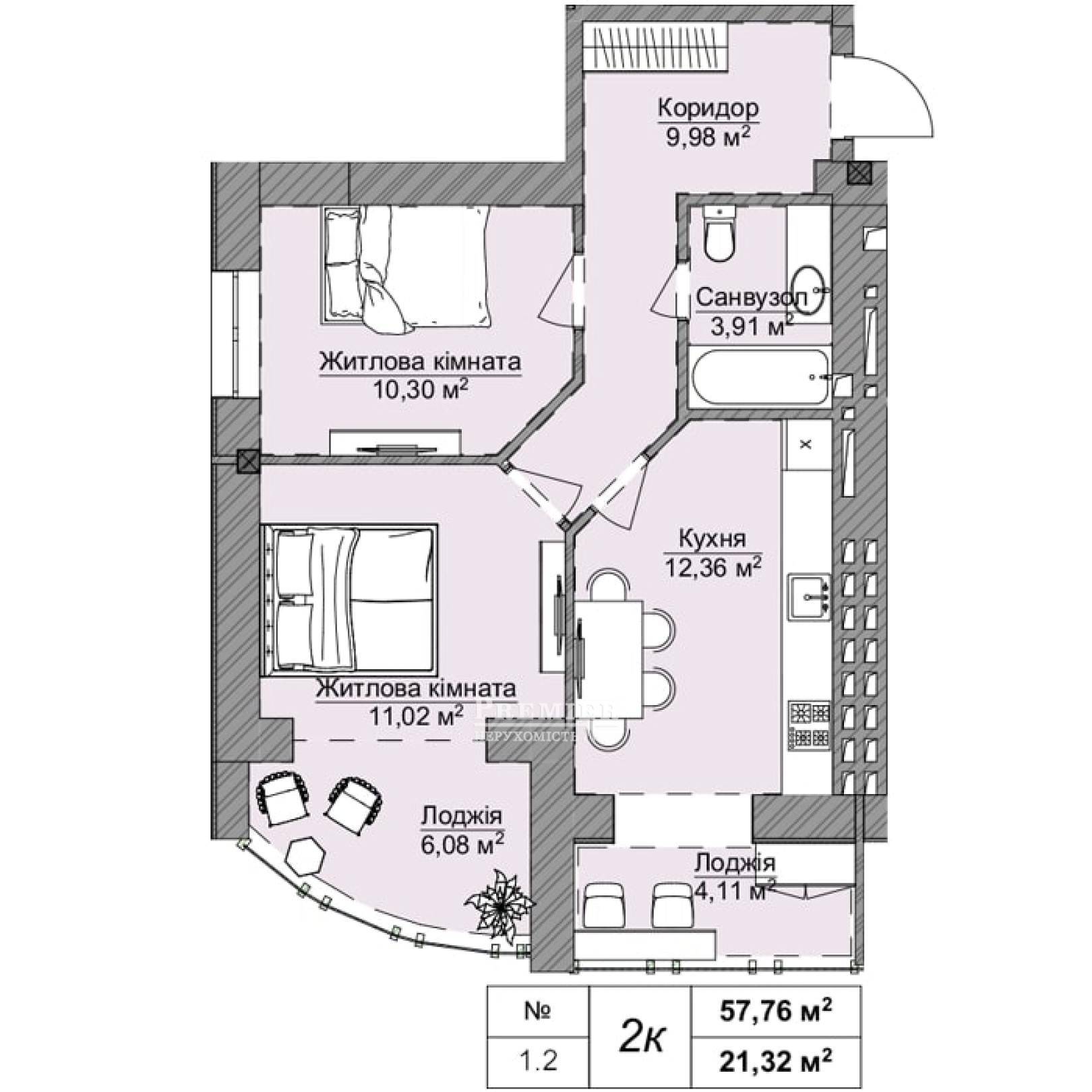
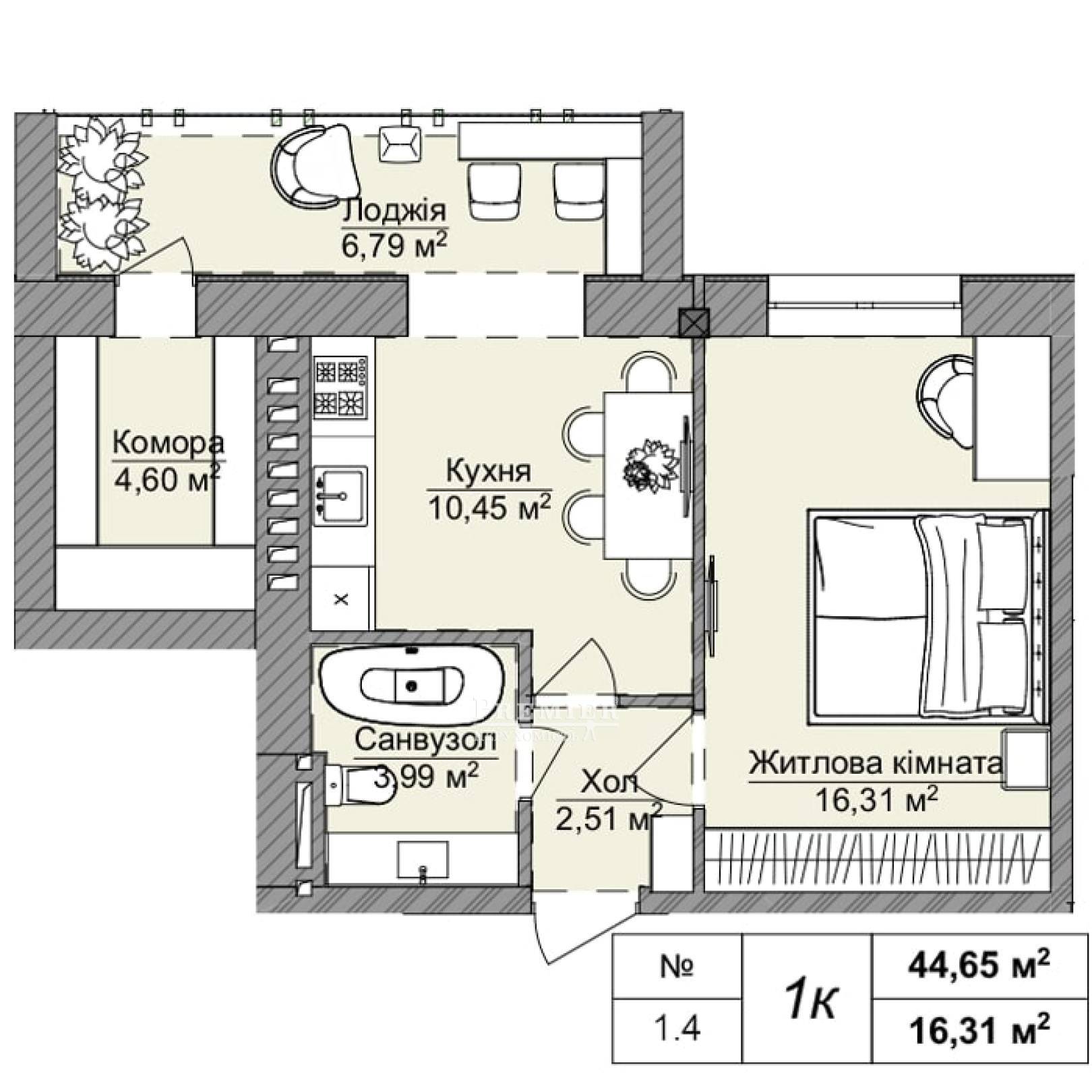
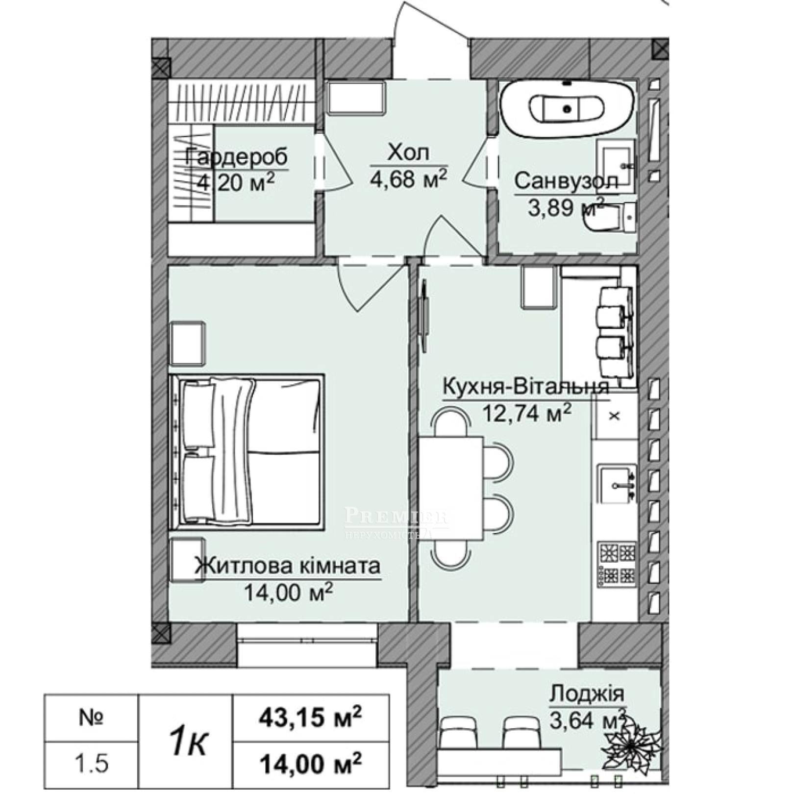
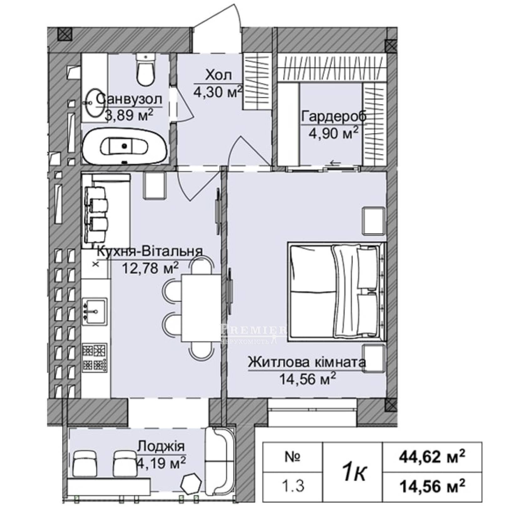
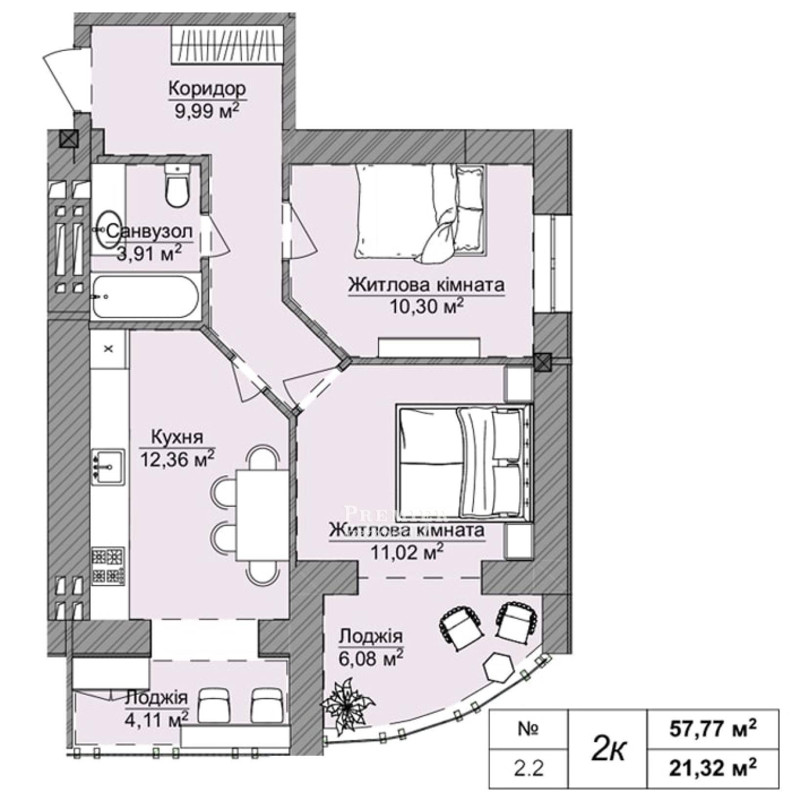
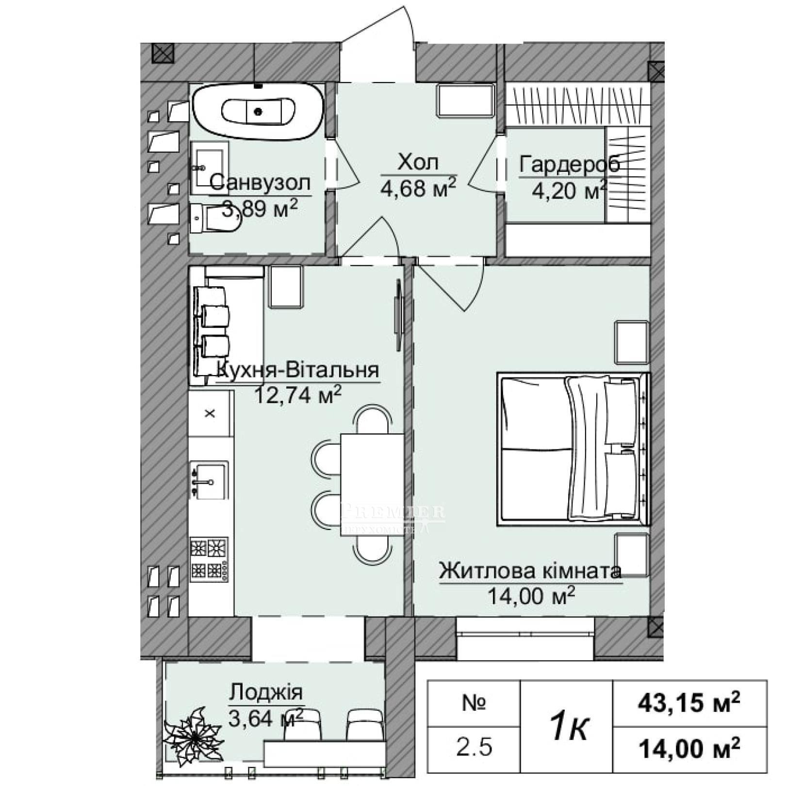
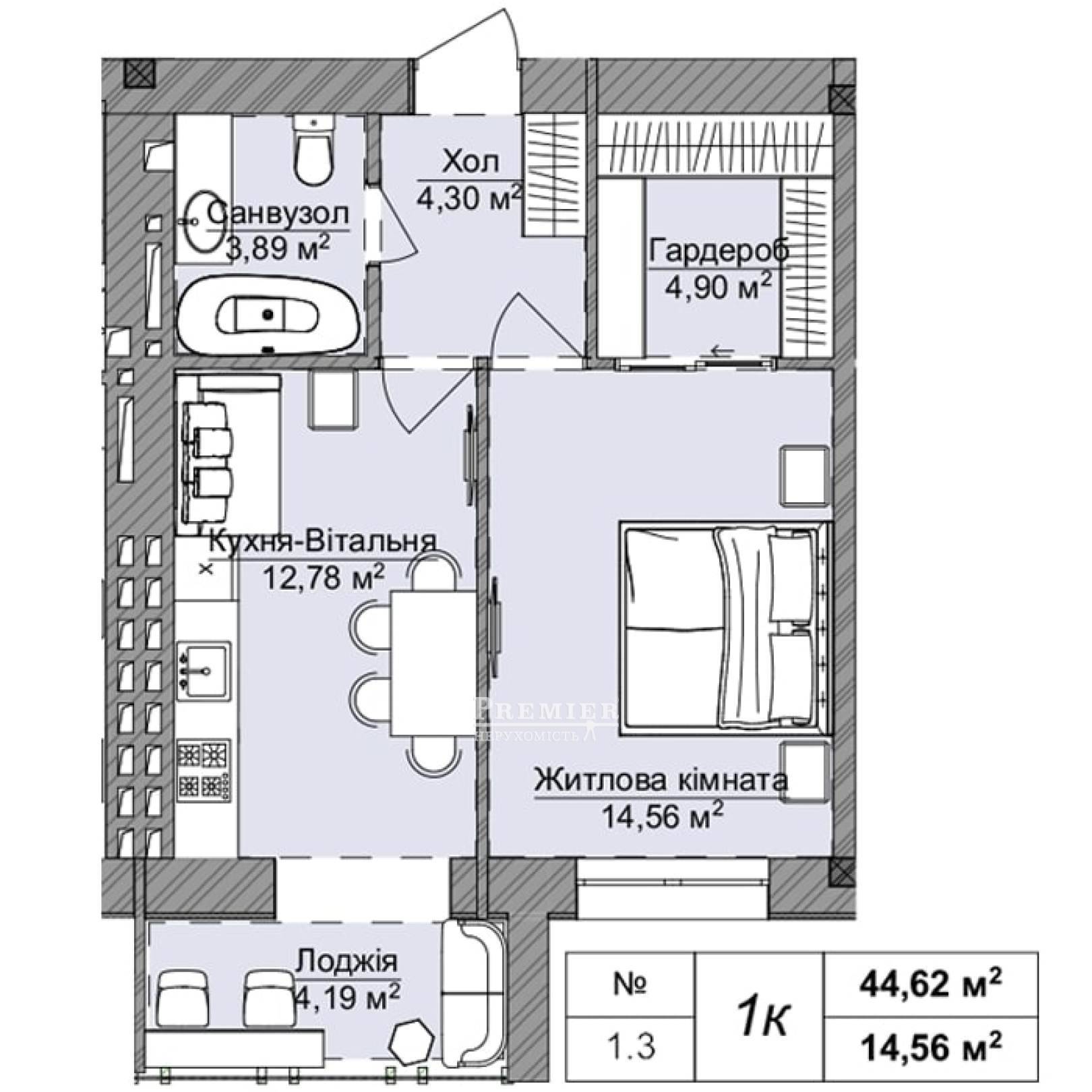
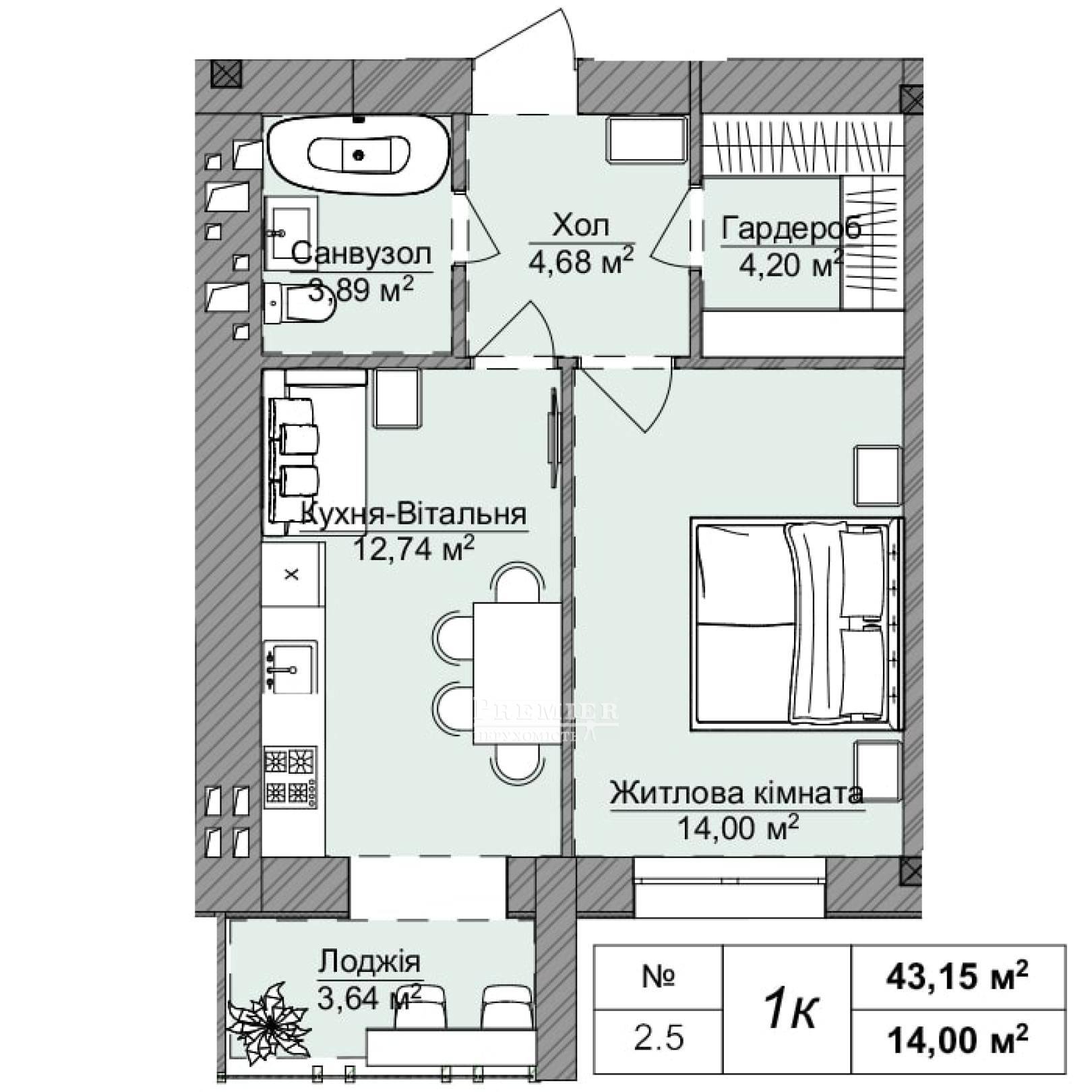
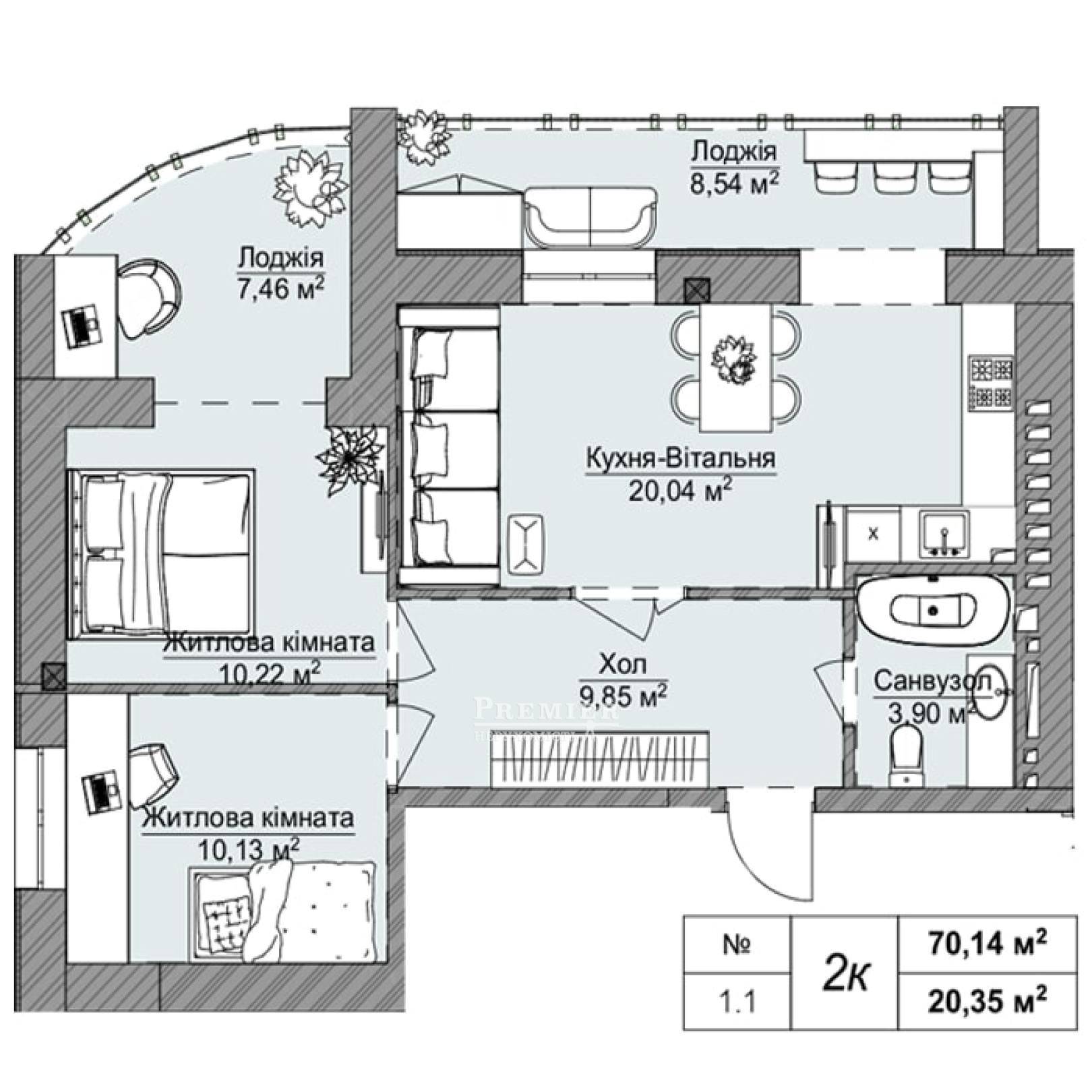
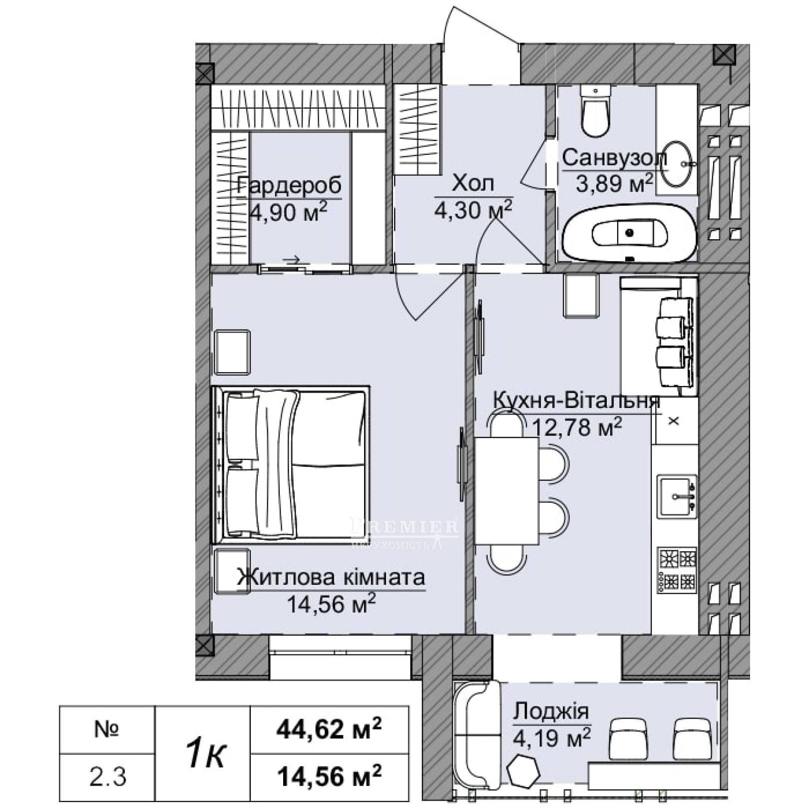
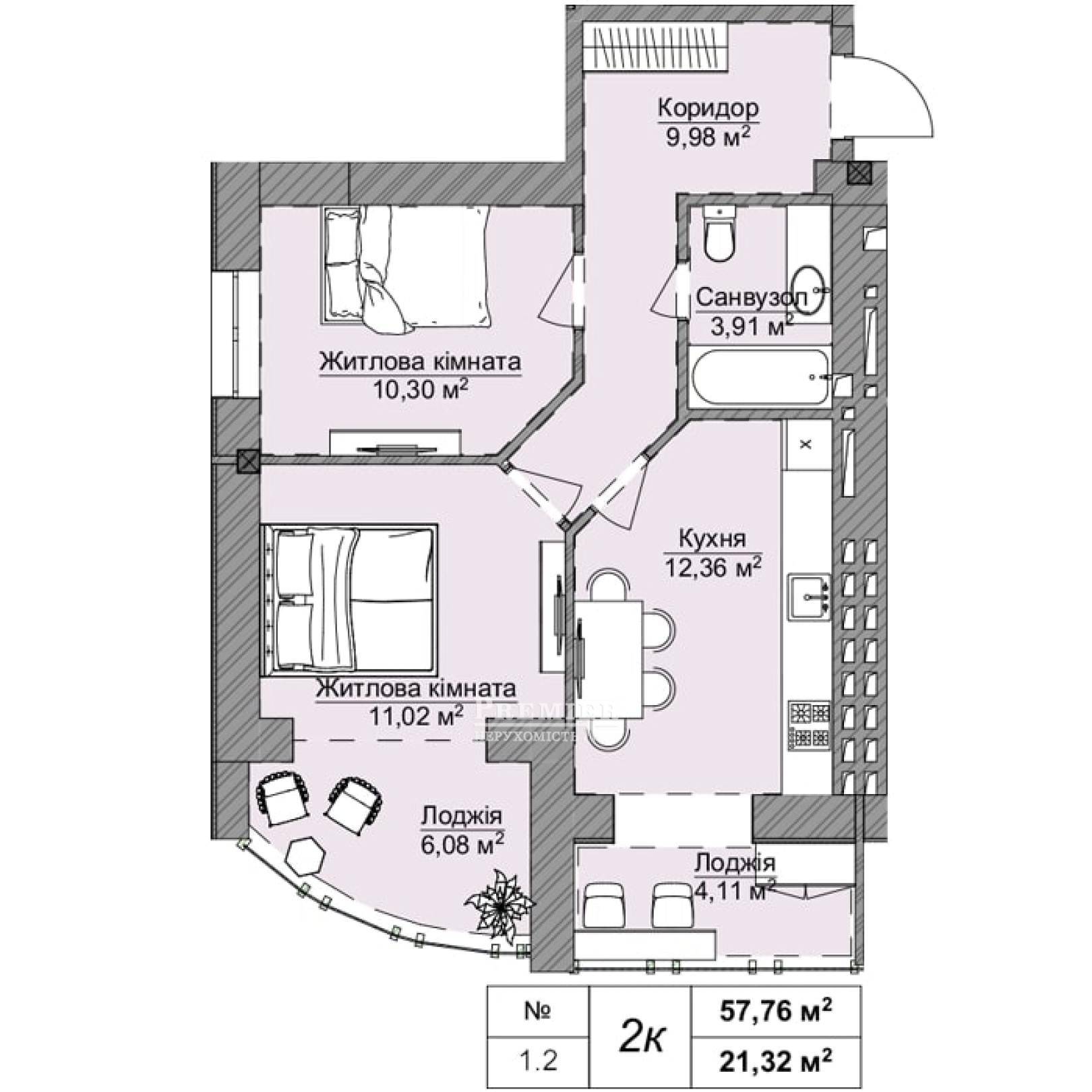
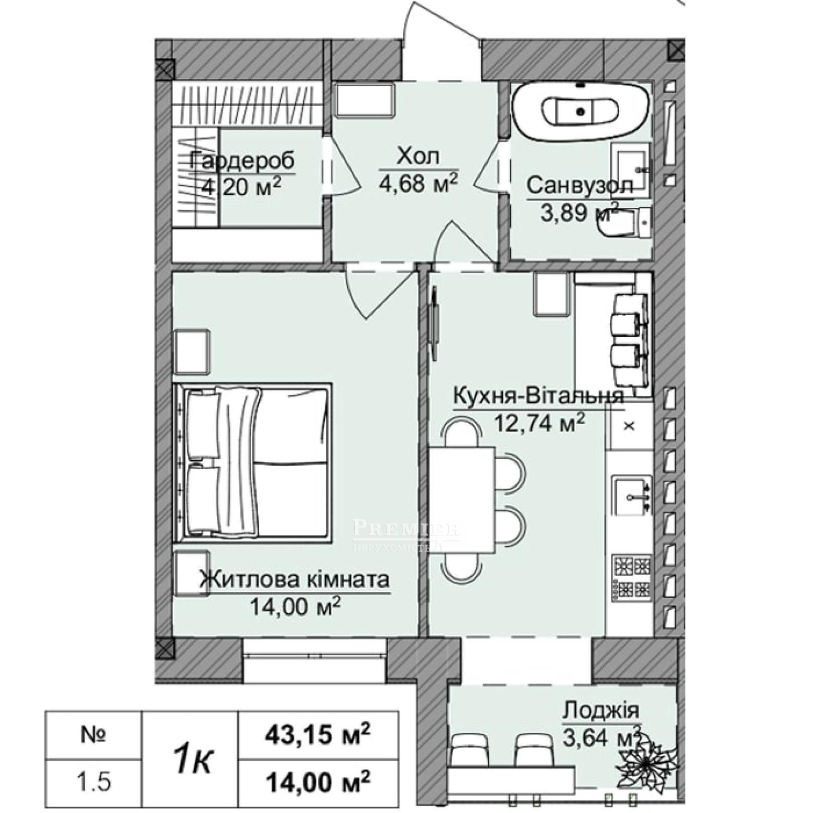
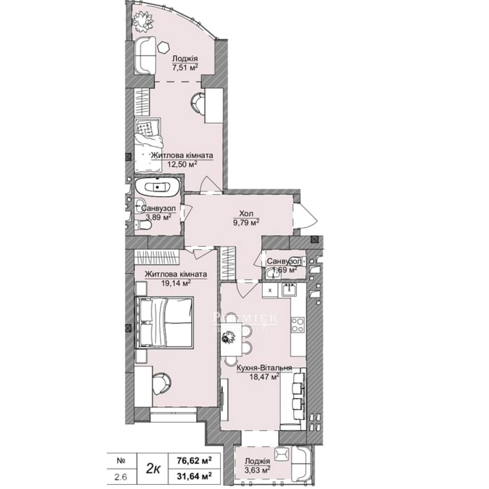
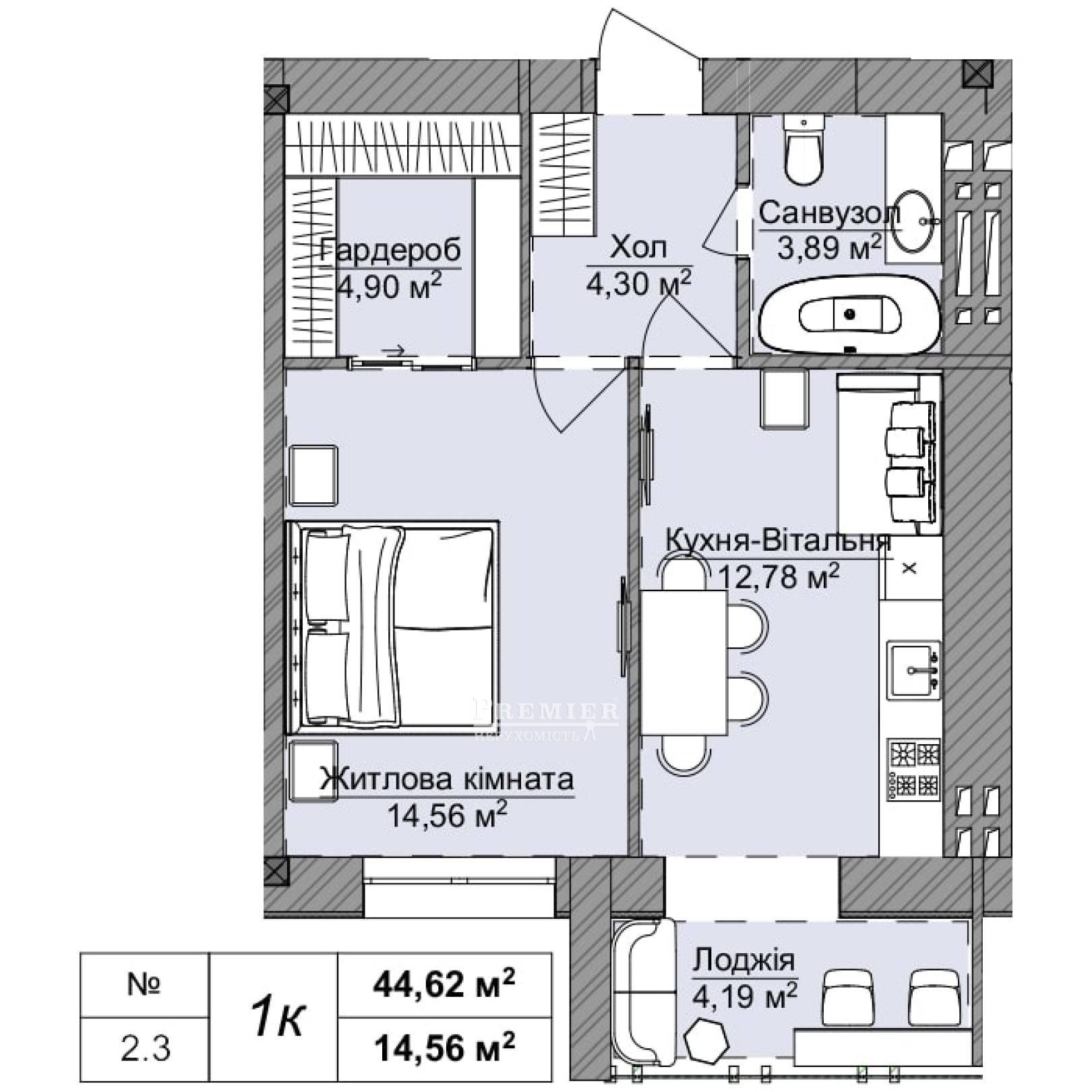
К приобретению предлагаются одно-, двух- и трехкомнатные квартиры с современными планировками. Минимальная площадь составляет 37,48 квадратных метров, а максимальная – 113 квадратных метров. Высота потолков достигает 3 метров. Система отопления представлена двухконтурными газовыми котлами, монтируемыми в каждой квартире. За сохранность микроклимата отвечают металлопластиковые окна – 5-камерные профили с двухкамерными энергосберегающими стеклопакетами. На входах устанавливаются бронированные металлические двери.

Придомовая территория приводится в порядок и украшается зелеными насаждениями. Монтируется ограждения и функционирует круглосуточная охрана с видеонаблюдением. Выделяются места для отдыха, детская и спортивная площадки, а также зоны для барбекю. Производится укладка тротуарной плитки. В комплексе действует современная противопожарная система.

от 35 560
ГРН. / кв.м
USD
UAH
Компания "Премьер" является официальным партнером строительной компании. Объекты продаются без какой либо комиссии.
Контакты менеджеров по продаже
Семена Палия, 108 (Днепропетровская дор,)
просп. Князя Владимира Великого, 99 (Добровольского просп.)
ул. Сахарова 24
Задать вопрос
Назначить осмотр
Посмотреть на карте
Дополнительные услуги