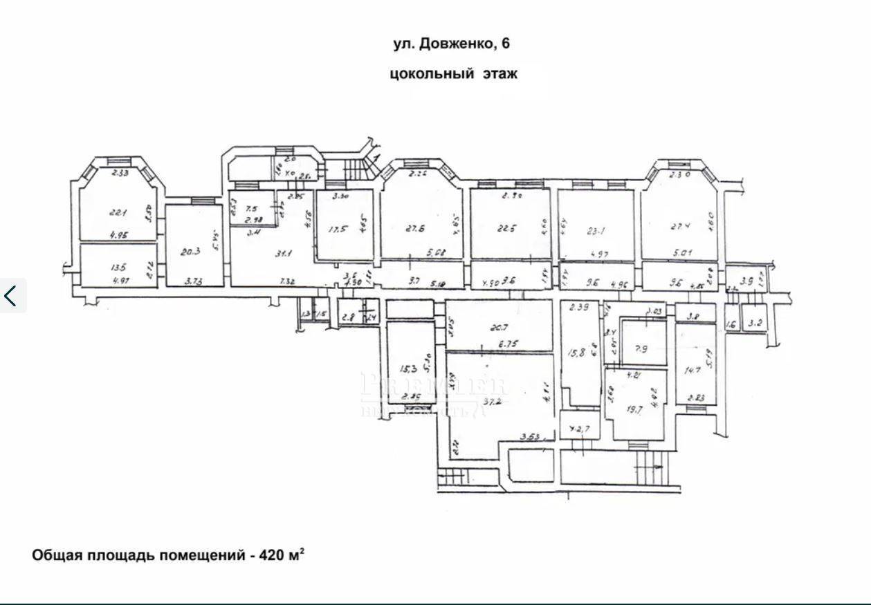
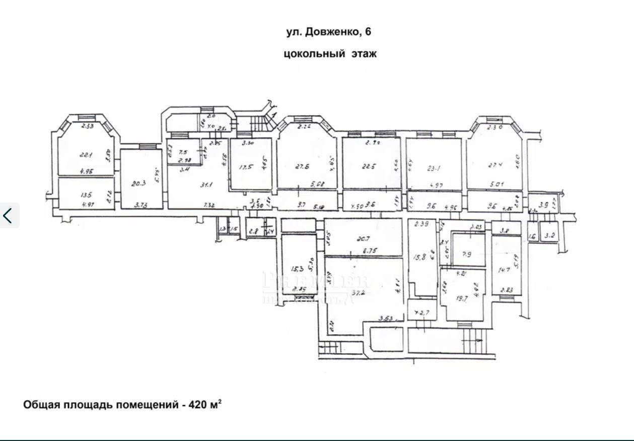
Продается Под любой вид деятельности, Довженко ул., г.Одесса
Одесса, Приморском, ул. Довженко
ID 185505
Комнат
1
Общая
420 м2
Этаж
1
Этажность
8
В продаже коммерческое помещение под любой вид деятельности в элитном доме в Приморском районе. Цокольный этаж с окнами, 8-ми этажного дома. Отдельный вход с улицы Довженко, дополнительно 2 входа со двора; Высота потолков - 3м; Просторные помещения; 10 кабинетов, отдельный блок для кухни, подсобные помещения, 3 санузла; Под косметический ремонт.
200 000 USD
171 654 EUR
8 720 000 UAH
Филиалул. Преображенская, 49/51
Ответственный специалист
высшей категории Людмила Шевченко
высшей категории Людмила Шевченко
Показать
Дополнительные услуги