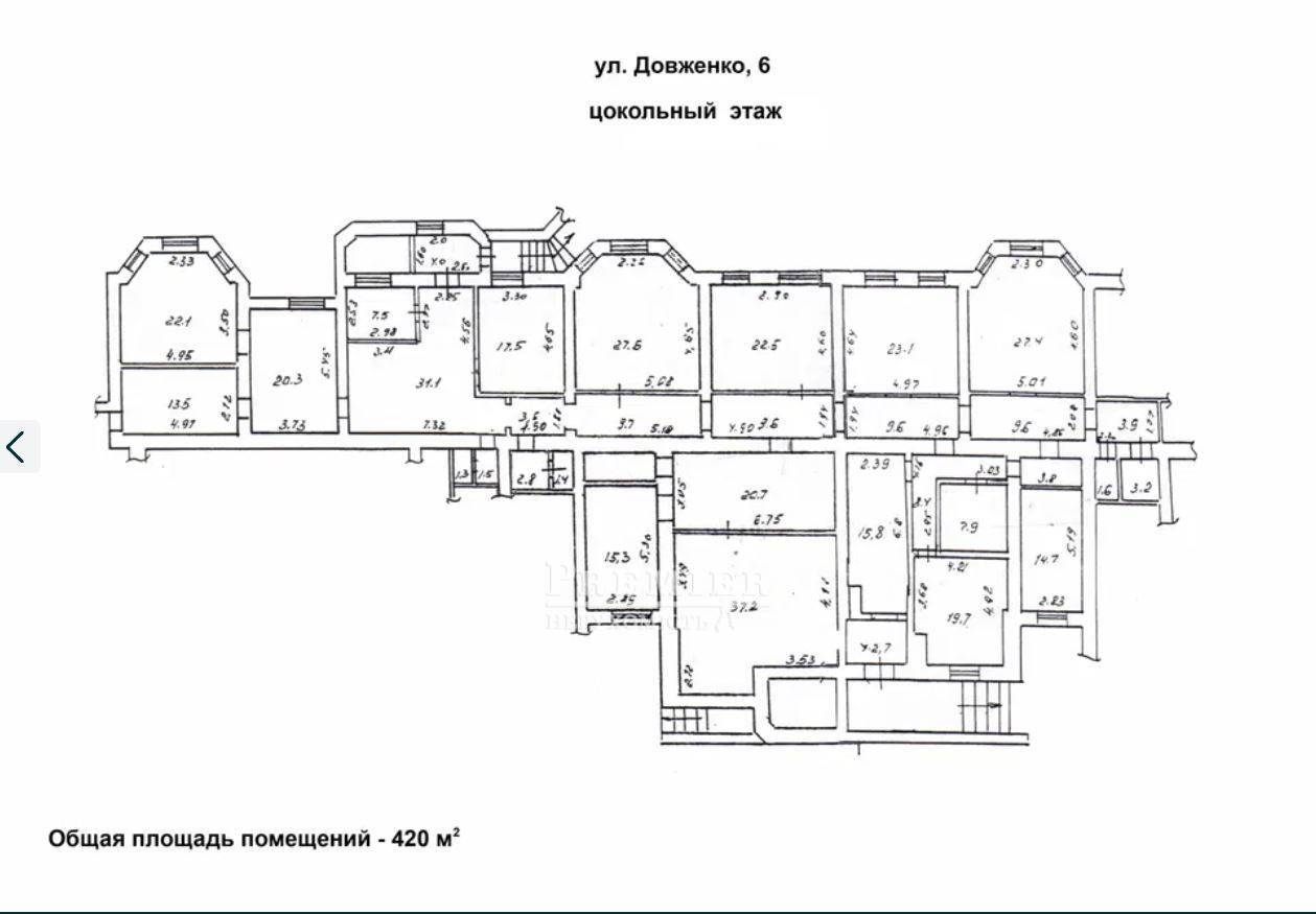
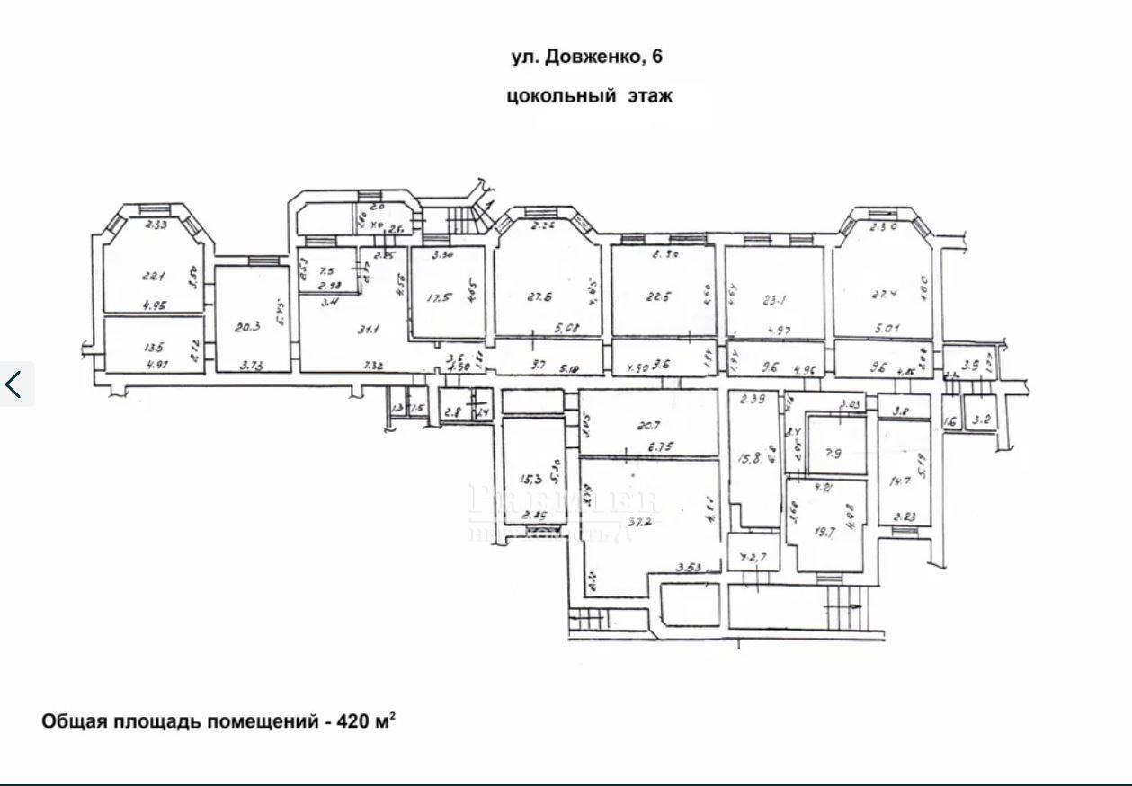
Продається Под любой вид деятельности, Довженка вул., м.Одеса
Одеса, Приморський, ул. Довженка в
ID 185505
Кімнат
1
Загальна
420 м2
Поверх
1
Поверховість
8
Продаж комерційного приміщення під будь-який вид діяльності в елітному будинку в Приморському районі. Цокольний поверх з вікнами, 8 поверхового будинку. Окремий вхід з вулиці Довженка, додатково 2 входи із двору; Висота стель – 3м; просторі приміщення; 10 кабінетів, окремий блок для кухні, підсобні приміщення, 3 санвузли; Під косметичний ремонт.
200 000 USD
172 222 EUR
8 370 000 UAH
Філіявул. Преображенська, 49/51
Відповідальний спеціаліст
вищої категорії Людмила Шевченко
вищої категорії Людмила Шевченко
Показати
Додаткові послуги