Продается Под любой вид деятельности, Бочарова Генерала ул. Brussels (Брюссель), г.Одесса

Одесса, , ул. Бочарова Генерала Brussels (Брюссель)
ID 189458
Комнат
1
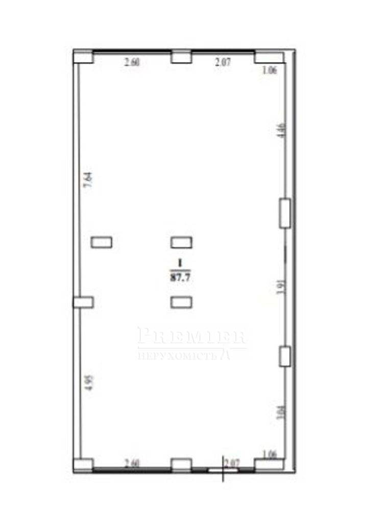
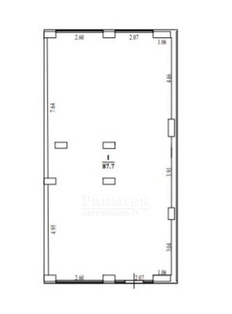
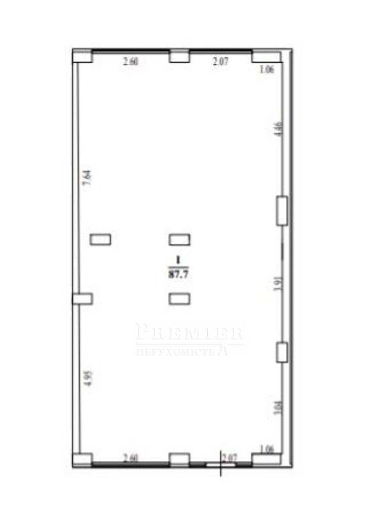
Общая
87.7 м2
Этаж
1
Этажность
6
В продаже коммерческое помещение в Одессе на улице Бочарова/Сахарова. 1 этаж 6 ти этажного новыого сданного дома. Общая площадь 88 кв.м. Возможно использование под любой вид деятельности. Свободная планировка. Сделан капитальный ремонт. Панорамное остекление. Развивающийся перспективный район, проходное место.
70 000 USD
59 917 EUR
2 965 900  UAH
USD
EUR
UAH

Филиалул. Сахарова 24
Ответственный специалист
высшей категории
Ирина Коршикова
Дополнительные услуги

Доходность объекта от аренды*

от10367грн/месяц

*Средняя цена при сдаче объекта в аренду в районе

Изменение цен на под любой вид деятельности в районе