Продається Под любой вид деятельности, Бочарова Генерала вул. Brussels (Брюссель), м.Одеса

Одеса, Пересипськом, ул. Бочарова Генерала в Brussels (Брюссель)
ID 189458
Кімнат
1
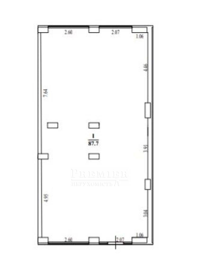
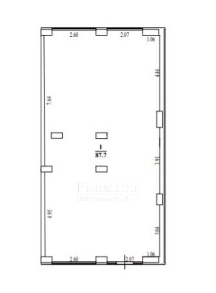
Загальна
87.7 м2
Поверх
1
Поверховість
6
Продаж комерційного приміщення в Одесі на вулиці Бочарова/Сахарова. 1 поверх 6-ти поверхового нового зданого будинку. Загальна площа 88 кв. Можливе використання під будь-який вид діяльності. Вільне планування. Зроблено капітальний ремонт. Панорамне скління. Перспективний район, що розвивається, прохідне місце.
70 000 USD
59 917 EUR
2 965 900  UAH
USD
EUR
UAH

Філіявул. Сахарова 24
Відповідальний спеціаліст
вищої категорії
Ірина Коршикова
Додаткові послуги

Прибутковість об'єкту від оренди*

від10367грн/місяць

*Середня ціна при здачі об'єкта в оренду в Пересипськом районі

Зміна цін на под любой вид деятельности в Пересипськом районі