Продается 3-комн. квартира в новострое, Дача Ковалевского ул. , г.Одесса
ID 190496
Комнат
3
Общая
80 м2
Жилая
55 м2
Этаж
16
Этажность
26
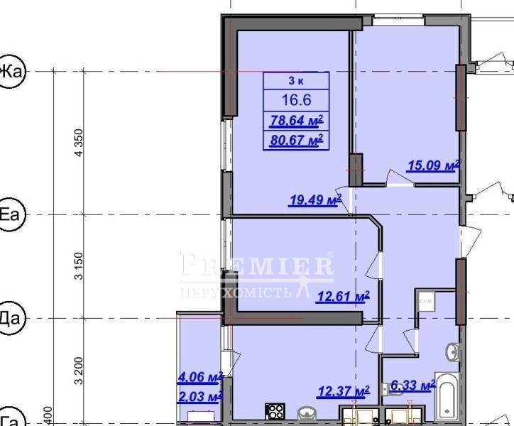
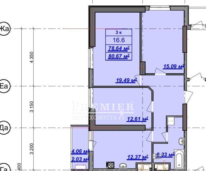
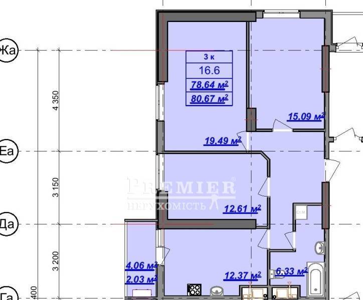
Продам 3-комнатную квартиру в ЖК Посейдон, застройщик ‘’Гефест’’. Вид на город. 16 этаж 25-этажного дома. Квартира с балконом. Площадь 80,67 кв.м. Состояние от строителей. Если в целом и общем: ЖК Посейдон - это роскошный дом с панорамным видом на море в районе 16 станции Большого Фонтана. Для комфорта жильцов в доме будут расположены помещения гражданского и торгового предназначения. В пяти минутах ходьбы от комплекса находится популярный у одесситов пляж «Золотой берег» с красивой набережной и фонтаном. Придомовая зона ограждена, хорошо освещена и находится под видеонаблюдением и охраной круглые сутки. Для автомобилистов предусмотрен трехуровневый подземный паркинг. Комплекс отапливается при помощи автономной крышной котельной - каждая квартира будет оснащена отопительными приборами и оборудованием для регулирования температуры. Счетчики учета потребления коммунальных услуг будут расположены на этажных щитах, а между этажами жильцов будут развозить современные бесшумные лифты. Звоните!
75 000 USD
63 514 EUR
3 172 500 UAH
Филиалул. Ак. Королева, 65
Ответственный специалист
высшей категории Виктория Лялина
высшей категории Виктория Лялина
Показать
Дополнительные услуги
Доходность объекта от аренды*
от12740грн/месяц
*Средняя цена при сдаче объекта в аренду в Киевском районе
Изменение цен на 3-комн. квартира в новострое в Киевском районе
Похожие объекты
Трёхкомнатная квартира
г.Одесса/Киевский/Архитекторская ул.
Цена67 000 USD
Общая70 м2
Цена67 000 USD
70 м2
Трёхкомнатная квартира
г.Одесса/Киевский/Королева Академика ул.
Цена55 000 USD
Общая66 м2
Цена55 000 USD
66 м2
Цена80 000 USD
Общая127 м2
Цена80 000 USD
127 м2
3-комн. квартира в новострое
г.Одесса/Киевский/Жукова М. просп. (ЖК Радужный)
Цена69 500 USD
Общая83 м2
Цена69 500 USD
83 м2