Продається 3-комн. квартира в новобудові, Дача Ковалевського вул., м.Одеса
ID 190496
Кімнат
3
Загальна
80 м2
Житлова
55 м2
Поверх
16
Поверховість
26
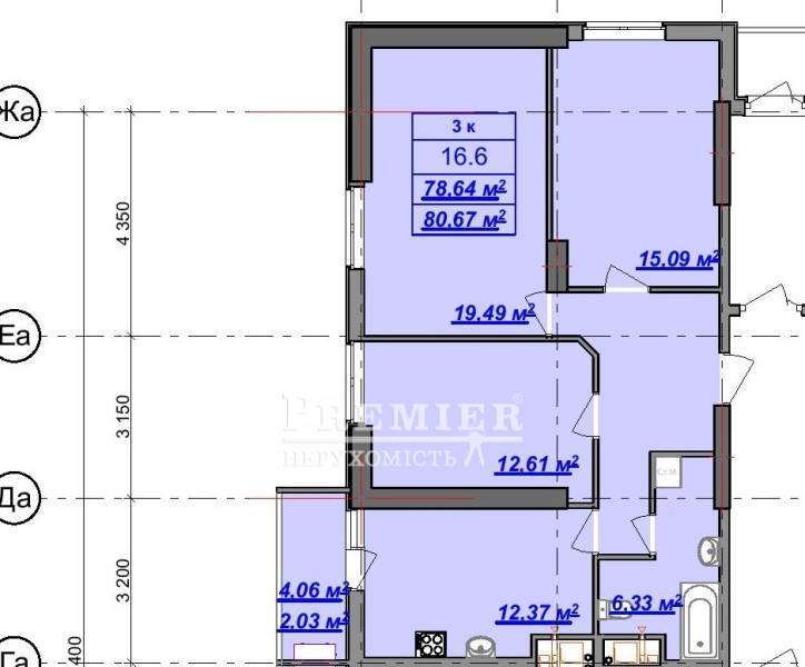
Продам 3-кімнатну квартиру в ЖК Посейдон, забудовник ''Гефест''. Вид на місто. 16 поверх 25-поверхового будинку. Квартира з балконом. Площа 80,67 кв. Стан від будівельників. Якщо загалом: ЖК Посейдон – це розкішний будинок з панорамним видом на море в районі 16 станції Великого Фонтану. Для комфорту мешканців у будинку будуть розташовані приміщення цивільного та торговельного призначення. За п'ять хвилин ходьби від комплексу знаходиться популярний у одеситів пляж «Золотий берег» з гарною набережною та фонтаном. Прибудинкова зона огороджена, добре освітлена і знаходиться під відеоспостереженням та охороною цілодобово. Для автомобілістів передбачено трирівневий підземний паркінг. Комплекс опалюється за допомогою автономної дахової котельні - кожна квартира буде оснащена опалювальними приладами та обладнанням для регулювання температури. Лічильники обліку споживання комунальних послуг будуть розташовані на поверхових щитах, а між поверхами мешканців розвозитимуть сучасні безшумні ліфти. Телефонуйте!
75 000 USD
64 127 EUR
3 251 250 UAH
Філіявул. Ак. Корольова, 65
Відповідальний спеціаліст
вищої категорії Вікторія Ляліна
вищої категорії Вікторія Ляліна
Показати
Додаткові послуги
Прибутковість об'єкту від оренди*
від12997грн/місяць
*Середня ціна при здачі об'єкта в оренду в Київськом районі
Зміна цін на 3-комн. квартира в новобудові в Київськом районі
Схожі об`єкти
Трикімнатна квартира
м.Одеса/Київський/Архітекторська вул.
Цена67 000 USD
Общая70 м2
Цена67 000 USD
70 м2
Трикімнатна квартира
м.Одеса/Київський/Королева Академіка вул.
Цена55 000 USD
Общая66 м2
Цена55 000 USD
66 м2
Цена80 000 USD
Общая127 м2
Цена80 000 USD
127 м2
3-комн. квартира в новобудові
м.Одеса/Київський/Жукова М. просп. (ЖК Веселковий)
Цена69 500 USD
Общая83 м2
Цена69 500 USD
83 м2