Продается 2-комн. квартира в новострое, Франко Ивана ул., г.Одесса
Одесса, Приморском, ул. Франко Ивана
ID 197359
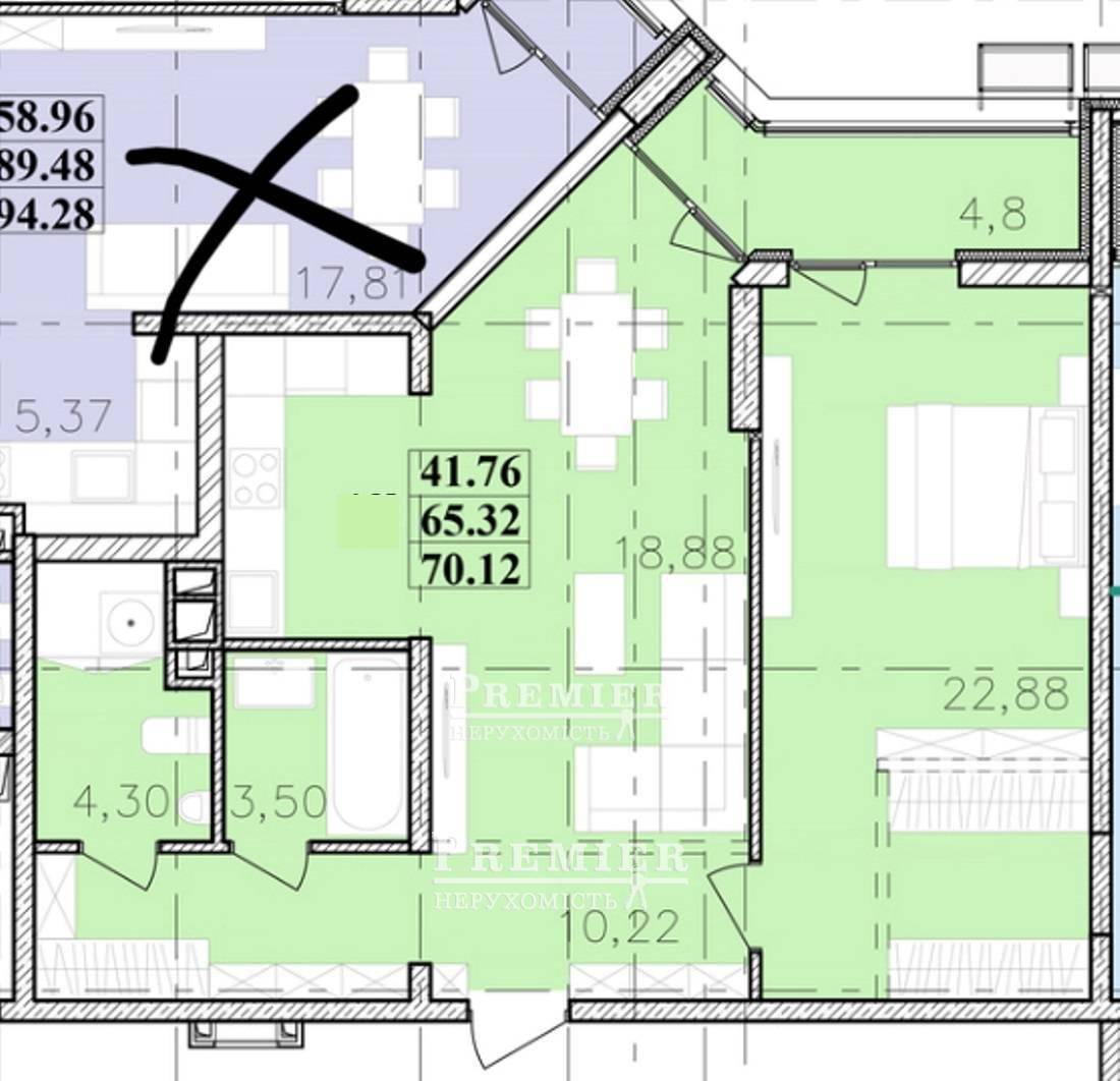
Комнат
2
Общая
70 м2
Жилая
22 м2
Кухня
24 м2
Этаж
1
Этажность
24
Предлагается к продаже 2-комнатная квартира в новом сданном густонаселённом ЖК бизнес-класса на Большом Фонтане. Состояние от строителей. Большие панорамные окна. Есть возможность обустроить отдельный вход и использовать помещение в коммерческих целях. Здесь прекрасно разместятся ваш новый салон красоты, медкабинет, зоомагазин для домашних питомцев, ателье или любой другой вид деятельности. Закрытая охраняемая территория, подземный паркинг, благоустроенный двор. Рядом с домом конечная остановка маршрутки, 2 медицинских учреждения. Редкое предложение на рынке городской недвижимости!
75 000 USD
64 465 EUR
3 281 250 UAH
Филиалул. Преображенская, 49/51
Ответственный специалист
высшей категории Оксана Курганская
высшей категории Оксана Курганская
Показать
Дополнительные услуги
Доходность объекта от аренды*
от22325грн/месяц
*Средняя цена при сдаче объекта в аренду в Приморском районе
Изменение цен на 2-комн. квартира в новострое в Приморском районе
Похожие объекты
Двухкомнатная квартира
г.Одесса/Приморский/Пироговская ул.
Цена80 000 USD
Общая65 м2
Цена80 000 USD
65 м2
2-комн. квартира в новострое
г.Одесса/Приморский/Гагаринское плато
Цена85 000 USD
Общая86 м2
Цена85 000 USD
86 м2
Двухкомнатная квартира
г.Одесса/Приморский/Среднефонтанская ул.
Цена85 000 USD
Общая88 м2
Цена85 000 USD
88 м2
Двухкомнатная квартира
г.Одесса/Приморский/Говорова Маршала ул.
Цена87 000 USD
Общая87 м2
Цена87 000 USD
87 м2