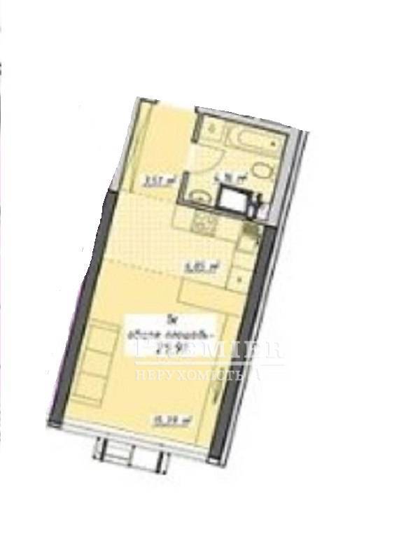
Продается Студия, Курортный пер., г.Одесса
Одесса, Приморском, пер. Курортный
ID 198470
Общая
30 м2
Этаж
15
Этажность
25
Продается квартира в Аркадии, пер. Курортный на 15 этаже. Квартира просторная, светлая. В строительстве использованы новейшие технологии. Идеальная стяжка пола. Бронированная дверь. Красивый дом, подземный паркинг. Отличный вариант для аренды. В шаговой доступности центральный пляж Аркадии, парк Победы.
38 600 USD
32 706 EUR
1 638 570 UAH
Филиалул. Ак. Королева, 33
Ответственный специалист Ирина Семенда
Показать
Дополнительные услуги
Доходность объекта от аренды*
от11537грн/месяц
*Средняя цена при сдаче объекта в аренду в Приморском районе
Изменение цен на cтудии в Приморском районе
Похожие объекты
Студия
г.Одесса/Приморский/Фонтанская дорога ул.
Цена31 800 USD
Общая25.44 м2
Цена31 800 USD
25.44 м2