Продається Студія, Курортний пров., м.Одеса
Одеса, Приморський, Курортний пров.
ID 198470
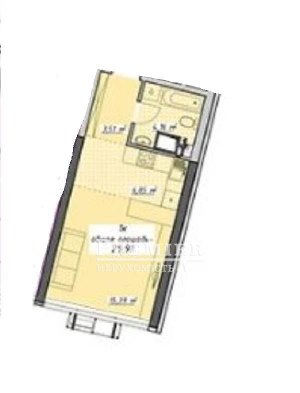
Загальна
30 м2
Поверх
15
Поверховість
25
Продається квартира в Аркадії, пров. Курортний на 15-му поверсі. Квартира простора, світла. У будівництві використано новітні технології. Ідеальне стягування підлоги. Броньовані двері. Гарний будинок, підземний паркінг. Відмінний варіант для оренди. У кроковій доступності є центральний пляж Аркадії, парк Перемоги.
38 600 USD
33 178 EUR
1 688 750 UAH
Філіявул. Ак. Корольова, 33
Відповідальний спеціаліст Ірина Семенда
Показати
Додаткові послуги
Прибутковість об'єкту від оренди*
від10989грн/місяць
*Середня ціна при здачі об'єкта в оренду в Приморський районі
Зміна цін на cтудії в Приморський районі
Схожі об`єкти
Студія
м.Одеса/Приморський/Фонтанська дорога вул.
Цена31 800 USD
Общая25.44 м2
Цена31 800 USD
25.44 м2