Продается 1-комн. квартира в новострое, Сеченова пер., г.Одесса
Одесса, Центральном, пер. Сеченова
ID 199872
Комнат
1
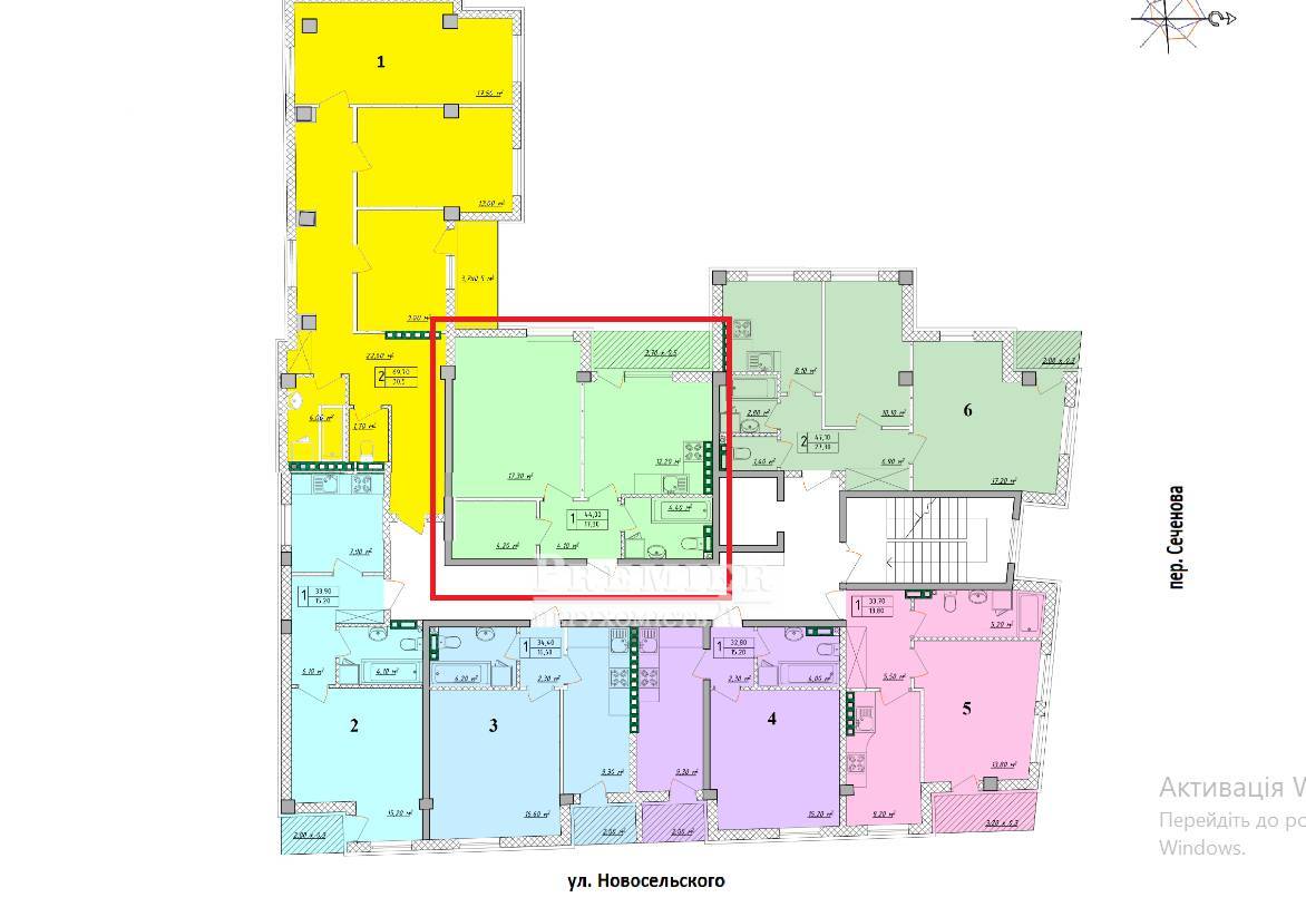
Общая
45.5 м2
Жилая
26 м2
Этаж
6
Этажность
6
В продаже однокомнатная квартира в новом кирпичном доме. Центр города. Состояние от строителей. Комната 18 метров, кухня 12 метров, гардеробная 4 метра. Отопление от двухконтурного котла. Малоэтажный дом с охраной и видеонаблюдением. Квартира смотрит во двор. Хороший район- весь центр в пешей доступности.
63 000 USD
53 630 EUR
2 740 500 UAH
Филиалул. Преображенская, 49/51
Ответственный специалист
высшей категории Елена Шевченко
высшей категории Елена Шевченко
Показать
Дополнительные услуги
Похожие объекты
Однокомнатная квартира
г.Одесса/Центр/Виталия Боровика ул. (Олеши Юрия ул. )
Цена45 000 USD
Общая29 м2
Цена45 000 USD
29 м2
1-комн. квартира в новострое
г.Одесса/Центр/Щепной пер.
Цена65 000 USD
Общая45.15 м2
Цена65 000 USD
45.15 м2