Продається 1-кімн. квартира в новобудові, Сеченова пер., м.Одеса
Одеса, Центральном, пер. Сеченова
ID 199872
Кімнат
1
Загальна
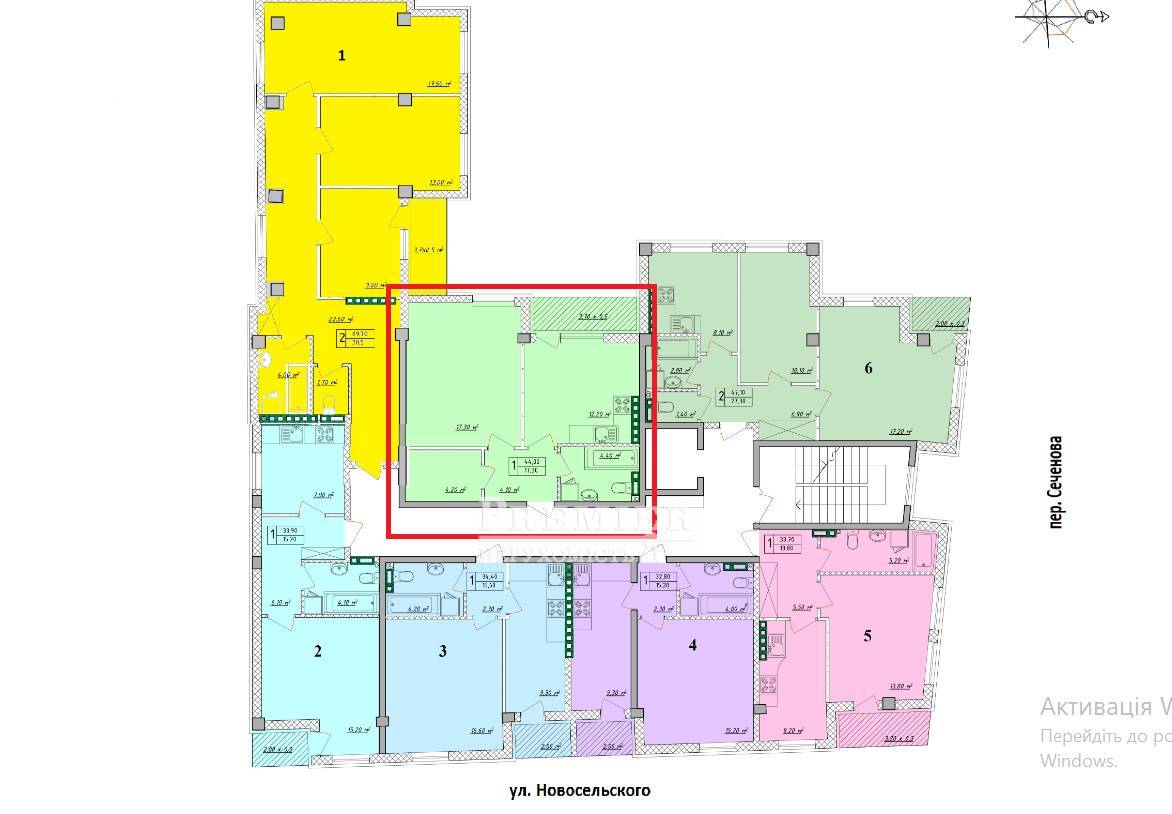
45.5 м2
Житлова
26 м2
Поверх
6
Поверховість
6
Продаж однокімнатної квартири в новому цегляному будинку. Центр міста. Стан від будівельників. Кімната 18 метрів, кухня 12 метрів, вбиральня 4 метри. Опалення двоконтурного котла. Малоповерховий будинок з охороною та відеоспостереженням. Квартира дивиться у двір. Хороший район-весь центр у пішій доступності.
63 000 USD
53 420 EUR
2 775 150 UAH
Філіявул. Преображенська, 49/51
Відповідальний спеціаліст
вищої категорії Олена Шевченко
вищої категорії Олена Шевченко
Показати
Додаткові послуги
Схожі об`єкти
Однокімнатна квартира
м.Одеса/Центр/Віталія Боровика вул. (Олеші Юрія вул.)
Цена45 000 USD
Общая29 м2
Цена45 000 USD
29 м2
1-кімн. квартира в новобудові
м.Одеса/Центр/Щепним пров.
Цена65 000 USD
Общая45.15 м2
Цена65 000 USD
45.15 м2