Продается 1-комн. квартира в новострое, Овидиопольская дорога, г.Одесса
Одесса, Хаджибейском, Овидиопольская дорога
ID 199976
Комнат
1
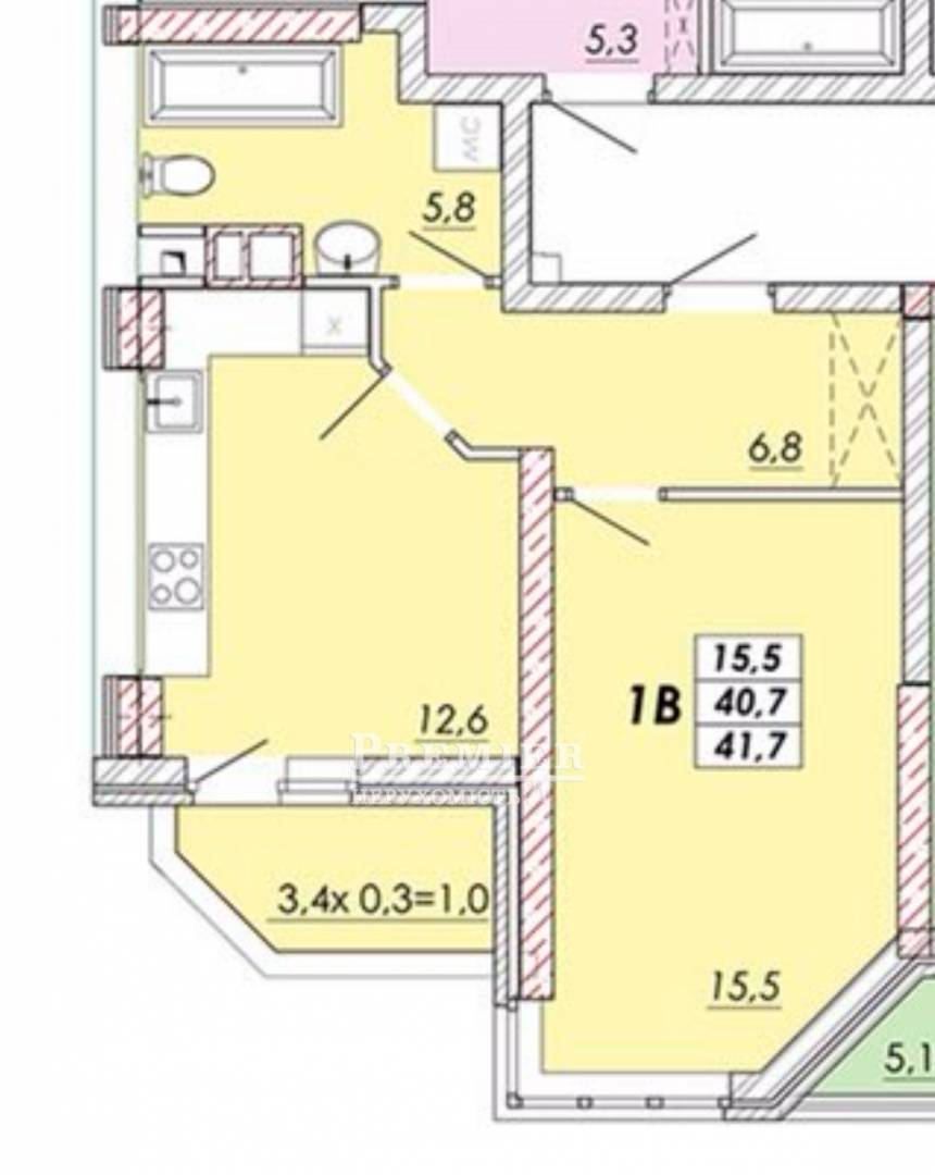
Общая
42 м2
Жилая
15.5 м2
Кухня
12.6 м2
Этаж
14
Этажность
16
Предлагается к продаже однокомнатная квартира в новом кирпичном доме ЖК Реал Парк. Правильная планировка. Общая площадь 42 м2. Спальня – 15.5 м2, кухня – 12.6 м2 с выходом на балкон. Гардеробная. Юго-восточная сторона. Квартира очень светлая, с хорошим видом. Закрытая охраняемая территория. Район с развитой инфраструктурой.
29 000 USD
24 727 EUR
1 216 550 UAH
ФилиалЕвгения Чикаленка, 58а
(Академика Вильямса)
(Академика Вильямса)
Ответственный специалист Яна Стоянова
Показать
Дополнительные услуги
Доходность объекта от аренды*
от8329грн/месяц
*Средняя цена при сдаче объекта в аренду в Хаджибейском районе
Изменение цен на 1-комн. квартира в новострое в Хаджибейском районе
Похожие объекты
Однокомнатная квартира
г.Одесса/Хаджибейский/Кропивницкого ул.
Цена36 000 USD
Общая40 м2
Цена36 000 USD
40 м2
Комнаты в коммуне
г.Одесса/Хаджибейский/Евгения Танцоры ул. (Петрова Генерала ул.)
Цена21 000 USD
Общая13.9 м2
Цена21 000 USD
13.9 м2
1-комн. квартира в новострое
г.Одесса/Хаджибейский/Алексея Вадатурского ул. (Малиновского Маршала ул.)
Цена35 000 USD
Общая45 м2
Цена35 000 USD
45 м2
Однокомнатная квартира
г.Одесса/Хаджибейский/Блока ул.
Цена23 000 USD
Общая38 м2
Цена23 000 USD
38 м2