Продається 1-комн. квартира в новобудові, Овідіопольська дорога, м.Одеса
Одеса, Хаджибейськом, Овідіопольська дорога
ID 199976
Кімнат
1
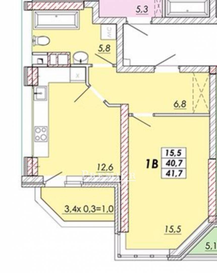
Загальна
42 м2
Житлова
15.5 м2
Кухня
12.6 м2
Поверх
14
Поверховість
16
Пропонується до продажу однокімнатна квартира в новому цегляному будинку ЖК Реал Парк. Правильне планування. Загальна площа 42 м2. Спальня – 15.5 м2, кухня – 12.6 м2 із виходом на балкон. Вбиральня. Південно-східний бік. Квартира дуже світла, з гарним виглядом. Закрита територія, що охороняється. Район із розвиненою інфраструктурою.
29 000 USD
24 856 EUR
1 222 930 UAH
ФіліяЄвгена Чикаленка, 58а
(Академіка Вільямса)
(Академіка Вільямса)
Відповідальний спеціаліст Яна Стоянова
Показати
Додаткові послуги
Прибутковість об'єкту від оренди*
від8462грн/місяць
*Середня ціна при здачі об'єкта в оренду в Хаджибейськом районі
Зміна цін на 1-комн. квартира в новобудові в Хаджибейськом районі
Схожі об`єкти
Однокімнатна квартира
м.Одеса/Хаджибейський/Кропивницького вул.
Цена36 000 USD
Общая40 м2
Цена36 000 USD
40 м2
Комнаты в коммуне
м.Одеса/Хаджибейський/Євгена Танцюри вул. (Петрова Генерала вул.)
Цена21 000 USD
Общая13.9 м2
Цена21 000 USD
13.9 м2
1-комн. квартира в новобудові
м.Одеса/Хаджибейський/Олексія Вадатурського вул. (Малиновського Маршала вул.)
Цена35 000 USD
Общая45 м2
Цена35 000 USD
45 м2
Однокімнатна квартира
м.Одеса/Хаджибейський/Блоку вул.
Цена23 000 USD
Общая38 м2
Цена23 000 USD
38 м2