Продается Дом дача, Котляревского ул., Фонтанка
Одесская обл. / Фонтанка / ул. Котляревского
ID 201410
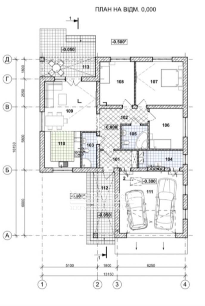
Комнат
3
Общая
150 м2
Жилая
59 м2
Кухня
30 м2
Этажность
1
Участок
10 соток
Газ
Природный
Вода
Водопровод
Предлагается к продаже дом на Фонтане. Отличная локация. Дом находится в финальной стадии строительства. В стоимость входит утепление, фасад, остекление, подшивка крыши и водосточная система, двери и ворота в гараже. Построен с соблюдением всех технический требований. Удачная планировка: кухня-гостиная с выходом на веранду, 3 просторные спальни, 2 санузла, котельная. Гараж на 2 машины. В доме подключено электричество, вода. Газ по фасаду. Крыша из битумной черепицы, потолок утеплен. Спешите купить. Отличное предложение
95 000 USD
90 000 USD 111 910 EUR
76 400 EUR 4 189 500 UAH
3 969 000 UAH Филиалул. Космонавтов, 32
Ответственный специалист
высшей категории Ольга Сверкунова
высшей категории Ольга Сверкунова
Показать
Дополнительные услуги
Похожие объекты
Дом дача
Одесcк. обл./Одесский район/Фонтанка/Молодежная ул.
Цена45 000 USD
Общая60 м2
Участок2.4сотки
Цена45 000 USD
2.4 сотки
Дом дача
Одесcк. обл./Одесский район/Сычавка/Филатова ул.
Цена75 000 USD
Общая240 м2
Участок25соток
Цена75 000 USD
25 соток
Дом дача
Одесcк. обл./Одесский район/Лески/Джерельный пер.
Цена46 000 USD
Общая62 м2
Участок5.5соток
Цена46 000 USD
5.5 соток
Дом дача
Одесcк. обл./Одесский район/Бурлачья Балка/Черноморская дорога - ...
Цена100 000 USD
Общая130 м2
Участок0.1соток
Цена100 000 USD
0.1 соток