Продається Будинок дача, Котляревського вул., Фонтанка
Одеська обл. / Фонтанка / ул. Котляревського в
ID 201410
Кімнат
3
Загальна
150 м2
Житлова
59 м2
Кухня
30 м2
Поверховість
1
Ділянка
10 соток
Газ
Природный
Вода
Водопровод
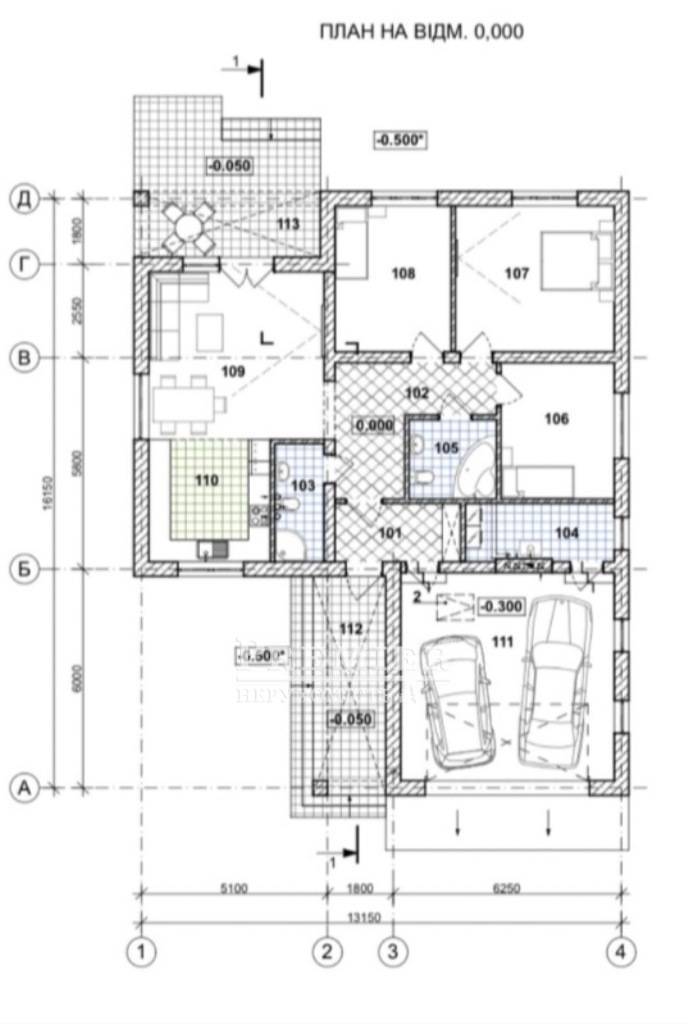
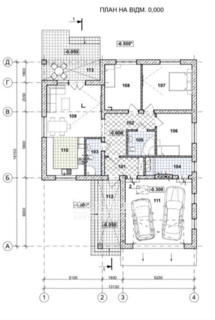
Пропонується до продажу будинок на Фонтані. Чудова локація. Будинок знаходиться у фінальній стадії будівництва. У вартість входить утеплення, фасад, скління, підшивка даху та водостічна система, двері та ворота в гаражі. Побудований з дотриманням усіх технічних вимог. Вдале планування: кухня-вітальня з виходом на веранду, 3 просторі спальні, 2 санвузли, котельня. Гараж на 2 машини. У будинку підключено електрику, воду. Газ фасаду. Дах з бітумної черепиці, стеля утеплена. Поспішайте купити. Відмінна пропозиція
95 000 USD
90 000 USD 109 665 EUR
77 965 EUR 4 184 750 UAH
3 964 500 UAH Філіявул. Космонавтів, 32
Відповідальний спеціаліст
вищої категорії Ольга Свєркунова
вищої категорії Ольга Свєркунова
Показати
Додаткові послуги
Схожі об`єкти
Будинок дача
Одеська. обл./Одескій район/Бурлача Балка/Центральна вул.
Цена59 900 USD
Общая70 м2
Участок10соток
Цена59 900 USD
10 соток
Будинок дача
Одеська. обл./Одескій район/Красносілка/Перемоги вул.
Цена65 000 USD
Общая180 м2
Участок5соток
Цена65 000 USD
5 соток
Будинок дача
Одеська. обл./Одескій район/Сухий Лиман/Вишневий сад вул.
Цена78 000 USD
Общая180 м2
Участок18соток
Цена78 000 USD
18 соток
Будинок дача
Одеська. обл./Одескій район/Совіньон-1 (с. Ліманка (Ильичевск)/Спортивна вул.
Цена133 000 USD
Общая139 м2
Цена133 000 USD
139 м2