Продается Под любой вид деятельности, Базарная ул. , г.Одесса
Одесса, , ул. Базарная
ID 206483
Общая
600 м2
Этаж
1
Этажность
3
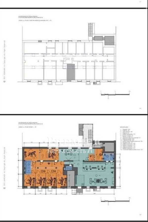
В продаже фасадное помещение свободного назначения в центре города на ул. Базарная, общей площадью 350кв. первый этаж и 250кв. подвальное помещение. Нежилой фонд. В помещении начат ремонт (планировалась медицинская клиника). Все помещения объединены в одно пространство. Произведено укрепление потолка. Есть дизайн проект с визуализацией и техническими чертежами. Помещение имеет 2 входа, 7 фасадных окон. Высокий пешеходный трафик. Хорошая транспортная развязка. Отличный вариант под собственное представительство, офис, салон, магазин, обучающий, медицинский или сервисный центр, мастерские и другое. Возможна продажа в нарезке на меньшие помещения. Звоните
450 000 USD
360 000 USD 533 141 EUR
303 860 EUR 19 485 000 UAH
15 588 000 UAH Филиалул. Преображенская, 49/51
Ответственный специалист
высшей категории Оксана Курганская
высшей категории Оксана Курганская
Показать
Дополнительные услуги
Похожие объекты
Гостиница, кемпинг
г.Одесса/Центральный/Соборная пл.
Цена295 000 USD
Общая210 м2
Цена295 000 USD
210 м2
Под любой вид деятельности
г.Одесса/Центральный/Владимира Рутковского ул. (Инбер Веры ул.)
Цена380 000 USD
Общая250 м2
Цена380 000 USD
250 м2
Под любой вид деятельности
г.Одесса/Центральный/Воронцовский пер.
Цена320 000 USD
Общая240 м2
Цена320 000 USD
240 м2
Бар, кафе, ресторан
г.Одесса/Центральный/Дерибасовская ул.
Цена400 000 USD
Общая165.2 м2
Цена400 000 USD
165.2 м2