Продається Под любой вид деятельности, Базарна вул., м.Одеса
Одеса, , ул. Базарна в
ID 206483
Загальна
600 м2
Поверх
1
Поверховість
3
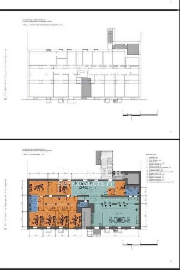
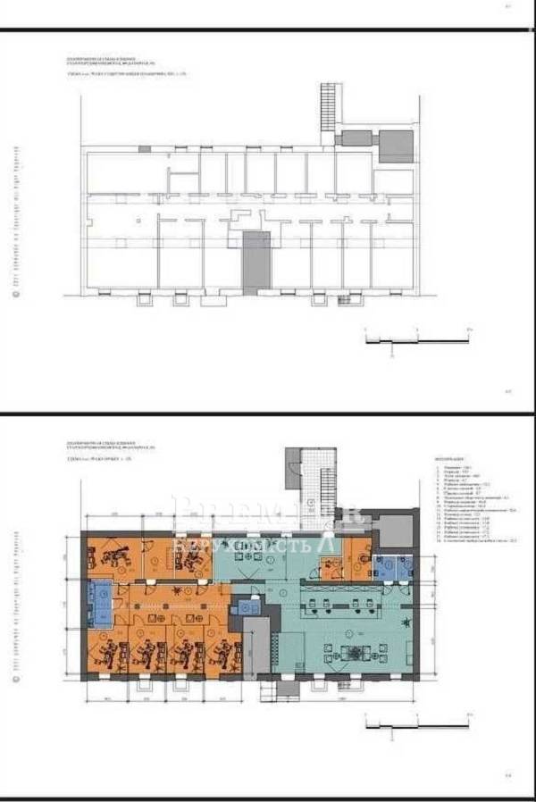
У продажу фасадне приміщення вільного призначення у центрі міста на вул. Базарна, загальною площею 350 кв. перший поверх та 250кв. підвальне приміщення. Нежитловий фонд. У приміщенні розпочато ремонт. Усі приміщення об'єднані в один простір. Відмінний варіант під власне представництво, офіс, салон, магазин, навчальний, медичний чи сервісний центр, майстерні та інше. Можливий продаж у нарізці на менші приміщення. Телефонуйте.
450 000 USD
360 000 USD 533 296 EUR
303 771 EUR 19 935 000 UAH
15 948 000 UAH Філіявул. Преображенська, 49/51
Відповідальний спеціаліст
вищої категорії Оксана Курганська
вищої категорії Оксана Курганська
Показати
Додаткові послуги
Схожі об`єкти
Гостиница, кемпинг
м.Одеса/центральний/Соборна пл.
Цена295 000 USD
Общая210 м2
Цена295 000 USD
210 м2
Под любой вид деятельности
м.Одеса/центральний/Володимира Рутківського вул. (Інбер Віри вул.)
Цена380 000 USD
Общая250 м2
Цена380 000 USD
250 м2
Под любой вид деятельности
м.Одеса/центральний/Воронцовський пров.
Цена320 000 USD
Общая240 м2
Цена320 000 USD
240 м2
Бар, кафе, ресторан
м.Одеса/центральний/Дерибасівська вул.
Цена400 000 USD
Общая165.2 м2
Цена400 000 USD
165.2 м2