Продается Студия, Гагаринское плато, г.Одесса
Одесса, Приморском, Гагаринское плато
ID 207025
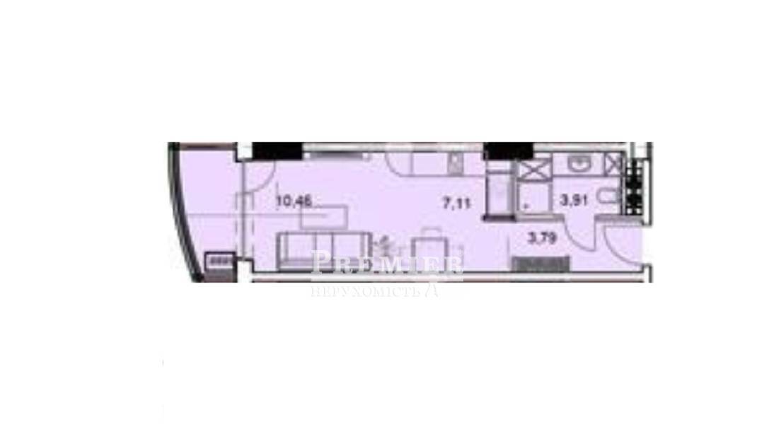
Общая
26.7 м2
Этаж
10
Этажность
25
В продаже хорошая квартира студийного типа в современном жилом комплексе в Приморском районе, в Аркадии. Общая площадь 27м. Состояние квартиры от застройщика. Заведены все необходимые коммуникации, интернет, установлены качественные металлопластиковые окна, радиатор и бронированная дверь. Квартира просторная с великолепным видом на улицу Генуэзская. Удобный этаж. У комплекса всего три дома, на крыше которых расположены бассейны для жителей и зоны отдыха. Рядом торговый центр, удобная транспортная развязка, развитая инфраструктура. И главное –5мин. к побережью Черного моря. Звоните!
27 000 USD
23 106 EUR
1 140 750 UAH
Филиалул. Ак. Королева, 33
Ответственный специалист
высшей категории Лилиана Матвиенко
высшей категории Лилиана Матвиенко
Показать
Дополнительные услуги
Доходность объекта от аренды*
от8632грн/месяц
*Средняя цена при сдаче объекта в аренду в Приморском районе
Изменение цен на cтудии в Приморском районе
Похожие объекты
Студия
г.Одесса/Приморский/Фонтанская дорога ул.
Цена31 800 USD
Общая25.44 м2
Цена31 800 USD
25.44 м2