Продається Студія, Гагарінське плато, м.Одеса
Одеса, Приморський, Гагарінське плато
ID 207025
Загальна
26.7 м2
Поверх
10
Поверховість
25
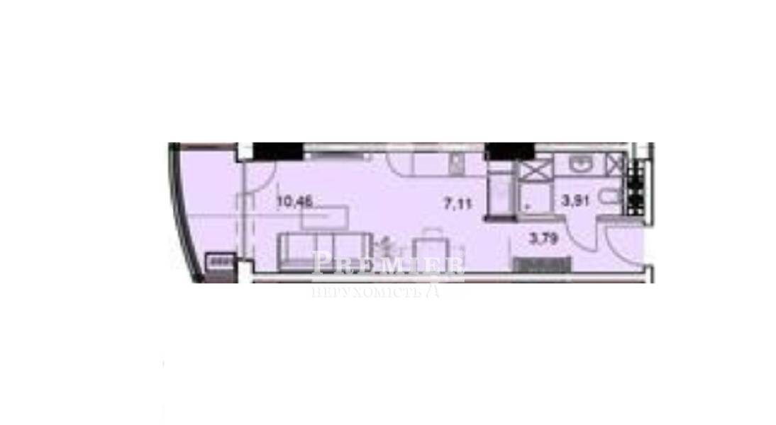
У продажу гарна квартира студійного типу в сучасном житловому комплексі в Приморському районі, в Аркадії. Загальна площа 27м². Стан квартири від забудовника. Заведені всі необхідні комунікації, інтернет, встановлені якісні металопластикові вікна, радіатор та броньовані двері. Квартира простора з чудовим видом на вулицю Генуезька. Зручний середній поверх. Комплекс має всього три будинки, на даху яких розташовані басейни для мешканців та зони відпочинку. Поруч торговий центр, зручна транспортна розв'язка, розвинута інфраструктура. І головне-5хв. до узбережжя Чорного Моря. Телефонуйте!
27 000 USD
22 938 EUR
1 143 450 UAH
Філіявул. Ак. Корольова, 33
Відповідальний спеціаліст
вищої категорії Ліліана Матвієнко
вищої категорії Ліліана Матвієнко
Показати
Додаткові послуги
Прибутковість об'єкту від оренди*
від9141грн/місяць
*Середня ціна при здачі об'єкта в оренду в Приморський районі
Зміна цін на cтудії в Приморський районі
Схожі об`єкти
Студія
м.Одеса/Приморський/Фонтанська дорога вул.
Цена31 800 USD
Общая25.44 м2
Цена31 800 USD
25.44 м2