Продается Под офис, Парусная (Героев Сталинграда) ул., Черноморск

Одесская обл. / Черноморск / ул. Парусная (Героев Сталинграда)
ID 209227
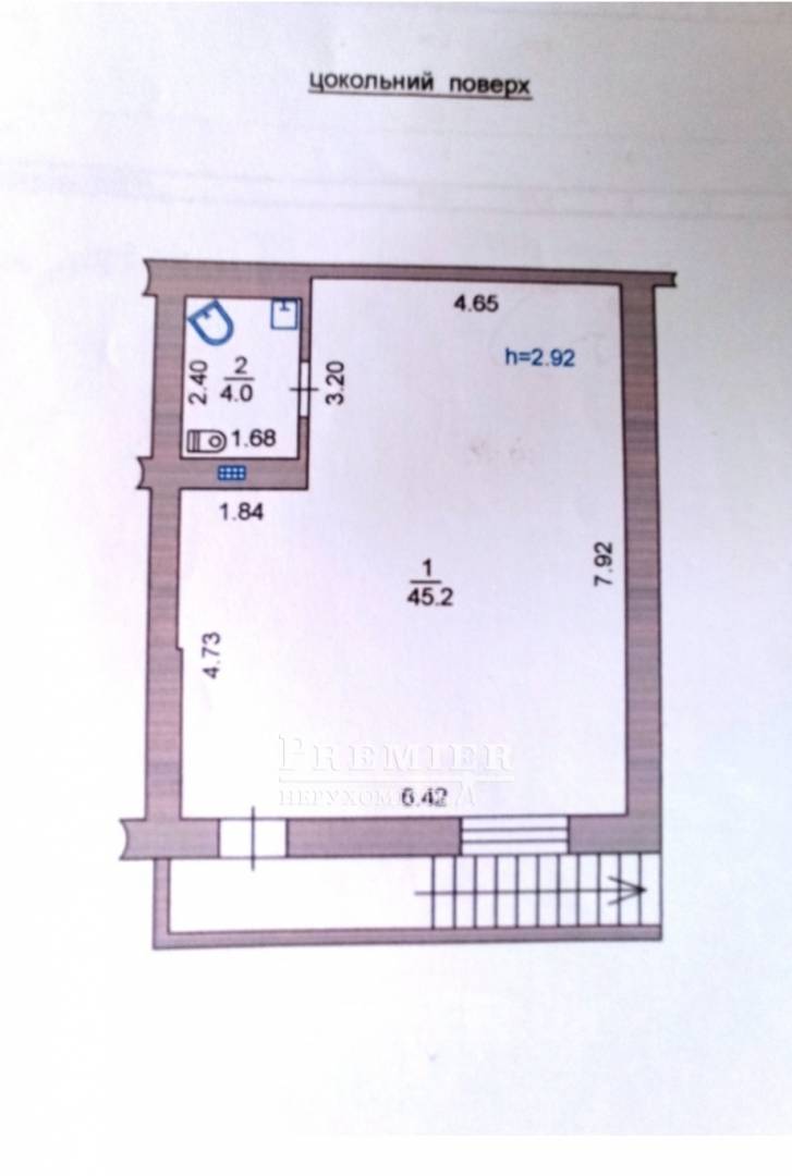
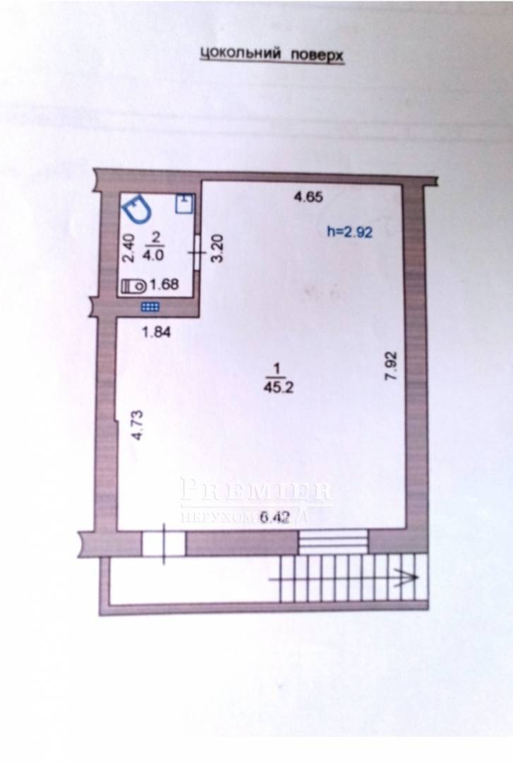
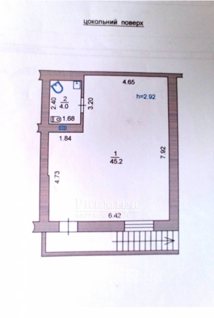
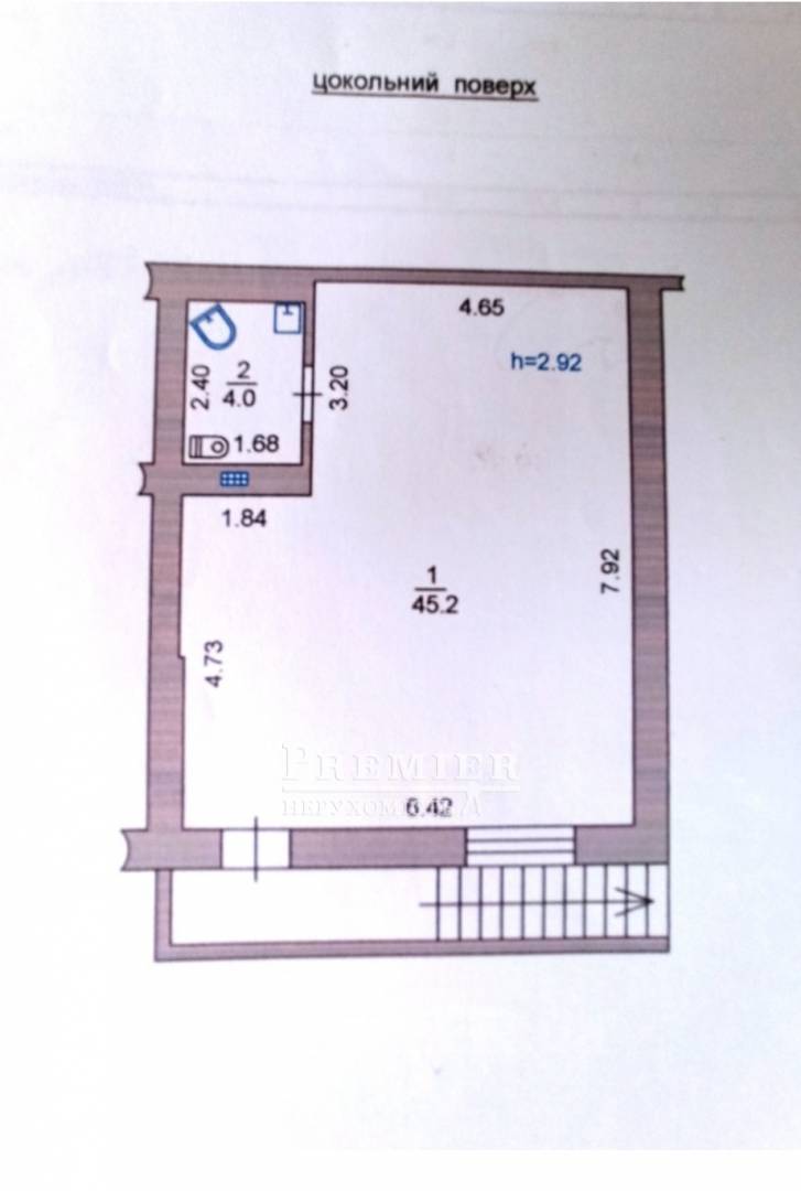
Комнат
1
Общая
49.2 м2
Этаж
1
Этажность
7
В продаже идеальное коммерческое помещение для бизнеса. Закрыта территория с отдельным входом. Три зоны освещения, много розеток, что удобно для студии, офиса или мастерской. Имеются вентиляторы и инверторный кондиционер. Индивидуальное газовое отопление. Помещение просторное, правильной формы – идеально для идей. Развитая инфраструктура. До моря 10 мин. пешком.
30 000 USD
25 748 EUR
1 308 000  UAH
USD
EUR
UAH

Филиалг. Черноморск ул. Данченко, 8
Ответственный специалист Людмила Сакун
Дополнительные услуги