Продається Под офис, Парусна (Героїв Сталінграда) вул., Чорноморськ

Одеська обл. / Чорноморськ / ул. Парусна (Героїв Сталінграда) в
ID 209227
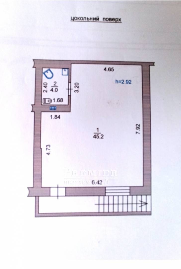
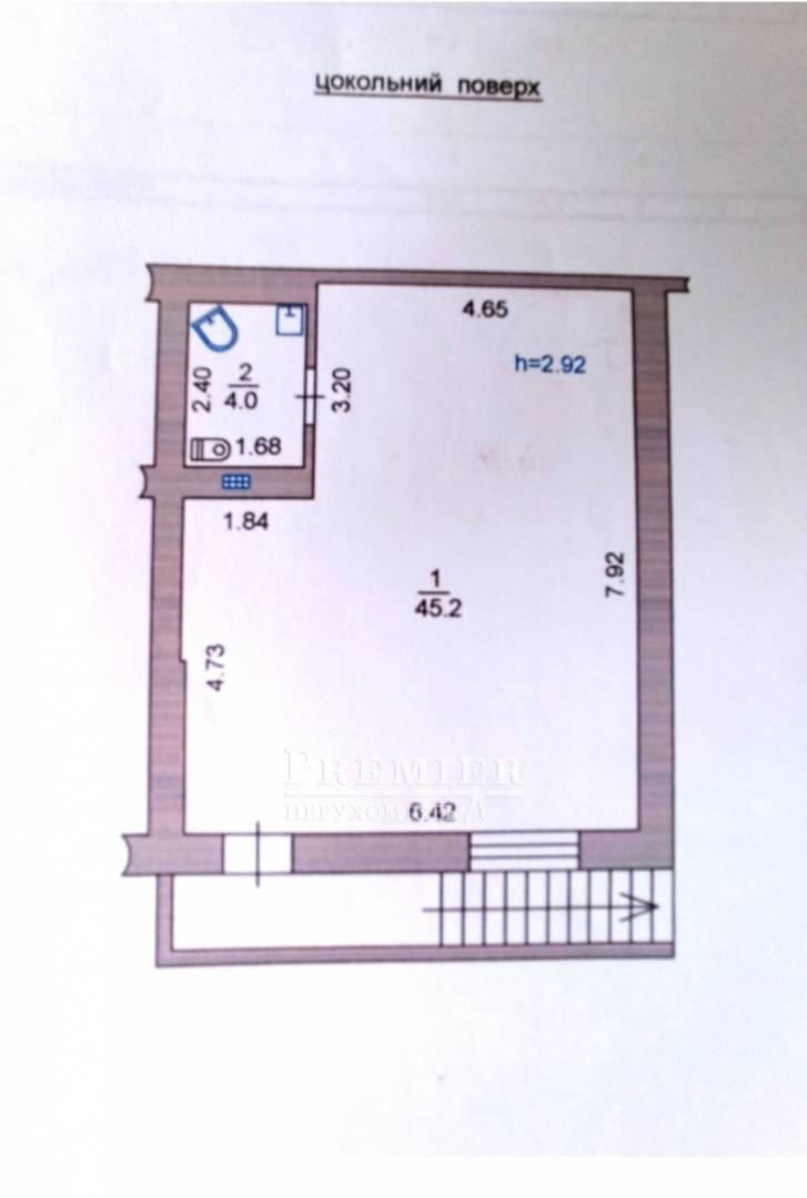
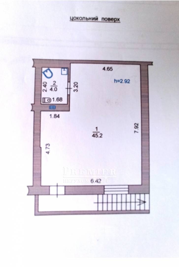
Кімнат
1
Загальна
49.2 м2
Поверх
1
Поверховість
7
У продажу ідеальне, комерційне приміщення для бізнесу. Закрита територія з окремим входом. Три зони освітлення, багато розеток, що зручно для студії, офісу чи майстерні. Є вентилятори і інверторний кондіціонер. Індівідуальне газове опалення. Приміщення просторе, правильної форми - ідеальне для ідей. Розвинена інфраструктура. До моря 10 хв. пішки.
30 000 USD
26 051 EUR
1 326 000  UAH
USD
EUR
UAH

Філіям. Чорноморськ вул. Данченка, 8
Відповідальний спеціаліст Людмила Сакун
Додаткові послуги