Продается 2-комн. квартира в новострое, Софиевская ул. , г.Одесса
Одесса, Центральном, ул. Софиевская
ID 210197
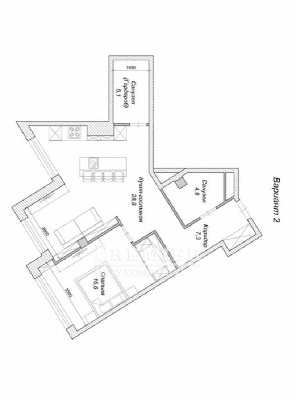
Комнат
2
Общая
66 м2
Жилая
43 м2
Кухня
19 м2
Этаж
4
Этажность
9
Ищете комфортное жилье в престижном районе Одессы, где совмещены современные технологии, безопасность и близость к морю и центру. Предлагаем к продаже уникальную 2-комнатную квартиру с новым ремонтом и мебелью. Удобная и продуманная планировка. Квартира включает кухню-студию, отдельную спальню, детскую или кабинет, гардеробную, просторный санузел и террасу. Все окна – энергосберегающие, панорамные, выходят в сторону парка, обеспечивая великолепный вид и много природного света. Ремонт "под ключ": Важно! Ремонт и мебель уже входят в стоимость. Срок выполнения ремонта по договору после покупки составляет 3-4 месяца. Малоэтажный дом клубного типа, сдан. Идеальное месторасположение рядом с историческим центром города и зелеными зонами: Бульвар Михаила Жванецкого, Приморский бульвар, Греческий и Стамбульский парки с детскими площадками и местами отдыха. Удобный подземный паркинг на 500 мест. На территории комплекса есть прогулочные аллеи, реликтовый парк, детские площадки и велодорожки для активного отдыха. Безопасность на самом высоком уровне: круглосуточное патрулирование, видеонаблюдение, контроль передвижения детей, консьерж. Комплекс оснащен передовыми технологиями для вашего комфорта: автономное отопление, энергобезопасность, Wi-Fi, разумное управление освещением и инженерными сетями.
Не упустите свой шанс стать владельцем этой уникальной квартиры в одном из самых лучших жилых комплексов Одессы. Звоните
Не упустите свой шанс стать владельцем этой уникальной квартиры в одном из самых лучших жилых комплексов Одессы. Звоните
115 000 USD
98 651 EUR
5 100 250 UAH
Филиал:Артура Савельева ул
(Черняховского). 11
(Черняховского). 11
Показать
Дополнительные услуги
Похожие объекты
2-комн. квартира в новострое
г.Одесса/Центр/Большая Арнаутская ул. (ЖК 18 Жемчужина)
Цена89 999 USD
Общая72.39 м2
Цена89 999 USD
72.39 м2
2-комн. квартира в новострое
г.Одесса/Центр/Карантинная ул.
Цена128 730 USD
Общая61.3 м2
Цена128 730 USD
61.3 м2
Двухкомнатная квартира
г.Одесса/Центр/Бориса Литвака (Заславского) ул.
Цена120 000 USD
Общая75 м2
Цена120 000 USD
75 м2
Двухкомнатная квартира
г.Одесса/Центр/Ивана Луценко пер.. (Жукова Вице-адмирала пер.)
Цена110 000 USD
Общая58 м2
Цена110 000 USD
58 м2